Prosimy, odblokuj wyświetlanie reklam w naszym serwisie, są one związane z rynkiem nieruchomości.
To dzięki nim masz darmowy dostęp do naszych treści.

Z pozdrowieniami zespół KRN.pl :)


telefon

wiadomość

mapa

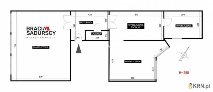
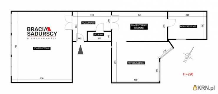
Lokal użytkowy, Kraków, Stare Miasto, ul. Szewska

Lokal użytkowy na wynajem Kraków (woj. Małopolskie), Stare Miasto, ul. Szewska

Lokalizacja:

Kraków, Stare Miasto, ul. Szewska

Powierzchnia:

106.00 m2

Cena:

5 000 zł

Dane szczegółowe

lokalizacja:
Małopolskie, Kraków, Stare Miasto, ul. Szewska
typ obiektu:
lokal użytkowy na wynajem
cena:
5 000 zł
pokoi:
3
piętro:
1
powierzchnia:
106.00 m2
numer ogłoszenia:
BS4-LW-313575-9
data dodania:
21-03-2026
data modyfikacji:
21-03-2026
jakość wypełnienia oferty:
70%

Szczegóły oferty

|

Ekskluzywny lokal do wynajęcia w prestiżowej kamienicy - Stare Miasto, Kraków
Do wynajęcia wyjątkowy lokal położony w reprezentacyjnej, zabytkowej kamienicy w samym sercu krakowskiego Starego Miasta. Prestiżowa lokalizacja - zaledwie kilka kroków od Plant oraz Rynku Głównego - zapewnia niepowtarzalny klimat i doskonałą rozpoznawalność adresu.
Lokal oferuje:

trzy eleganckie, jasne pomieszczenia,

funkcjonalny aneks kuchenny w pełni wyposażony w wysokiej klasy sprzęt AGD (zmywarka, lodówka),

łazienkę prysznicem.

Wnętrza zostały poddane kompleksowemu remontowi i wykończone z dbałością o każdy detal. Lokal znajduje się w idealnym stanie technicznym i wizualnym, gotowy do natychmiastowego użytkowania.
Z okien rozpościera się widok na ulicę Szewską - jedną z najbardziej prestiżowych i klimatycznych ulic Krakowa.
Oferta idealna dla kancelarii, biura lub innej działalności wymagającej reprezentacyjnej przestrzeni w wyjątkowej lokalizacji. Koszt Najmu:
Czynsz: 5000 zł
Czynsz Administracyjny ( w tym zaliczki: woda, ogrzewanie i gaz): 1500 zł
Prąd: według zużycia
Kaucja: 5000 zł
Zapraszamy wszystkie zainteresowane osoby do kontaktu oraz umówienia wizyty.
Możliwość wynajęcia od zaraz!
Zadzwoń i umów się na prezentację
Ewa Biłocha Tel: 511- 272- 188
Mail: Zobacz kontaktewa.sadurscy@gmail.com
::DODATKOWE INFORMACJE |
Rodzaj budynku: kamienica |
Gaz: jest |
Woda: jest |
Dojazd: ASFALTOWA |
Otoczenie: centrum miasta |
Ogrzewanie: C.O. GAZOWE |
Internet: TAK |
Komunikacja publ.: MPK, autobus miejski, tramwaj |
Winda: NIE |
Usytuowanie: dwustronne |
Drzwi antywłamaniowe: TAK |
Witryna wystawowa: brak |
Wejście: od ulicy |
Liczba wejść: 1 |
Opłaty w czynszu: wywóz nieczystości, woda ciepła, ogrzewanie, gaz, Części wspólne, administracja |
Opłaty wg liczników: prąd |
Stan lokalu: idealny |
Okna: drewniane |
Instalacje: ELEKTRYCZNA, GAZOWA |
Powierzchnia użytkowa [m2]: 106 |
Rok budowy: 1 |
Rodzaj lokalu: jednopoziomowy |
Przeznaczenie lokalu: biurowy |
Liczba pokoi: 3 |
Typ kaucji: jednomiesięczna |
::LINK DO STRONY |
sadurscy.pl/offer/BS4-LW-313575
::KONTAKT DO AGENTA |
Ewa Biłocha |
+ Zobacz kontakt48 511-272-188 |
Zobacz kontaktewa@sadurscy.pl
::DANE BIURA |
Oddział BS4, Krowodrza |
Kołowa 5/3 |
30-134 Kraków |
Zobacz kontakt12 633-90-20
|
Oferta wysłana z systemu Galactica Virgo
Ogrzewanie: Gazowe

Kontakt do agenta:
Ewa Biłocha
Zobacz kontaktewa@sadurscy.pl
+ Zobacz kontakt48 511-272-188

Oceń ofertę


0


26 wydruk błąd schowek

Ostatnio przeglądane

 

 

 

pobieranie

Pobierz wzór umowy

Umowa przedwstępna najmu

wybierz plik do pobrania
doc pdf

 

 

Deweloperzy

);