Prosimy, odblokuj wyświetlanie reklam w naszym serwisie, są one związane z rynkiem nieruchomości.
To dzięki nim masz darmowy dostęp do naszych treści.

Z pozdrowieniami zespół KRN.pl :)


telefon

wiadomość

mapa

Działki, Suwałki

Działki na sprzedaż Suwałki (woj. Podlaskie)

Lokalizacja:

Suwałki, , ul.

Powierzchnia:

557 m2

Cena:

239 500 zł

Dane szczegółowe

lokalizacja:
Podlaskie, Suwałki
typ obiektu:
działka na sprzedaż
cena:
239 500 zł
powierzchnia:
557 m2
numer ogłoszenia:
43882/3186/OGS
data dodania:
27-01-2026
data modyfikacji:
27-01-2026
jakość wypełnienia oferty:
86%

Szczegóły oferty

Prezydent Miasta Suwałk

ogłasza przetarg ustny nieograniczony

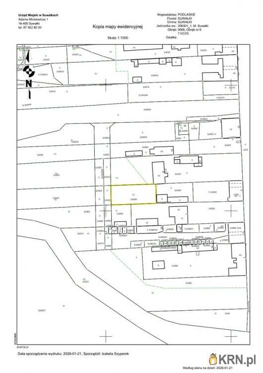
na sprzedaż nieruchomości stanowiącej własność Miasta Suwałk oznaczonej działką nr geod. 11433/5 o powierzchni 0,0557 ha, wchodzącej w skład nieruchomości dla której prowadzona jest księga wieczysta nr SU1S/ Zobacz kontakt00024177/8, niezabudowanej, położonej przy ul. Nadrzecznej w Suwałkach. Działka nr 11433/5 zgodnie z miejscowym planem zagospodarowania przestrzennego zawiera się w granicach terenu oznaczonego na rysunku planu symbolem 2MW – teren śródmiejskiej zabudowy mieszkaniowej pierzejowej o cechach zabudowy kamienicowej. Szczegółowe warunki zabudowy zawarte są w miejscowym planie zagospodarowania przestrzennego terenu ograniczonego ulicami Tadeusza Kościuszki, 24 Sierpnia i rzeką Czarną Hańczą w Suwałkach zatwierdzonym Uchwałą Nr LVI/738/2023 Rady Miejskiej w Suwałkach z dnia 26.04.2023 roku. Nieruchomość przeznaczona jest do sprzedaży w drodze przetargu ustnego nieograniczonego.

Cena wywoławcza: 239 500 zł brutto (słownie: dwieście trzydzieści dziewięć tysięcy pięćset złotych).

Wadium: 23 950 zł brutto (słownie: dwadzieścia trzy tysiące dziewięćset pięćdziesiąt złotych).

Przetarg przeprowadzony zostanie na podstawie przepisów ustawy z dnia 21 sierpnia 1997 r. o gospodarce nieruchomościami oraz rozporządzenia Rady Ministrów z dnia 14 września 2004 roku w sprawie sposobu i trybu przeprowadzania przetargów oraz rokowań na zbycie nieruchomości.



Przetarg odbędzie się w dniu 26 lutego 2025 roku o godz. 11:00 w siedzibie Urzędu Miejskiego w Suwałkach przy ul. Mickiewicza 1 w sali nr 146.



Warunkiem wzięcia udziału w przetargu jest:

- wpłacenie wadium w podanej wyżej wysokości na rachunek Urzędu Miejskiego w Suwałkach nr Zobacz kontakt76 1240 521 Zobacz kontakt1 1111 0000 4929 8215 Bank Pekao S.A. Oddział w Suwałkach do dnia 23 lutego 2026 roku. W tym dniu kwota wadium musi być uznana na rachunku Urzędu. Komisja przetargowa przed otwarciem przetargu stwierdzi wniesienie wadium przez uczestników przetargu;

- złożenie, przed otwarciem przetargu, pisemnego oświadczenia o zapoznaniu się z treścią ogłoszenia o przetargu oraz przedmiotem przetargu;

- w przypadku uczestnictwa w przetargu osoby prawnej – przedłożenie aktualnego wypisu z rejestru, właściwych pełnomocnictw sporządzonych notarialnie, dowodów tożsamości osób reprezentujących podmiot;

- w przypadku uczestnictwa w przetargu osoby fizycznej – osobiste stawiennictwo w dniu przetargu z dowodem tożsamości lub reprezentowanie przez pełnomocnika na podstawie pełnomocnictwa sporządzonego notarialnie;

- w przypadku uczestnictwa w przetargu jednego ze współmałżonków – przedłożenie pisemnej zgody drugiego małżonka na nabycie nieruchomości z podpisem notarialnie poświadczonym. Osoby pozostające w związku małżeńskim, a zamierzające nabyć nieruchomość z majątku odrębnego zobowiązane są złożyć stosowne oświadczenie. Osoby nie pozostające w związku małżeńskim zobowiązane są złożyć komisji przetargowej przed przystąpieniem do przetargu pisemne oświadczenie, iż nie pozostają w związku małżeńskim.

W przypadku uchylenia się nabywcy od zawarcia umowy sprzedaży wadium nie podlega zwrotowi.

Koszty sporządzenia umowy notarialnej ponosi nabywca.

Szczegółowych informacji dotyczących przetargu udziela Wydział Geodezji i Gospodarki Nieruchomościami Urzędu Miejskiego w Suwałkach przy ul. Mickiewicza 1, pokój nr 141; telefon (87) 562-81-41.





Klauzula informacyjna RODO

Zgodnie z art. 13 ust. 1 i 2 rozporządzenia Parlamentu Europejskiego i Rady (UE) 2016/679 z dnia 27 kwietnia 2016 r. w sprawie ochrony osób fizycznych w związku z przetwarzaniem danych osobowych i w sprawie swobodnego przepływu takich danych oraz uchylenia dyrektywy 95/46/WE (ogólne rozporządzenie o ochronie danych) (Dz. Urz. UE L 119 z 04.05.2016, str. 1), dalej „RODO”, informuję, że:

a) Administratorem Pani/Pana danych osobowych jest: Urząd Miejski w Suwałkach, z siedzibą przy ul. Mickiewicza 1, 16-400 Suwałki, 087 – 562 80 00 reprezentowany przez Prezydenta Miasta Suwałk.

b) Inspektorem ochrony danych osobowych w Urzędzie Miejskim w Suwałkach jest Pan Rafał Luto, Zobacz kontaktiod@um.suwalki.pl.

c) Pani/Pana dane osobowe przetwarzane będą w celu przeprowadzenia procedury przetargowej związanej ze sprzedażą nieruchomości zgodnie z przepisami ustawy z dnia 21 sierpnia 1997 r. o gospodarce nieruchomościami.

d) Dane nie będą udostępniane podmiotom innym niż uprawnione na podstawie przepisów prawa oraz podmiotom, którym dane zostały powierzone do przetwarzania.

e) Pani/Pana dane osobowe mogą być przekazywane wyłącznie organom władzy publicznej oraz podmiotom wykonującym zadania publiczne lub działającym na zlecenie organów władzy publicznej, w zakresie i w celach, które wynikają z przepisów powszechnie obowiązującego prawa oraz innym podmiotom, które na podstawie stosownych umów podpisanych z administratorem przetwarzają dane osobowe.

f) Dane osobowe będą przechowywane przez okres niezbędny do realizacji zadania, do którego dane zostały zebrane, a następnie przez czas oraz w zakresie wymaganym przez przepisy prawa (ustawa z dnia 14 lipca 1983 r. o narodowym zasobie archiwalnym i archiwach, Dz. U. z 2020 r. poz. 164 t.j.; Rozporządzenie Prezesa Rady Ministrów z dnia 18 stycznia 2011 r. w sprawie instrukcji kancelaryjnej, jednolitych rzeczowych wykazów akt oraz instrukcji w sprawie organizacji i zakresu działania archiwów zakładowych, Dz. U. z 2011 r., Nr 14, poz. 67).

g) Osoba, której dane dotyczą ma prawo dostępu do treści swoich danych, ich sprostowania, ograniczenia przetwarzania. Nie przysługuje prawo do usunięcia, do przenoszenia oraz sprzeciwu wobec przetwarzania danych.

h) Osoba, której dane osobowe są przetwarzane ma prawo wnieść skargę do Prezesa Urzędu Ochrony Danych Osobowych w związku z przetwarzaniem danych.

i) Podanie danych wynika z przepisów ustawy i jest obowiązkowe. Ich niepodanie uniemożliwi udział w postępowaniu przetargowym. Podanie danych w celach kontaktowych jest dobrowolne, służy usprawnieniu komunikacji.

j) Dane nie będą podlegały zautomatyzowanemu podejmowaniu decyzji, w tym profilowaniu.



Kontakt:
Urząd Miasta Suwałki
tel: Zobacz kontakt87 562 80 36
Zobacz kontaktorg@um.suwalki.pl


Oferta wysłana z programu dla biur nieruchomości ASARI CRM (asaricrm.com)



Kontakt:
Numer telefonu: Zobacz kontakt87 562 80 36
Adres email: Zobacz kontaktorg@um.suwalki.pl

Oceń ofertę


0


35 wydruk błąd schowek

Ostatnio przeglądane

 

 

 

pobieranie

Pobierz wzór umowy

Umowa przedwstępna sprzedaży

wybierz plik do pobrania
doc pdf

 

 

Deweloperzy

);