Prosimy, odblokuj wyświetlanie reklam w naszym serwisie, są one związane z rynkiem nieruchomości.
To dzięki nim masz darmowy dostęp do naszych treści.

Z pozdrowieniami zespół KRN.pl :)


telefon

wiadomość

mapa

Działki, Krzyszkowice

Działki na sprzedaż Krzyszkowice (woj. Małopolskie)

Lokalizacja:

Krzyszkowice, , ul.

Powierzchnia:

5700 m2

Cena:

618 000 zł

Dane szczegółowe

lokalizacja:
Małopolskie, Krzyszkowice
typ obiektu:
działka na sprzedaż
cena:
618 000 zł
powierzchnia:
5700 m2
numer ogłoszenia:
BS5-GS-291784-111
data dodania:
26-03-2026
data modyfikacji:
26-03-2026
jakość wypełnienia oferty:
86%

Szczegóły oferty

|

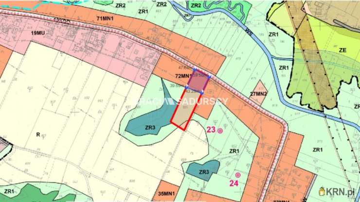
Działka w Krzyszkowicach gm. Myślenice Oferujemy do sprzedaży bardzo ładnie położoną, widokową działkę o powierzchni 5700 m2 położoną w Krzyszkowicach gm. Myślenice. Działka w kształcie prostokąta o wymiarach 40x140 m, o lekkim północno-wschodnim nachyleniu w sąsiedztwie lasu.

MIEJSCOWY PLAN ZAGOSPODAROWANIA PRZESTRZENNEGO

Zgodnie z MPZP działka leży na terenie:

-
zabudowy jednorodzinnej (MN1) - ok. 18a (40x45 m)

- zieleni nieurządzonej (ZR1) - ok. 36,5a

- rolniczym (R) - ok. 2,5a

Tereny zabudowy jednorodzinnej posiadają
podstawowe przeznaczenie
pod zabudowę jednorodzinną.

Jako
przeznaczenie uzupełniające
w terenach zabudowy jednorodzinnej ustala się możliwość lokalizacji:

- zabudowy zagrodowej z możliwością prowadzenia produkcji hodowlanej;

- usług o charakterze komercyjnym i o charakterze publicznym;

Na terenie zabudowy jednorodzinnej obowiązują następujące
warunki zabudowy :

wskaźnik terenu biologicznie czynnego nie może być mniejszy niż 30% powierzchni działki budowlanej,

wskaźnik powierzchni zabudowy nie może być większy niż 40% powierzchni działki budowlanej;

wskaźnik intensywności zabudowy: minimalny na poziomie 0,05 i maksymalny na poziomie 0,60;

minimalna powierzchnia nowo wydzielanej działki wynosi: 800 m2;

minimalna szerokość nowo wydzielanej działki wynosi: 16 metrów, Szczegóły określa uchwała
MPZP Nr: 323/XXXVII/2013
DOJAZD I NAJBLIŻSZA OKOLICA
Działka posiada bezpośredni dostęp do drogi publicznej.
W pobliżu znajdują się m.in.:
- sklep spożywczy - 8700 m
- kościół - 700 m
- szkoła podstawowa - 1200 m
- sklep Lewiatan - 1400 m
Dojazd z działki zarówno do Myślenic zajmuje do 10 minut, a do Krakowa ok. 20 minut

MEDIA:
- gaz - na działce
- kanalizacja - w drodze
- prąd - przy drodze

FORMA WŁASNOŚCI :
uregulowana

Biuro pomaga bezpiecznie przeprowadzić transakcję. Szczegóły oferty
Zobacz kontakt798 352 683
Zobacz kontaktmarek3@sadurscy.pl

::DODATKOWE INFORMACJE |
Prąd: w ulicy |
Gaz: na działce |
Woda: brak |
Dojazd: asfalt |
Otoczenie: panorama |
Kanalizacja: w ulicy |
Odległość od centrum [m]: 700 |
Odl. do sklepu [m]: 800 |
Odl. do szkoły [m]: 1200 |
Wymiary działki [m]: 40x140 m |
Zagosp. działki: niezagospodarowana |
Ukształtowanie działki: lekko nachylona |
Kształt działki: prostokąt |
Ogrodzenie działki: brak |
Warunki zabudowy: MPZP |
Zabudowa działki: brak |
::LINK DO STRONY |
https://sadurscy.pl/offer/BS5-GS-291784
Zobacz Wirtualny Spacer: https://panoramy.galactica.pl/virgo/409572
::KONTAKT DO AGENTA |
Marek Wawrzeń |
+ Zobacz kontakt48 798-352-683 |
Zobacz kontaktmarek3@sadurscy.pl
::DANE BIURA |
Oddział BS5, Nowa Huta |
Bracia Sadurscy Dariusz Sadurski |
Os. Kazimierzowskie 36 |
31-844 Kraków |
Zobacz kontakt12 265 10 29
Pośrednik odpowiedzialny zawodowo za wykonanie umowy pośrednictwa: Marek Wawrzeń (licencja nr: 26458)
|
Oferta wysłana z systemu Galactica Virgo

Kontakt do agenta:
Marek Wawrzeń
Zobacz kontaktmarek3@sadurscy.pl
+ Zobacz kontakt48 798-352-683

Oceń ofertę


0


46 wydruk błąd schowek

Ostatnio przeglądane

 

 

 

pobieranie

Pobierz wzór umowy

Umowa przedwstępna sprzedaży

wybierz plik do pobrania
doc pdf

 

 

Deweloperzy

);