Prosimy, odblokuj wyświetlanie reklam w naszym serwisie, są one związane z rynkiem nieruchomości.
To dzięki nim masz darmowy dostęp do naszych treści.

Z pozdrowieniami zespół KRN.pl :)


telefon

wiadomość

mapa

Działki, Many

Działki na sprzedaż Many (woj. Mazowieckie)

Lokalizacja:

Many, , ul.

Powierzchnia:

376447 m2

Cena:

40 000 000 zł

Dane szczegółowe

lokalizacja:
Mazowieckie, Many
typ obiektu:
działka na sprzedaż
cena:
40 000 000 zł
powierzchnia:
376447 m2
numer ogłoszenia:
4464
data dodania:
29-03-2026
data modyfikacji:
10-04-2026
jakość wypełnienia oferty:
86%

Szczegóły oferty

Many, gmina Tarczyn, ul. Łąkowa
CENA DO NEGOCJACJI
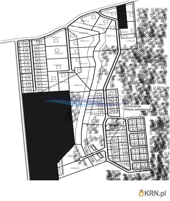
Inwestycja na którą składa się 37,64 ha podzielone na działki budowlane z możliwością zabudowy jednorodzinnej wolnostojącej i bliźniaczej, istnieje również możliwość wykorzystania terenu pod zabudowę usługową do 10 m wysokości. Do ceny należy doliczyć VAT 23%.
Powierzchnie działek od 1000 mkw do 8000 mkw
Na część terenu uzyskano już pozwolenie na budowę, przygotowane zostały także projekty domów.
Link do filmu: https://youtu.be/10mPJy8s6zI?si=c4LuHLxKVe_XH0Gq
Link do lokalizacji inwestycji: https://maps.app.goo.gl/558vL7j3qXaL8rSU9
Jeżeli nie widzą Państwo linku do stron, proszę przekierować się na naszą stronę internetową ze względu, że niektóre portale ogłoszeniowe ukrywają linki w treści ogłoszenia.
Obecnie trwają prace mające na celu doprowadzenie infrastruktury (drogi, woda, prąd).
Cicha i spokojna okolica. Idealna ostoja dla rodzin.
Odległości: Many - Warszawa 40km Many - Mszczonów 14 km Many - Tarczyn 10 km Many - Grójec 23 km
Poniżej przedstawiam ważne informacje z MPZP dla terenu oznaczonego symbolem 4.UMN na którym znajdują się opisywane nieruchomości (wszystkie działki znajdują się na obszarach oznaczonych symbolami 1UMN, 2UMN, 3UMN, 4UMN):
1) przeznaczenie podstawowe:
a) zabudowa usług podstawowych,
b) zabudowa mieszkaniowa jednorodzinna;
2) przeznaczenie dopuszczalne:
a) zieleń urządzona,
b) urządzenia infrastruktury technicznej,
c) drogi wewnętrzne;
3) zasady kształtowania zabudowy i wskaźniki zagospodarowania terenu:
a) budynki usługowe wolno stojące lub usługi wbudowane w bryłę budynku mieszkalnego jednorodzinnego,
b) budynki mieszkalne jednorodzinne wolno stojące lub w zabudowie bliźniaczej,
c) dopuszczalne maksymalnie 2 lokale mieszkalne w budynku usługowym pod warunkiem ich ochrony przed ewentualnymi uciążliwościami,
d) dopuszczalne garaże wolno stojące o łącznej powierzchni całkowitej zabudowy nie większej niż 60 m lub wbudowane w bryłę budynku, o którym mowa w lit a i b,
e) dopuszczalne obiekty małej architektury,
f) linie zabudowy zgodnie z rysunkiem planu i ustaleniami zawartymi w par. 7 pkt 1 i 2,
g) maksymalna wysokość zabudowy dla: -
budynków jak lit a i b nie większa niż 10 m, - garaży nie większa niż 6 m, - obiektów małej architektury nie więcej niż 3 m,
h) maksymalna ilość nadziemnych kondygnacji dla: - budynków jak lit a i b nie większa niż 2, - garaży nie większa niż 1,
i) minimalny udział powierzchni biologicznie czynnej w odniesieniu do powierzchni działki budowlanej 60%,
j) maksymalna powierzchnia zabudowy w odniesieniu do powierzchni działki budowlanej 30%,
k) minimalna intensywność zabudowy w odniesieniu do powierzchni działki budowlanej 0,05,
l) maksymalna intensywność zabudowy w odniesieniu do powierzchni działki budowlanej 0,5,
m) dachy dwu lub wielospadowe, o nachyleniu połaci do 45 z dopuszczeniem dachów płaskich;
4) dopuszczalna powierzchnia nowo wydzielanej działki budowlanej nie mniejsza niż 1 000 m;
5) możliwość wydzielania nowych działek gruntu o powierzchni mniejszej niż określona w pkt 4 dla potrzeb:
a) lokalizacji urządzeń infrastruktury technicznej,
b) wydzielenia terenu pod drogi wewnętrzne,
c) powiększenia sąsiadującej działki gruntu lub regulacji granic między sąsiadującymi działkami gruntu pod warunkiem, że nieruchomość, z której działka gruntu będzie wydzielana po podziale będzie miała minimalną powierzchnię jak pkt 4;
Mateusz Zobacz kontakt570 500 725 Zobacz kontaktm.berent@wisla.nieruchomosci.pl
* Prezentacja nieruchomości wiąże się z obowiązkiem podania swoich danych (imię, nazwisko, PESEL) oraz podpisu na karcie oglądań. * Niniejsza informacja nie stanowi oferty w rozumieniu Kodeksu Cywilnego. Staramy się, aby informacje dotyczące oferowanych obiektów były możliwie dokładne, kompletne i aktualne. Ze względu jednak na fakt, iż informacje te pochodzą od osób trzecich i nie zawsze dają się zweryfikować, firma WISŁA.NIERUCHOMOŚCI nie ponosi odpowiedzialności za ich dokładność, kompletność oraz aktualność.
Oferta wysłana z programu IMO dla biur nieruchomości

Kontakt do agenta:
Mateusz Berent
Zobacz kontakt570 500 725
Zobacz kontakt570 500 725
Zobacz kontaktm.berent@wisla.nieruchomosci.pl

Oceń ofertę


0


391 wydruk błąd schowek

Ostatnio przeglądane

 

 

 

pobieranie

Pobierz wzór umowy

Umowa przedwstępna sprzedaży

wybierz plik do pobrania
doc pdf

 

 

Deweloperzy

);