Prosimy, odblokuj wyświetlanie reklam w naszym serwisie, są one związane z rynkiem nieruchomości.
To dzięki nim masz darmowy dostęp do naszych treści.

Z pozdrowieniami zespół KRN.pl :)


telefon

wiadomość

mapa

Działki, Piła

Działki na sprzedaż Piła (woj. Wielkopolskie)

Lokalizacja:

Piła, , ul.

Powierzchnia:

3171 m2

Cena:

434 000 zł

Dane szczegółowe

lokalizacja:
Wielkopolskie, Piła
typ obiektu:
działka na sprzedaż
cena:
434 000 zł
powierzchnia:
3171 m2
numer ogłoszenia:
44523/3186/OGS
data dodania:
10-04-2026
data modyfikacji:
10-04-2026
jakość wypełnienia oferty:
86%

Szczegóły oferty

Nieruchomość gruntowa niezabudowana z przeznaczeniem
pod zabudowę produkcyjno- usługową – składy, magazyny.


12 czerwca 2026 r. o godz. 9:00 w siedzibie Urzędu Miasta Piły – Piła (64-920) plac Staszica 10, sala 229 B, II piętro, odbędzie się trzeci przetarg ustny nieograniczony na sprzedaż prawa własności nieruchomości położonej przy ul. Glinianej w Pile.


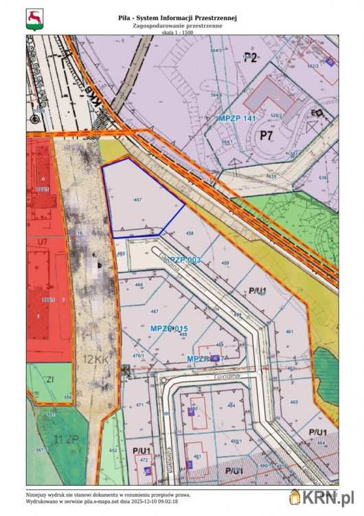
Działka nr 457 (obręb 36) o powierzchni 0,3171 ha.


Opis nieruchomości: nieruchomość gruntowa niezabudowana o dość regularnym kształcie, na przeważającym obszarze działki ukształtowanie terenu płaskie jedynie od zachodniej strony działki występuje niewielka skarpa, działka porośnięta pojedynczymi krzewami. Działka nr 457 od zachodniej strony graniczy z działką nr 16, przez którą biegną tory kolejowe.
Działka znajduje się w otoczeniu zabudowy przemysłowej i usługowej.
Teren o korzystnej ekspozycji i dobrych warunkach lokalizacyjnych, sprzyjających przyszłemu zagospodarowaniu inwestycyjnemu.
Przeznaczenie w planie miejscowym: P/U1 – tereny obiektów produkcyjnych, składów i magazynów oraz zabudowy usługowej.
Infrastruktura drogowa: nieruchomość w pełni skomunikowana z drogą publiczną - ul. Glinianą i ul. Przemysłową. Dojazd do działki przez urządzoną drogę z oświetleniem.
Infrastruktura techniczna: dostęp do infrastruktury technicznej, sieci wodociągowej, kanalizacji sanitarnej oraz energetycznej. Zagospodarowanie wód opadowych i roztopowych we własnym zakresie.

Cena wywoławcza: 434 000,00 złotych, ok. 137 zł /m2.
Do ceny nieruchomości netto ustalonej w drodze przetargu doliczony zostanie podatek VAT określony na dzień sprzedaży nieruchomości, zgodnie z obowiązującymi przepisami ustawy z dnia 11 marca 2004 r. o podatku od towarów i usług, stawka podatku VAT wynosi 23%.
Wysokość wadium: 86 800,00 złotych.
Warunkiem przystąpienia do przetargu jest wniesienie wadium na konto Gminy Piła – PKO BP S.A. Nr Zobacz kontakt02 1020 4027 Zobacz kontakt0000 1702 1119 3366 najpóźniej do 8 czerwca 2026 r.


Szczegółowe informacje dotyczące przetargu można uzyskać:
w Wydziale Gospodarki Nieruchomościami Urzędu Miasta Piły - pokój 118, nr tel. Zobacz kontakt67/3488554 lub pokój 118A, nr tel. Zobacz kontakt67/2104279, w godzinach pracy Urzędu,w Biuletynie Informacji Publicznej Urzędu Miasta Piły pod adresem: www.bip.pila.pl
w zakładce Przetargi na nieruchomości i ruchomości gminne,
na stronie internetowej Urzędu Miasta Piły pod adresem: www.pila.pl w zakładce Przetargi-Nieruchomości.

Widok nieruchomości na mapie w GeoPortalu:
https://mapy.geoportal.gov.pl/imap/Imgp_2.html?identifyParcel=301901_1.0036.457






Kontakt:
Urząd Miasta Piła
tel: Zobacz kontakt673488554
Zobacz kontaktjjedrusiak@um.kalisz.pl


Oferta wysłana z programu dla biur nieruchomości ASARI CRM (asaricrm.com)



Kontakt:
Numer telefonu: Zobacz kontakt673488554
Adres email: Zobacz kontaktjjedrusiak@um.kalisz.pl

Oceń ofertę


0


1881 wydruk błąd schowek

Ostatnio przeglądane

 

 

 

pobieranie

Pobierz wzór umowy

Umowa przedwstępna sprzedaży

wybierz plik do pobrania
doc pdf

 

 

Deweloperzy

);