Prosimy, odblokuj wyświetlanie reklam w naszym serwisie, są one związane z rynkiem nieruchomości.
To dzięki nim masz darmowy dostęp do naszych treści.

Z pozdrowieniami zespół KRN.pl :)


telefon

wiadomość

mapa

Działki, Kępno

Działki na wynajem Kępno (woj. Wielkopolskie)

Lokalizacja:

Kępno, , ul.

Powierzchnia:

150 m2

Cena:

1 950 zł

Dane szczegółowe

lokalizacja:
Wielkopolskie, Kępno
typ obiektu:
działka na wynajem
cena:
1 950 zł
powierzchnia:
150 m2
numer ogłoszenia:
2512/3186/OGW
data dodania:
11-03-2026
data modyfikacji:
11-03-2026
jakość wypełnienia oferty:
86%

Szczegóły oferty

Kępno, dnia 05 marca 2026 roku

PPiGN.6845.5.2026/4


Burmistrz Miasta i Gminy Kępno
ogłasza
I pisemne przetargi nieograniczone na dzierżawę terenów
przeznaczonych na prowadzenie sezonowych ogródków gastronomicznych


1. ZAKRES PRZETARGÓW I OPIS NIERUCHOMOŚCI
Przedmiotem I przetargów jest dzierżawa dwóch terenów położonych na południowej pierzei kępińskiego rynku, przy ul. Rynek w Kępnie, przeznaczonych na prowadzenie sezonowych ogródków gastronomicznych o:
1) powierzchni 0,0150 ha (wymiary: 17,0 m x 8,8 m),
2) powierzchni 0,0165 ha (wymiary: 17,0 m x 9,7 m),
stanowiących części nieruchomości oznaczonej w operacie ewidencji gruntów, w jednostce ewidencyjnej Kępno, obrębie Kępno jako działka nr 1386/4, dla której Sąd Rejonowy w Kępnie prowadzi księgę wieczystą nr KZ1E/ Zobacz kontakt00047770/1.
Nieruchomość stanowi własność Gminy Kępno, nie jest obciążona ograniczonymi prawami rzeczowymi oraz nie jest przedmiotem zobowiązań.
Grunty przeznaczone na prowadzenie ogródków gastronomicznych posiadają regularny kształt, zbliżony do prostokąta i utwardzone kostką brukową. Pełnią funkcję placu rynkowego. W najbliższym sąsiedztwie nieruchomości znajdują się głównie zabudowania o charakterze mieszkaniowym wielorodzinnym (kamienice) oraz handlowo- usługowym.
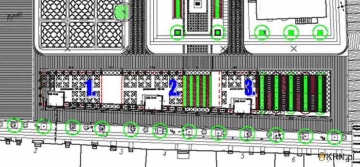
Lokalizację poszczególnych ogródków gastronomicznych przedstawiono na mapie poglądowej oznaczonych numerami 1 i 2.


MAPA POGLĄDOWA


2. PRZEZNACZENIE NIERUCHOMOŚCI W PLANIE ZAGOSPODAROWANIA PRZESTRZENNEGO
1. W miejscowym planie zagospodarowania przestrzennego Gminy Kępno nieruchomość położona jest w terenach o przeznaczeniu: Tereny obsługi komunikacji - symbol rysunku planu 1KO.
2. Nieruchomość położona jest w granicach strefy „A”- ścisłej ochrony konserwatorskiej i archeologicznej – wszelkie działania inwestycyjne wymagają zgody Wojewódzkiego Konserwatora Zabytków.


3. WSTĘPNE ZAŁOŻENIA DOTYCZĄCE WYSTROJU OGRÓDKÓW ORAZ PROWADZENIA DZIAŁALNOŚCI GASTRONOMICZNEJ
1. Na terenie „ogródka" gastronomicznego może być prowadzona sprzedaż i konsumpcja produktów gastronomicznych oraz cukierniczych, a także napojów alkoholowych. Sprzedaż napojów alkoholowych wymaga uzyskania stosownego zezwolenia.
2. Zaplecze technologiczne i sanitarne ogródków stanowić mają kioski gastronomiczne o maksymalnej powierzchni zabudowy 35,00 m2, wykonane na koszt osób, które przetarg wygrają. Kioski lokalizuje się na terenie ogródków gastronomicznych. Szczegółowa lokalizacja kiosków wynika z rozmieszczenia studzienek wod-kan. i przyłączy energetycznych. Kioski projektuje się jako niezwiązane z gruntem. Kioski mają być posadowione na nawierzchni rynku za pośrednictwem drewnianego podestu wyniesionego ponad poziom płyty Rynku (maksymalnie 15 cm). Studzienki i przyłącza winny znajdować się pod podłogą kiosku i być zabezpieczone przed dostępem osób trzecich. Korpus kiosku dostosować do wymogów funkcjonalnych i przepisów sanitarno-epidemiologicznych.
3. Zasady ogólne obowiązujące przy wyposażaniu ogródków gastronomicznych:
1) Meble z ogólnodostępnej oferty handlowej: drewniane, wiklinowe, z ratanu lub metaloplastyki ozdobnej; dopuszcza się dobrej jakości imitacje materiałów naturalnych,
2) Parasole:
- w ramach jednego ogródka gastronomicznego : w jednolitym kolorze, o jednakowych wymiarach i jednakowej konstrukcji,
- parasole powinny stać na jednej nodze (lokalizowanej centralnie lub narożnikowo.
3) Ogrodzenia ogródków:
- zaleca się zastosowanie ogrodzeń w formie zieleni w donicach lub ogrodzeń ażurowych, niezwiązanych z gruntem, dekorowanych zielenią (np. wieże kwiatowe połączone ażurowymi przęsłami z metaloplastyki),
- ogrodzenia mają być wykonane przy użyciu materiałów naturalnych (drewniane, wiklinowe, z ratanu ) lub metaloplastyki ozdobnej, jako samonośne elementy segmentowe,
- wysokość ogrodzeń ogródków może wynieść max. 90 cm;
- w ogrodzenie ogródków mogą być wkomponowane elementy oświetlenia;
4) Zaleca się zagospodarować teren ogródka zielenią i kwiatami,
5) Dzierżawca na terenie ogródka zobowiązany będzie: wystawić kosze na śmieci, a także utrzymywać porządek i czystość na dzierżawionym terenie oraz w jego bezpośrednim sąsiedztwie,
6) Na terenie ogródków wyklucza się:
- umieszczanie reklam, za wyjątkiem znaków logo związanych z prowadzoną działalnością, o której mowa pkt 3 ppkt 2, umieszczonych na ogrodzeniach oraz powierzchniach parasoli,
- ustawianie ogródków w formie kopuły lub namiotu,
- ustawianie sanitariatów typu „toi-toi”,
- umieszczanie grilla na nawierzchni Rynku,
- działalność innych podmiotów gospodarczych,
- prowadzenie innego rodzaju sprzedaży, aniżeli wynikającej z działalności wymienionej pkt 3 ppkt 1
4. Projekt ogródka należy uzgodnić z Wojewódzkim Konserwatorem Zabytków oraz w zakresie funkcjonalno–sanitarnym z Państwowym Powiatowym Inspektorem Sanitarnym.
5. Dzierżawca zobowiązany będzie do zaprzestania działalności usługowej w czasie trwania uroczystości państwowych i kościelnych na płycie Rynku, o których zostanie wcześniej poinformowany stosownym pismem.
6. Dzierżawca corocznie w okresie od 16 października do 15 kwietnia roku następnego, zobowiązany będzie do usunięcia ogródka z powierzchni Rynku. Ustala się ostateczny termin usunięcia ogródka wraz z kioskiem gastronomicznym w terminie do 31 października każdego roku obowiązywania umowy. W przypadku nieusunięcia ogródka w terminie wyżej wskazanym Dzierżawca zostanie obciążony karą umowną w wysokości 100,00 zł za każdy rozpoczęty dzień dalszego korzystania z gruntu. Dodatkowo w przypadku dalszego niewykonania przez Dzierżawcę obowiązku usunięcia ogródka gastronomicznego wraz z kioskiem Wydzierżawiającemu przysługuje prawo do ich usunięcia na koszt i ryzyko Dzierżawcy.
7. Dzierżawca zobowiązany jest przestrzegać przepisów Prawa budowlanego i przepisów wykonawczych związanych z umiejscowieniem ogródka gastronomicznego wraz z kioskiem gastronomicznym.
8. Dzierżawca zobowiązany jest zapewnić przestrzeganie norm przewidzianych w przepisach dotyczących ochrony środowiska, w szczególności norm poziomu hałasu (m.in. muzyki); w ustawie o wychowaniu w trzeźwości i przeciwdziałaniu alkoholizmowi, a także w innych przepisach prawa – korzystanie przez Dzierżawcę z przedmiotu dzierżawy nie może zakłócać możliwości korzystania z pobliskiego terenu przez innych użytkowników.


4. OKRES DZIERŻAWY, CENA WYWOŁAWCZA STAWKI CZYNSZU ORAZ TERMINY JEGO WNOSZENIA I SPOSÓB AKTUALIZACJI
1. Okres dzierżawy – do 5 lat, tj. od 16 kwietnia 2026 do 15 października 2030 roku.
2. Forma dzierżawy - dzierżawa nastąpi w drodze przetargów pisemnych nieograniczonych.
3. Cel dzierżawy – prowadzenie działalności gastronomicznej.
4. Wysokość czynszu dzierżawnego określona zostanie w drodze przetargu.
5. Cena wywoławcza stawki czynszu dzierżawy do przetargu wynosi 13,00 zł (słownie: trzynaście i 00/100 złotych) netto, plus należny podatek VAT, za 1 m2 gruntu miesięcznie.
6. Podana w ust. 6 cena wywoławcza nie obejmuje:
- podatku od towarów i usług, który będzie naliczany według zasad i stawek obowiązujących w dniu zawarcia umowy z Dzierżawcą,
- podatku od nieruchomości
- opłaty za dostawę energii elektrycznej – na podstawie refaktury wystawionej przez Wydzierżawiającego wg aktualnie obowiązujących Wydzierżawiającego stawek i wskazań urządzeń pomiarowych, zainstalowanych na koszt Dzierżawcy,
- opłaty za odbiór odpadów komunalnych - na podstawie umowy zawartej z podmiotem posiadającym wpis do rejestru działalności gospodarczej regulowanej w Gminie Kępno lub w formie podatku śmieciowego i złożonej przez Dzierżawcę stosownej deklaracji we właściwym miejscowo urzędzie,
- opłaty za dostawę wody i odprowadzanie ścieków- na podstawie umowy zawartej przez Dzierżawcę z przedsiębiorstwem wodociągowo-kanalizacyjnym wg wskaz urządzeń pomiarowych zainstalowanych na koszt Dzierżawcy, chyba że będzie korzystał z własnych urządzeń i instalacji wodnokanalizacyjnych, znajdujących się w sąsiedniej nieruchomości,
- kosztów związanych z użytkowaniem gruntu pod ogródkiem gastronomicznym oraz prowadzeniem działalności, w tym sprzątanie, ubezpieczenie, usuwanie bieżących napraw i konserwacji płyty rynku z kostki granitowej.
- wszelkie sprawy adaptacyjne przystosowania gruntu do rodzaju prowadzonej działalności Dzierżawca będzie prowadził na własny koszt.
7. Czynsz za dzierżawę ogródków płatny będzie z góry do dnia 15-go każdego miesiąca obowiązywania umowy dzierżawy.
8. Wysokość czynszu dzierżawnego w czasie trwania umowy dzierżawy będzie aktualizowana o średnioroczny wskaźnik wzrostu cen towarów i usług konsumpcyjnych ogłoszony przez Prezesa Głównego Urzędu Statystycznego dla poprzedniego roku kalendarzowego obowiązywania umowy.
9. Nie dokonywać waloryzacji jeżeli wskaźnik cen towarów i usług konsumpcyjnych, o którym mowa w ust. 2 wzrósł o mniej niż 2% w stosunku do roku poprzedniego i różnica pomiędzy poprzednią całkowitą kwotą czynszu a zwaloryzowaną, nie przekracza jednokrotności wartości opłaty pobieranej przez operatora wyznaczonego w rozumieniu ustawy z dnia 23 listopada 2012 r. - Prawo pocztowe za traktowanie przesyłki listowej jako przesyłki poleconej.
10. Warunki dzierżawy ustalono we wzorze umowy dzierżawy stanowiącym załącznik nr 1 do niniejszego ogłoszenia.


5. TERMIN ORAZ MIEJSCE PRZETARGÓW
1. Przetargi (część jawna przetargów z otwarciem ofert) odbędzie się w dniu 25 marca 2026 roku, od godz. 9:00 w Sali Konferencyjnej Wydziału Planowania Przestrzennego i Gospodarki Nieruchomościami Urzędu Miasta i Gminy w Kępnie przy ul. Kościuszki 9.
2. Przy wyborze oferty komisja przetargowa weźmie pod uwagę najwyższą zaoferowaną cenę, ustaloną w warunkach przetargu.
3. Zakończenie postępowania przetargowego oraz ogłoszenie wyników przewiduje się w terminie nie dłuższym niż 7 dni licząc od dnia otwarcia ofert. Wyniki przetargów ogłoszone zostaną na stronie internetowej Biuletynu Informacji Publicznej Urzędu Miasta i Gminy w Kępnie: http://bip.kepno.pl/ (zakładka mienie komunalne, katalog: obrót mieniem komunalnym, podkatalog: 2026).


6. KAUCJA ZABEZPIECZAJĄCA
1. Osobie, która przetarg wygra - wadium zalicza się na poczet kaucji zabezpieczającej w kwocie 5.000,00 zł (słownie: pięć tysięcy i 00/100 złotych).
2. Kwota kaucji przeznaczona jest na zabezpieczenie wszelkich roszczeń Wydzierżawiającemu do Dzierżawcy, które mogą powstać w trakcie obowiązywania umowy. W szczególności kaucja zabezpiecza roszczenia Wydzierżawiającego o zapłatę czynszu, należności za bezumowne korzystanie z przedmiotu dzierżawy, a także odszkodowań należnych Wydzierżawiającemu do Dzierżawcy oraz innych należności, które Dzierżawca jest zobowiązany uiścić na rzecz Wydzierżawiającego na podstawie umowy lub przepisów prawa.


7. WARUNKI WZIĘCIA UDZIAŁU W PRZETARGACH, ZAWARTOŚĆ OFERTY
1. Do przetargu mogą być zakwalifikowane osoby, które:
• wniosą w gotówce - w każdym z dwóch przetargów, wadium, w wysokości 5.000,00 zł (słownie: pięć tysięcy i 00/100 złotych ), na konto Urzędu Miasta i Gminy w Kępnie w Banku Santander S.A. I oddział Kępno, nr rachunku Zobacz kontakt65-1090-114 Zobacz kontakt4-0000-0000-1400-3711 do dnia 20 marca 2026 roku. (decyduje data wpływu na konto Urzędu), z dopiskiem „Wadium do przetargu na dzierżawę ogródka gastronomicznego nr ……….”. Wpłata wadium po terminie skutkuje niedopuszczeniem do przetargu. Za datę wpłacenia wadium uważa się wpływ środków pieniężnych na wskazany wyżej rachunek bankowy.
• złożą w siedzibie Urzędu Miasta i Gminy w Kępnie przy ul. Ratuszowej 1, 63-600 Kępno lub prześlą na adres urzędu wyżej wskazany, w zamkniętej kopercie z dopiskiem „Przetarg na dzierżawę terenu pod ogródek gastronomiczny nr ……” i opatrzonej klauzulą „Nie otwierać do dnia 20.03.2026r. do godziny 9:00” w nieprzekraczalnym terminie do dnia 20 marca 2026 roku (liczy się data wpływu do urzędu) następujące dokumenty:
- wg treści określonej w Formularzu ofertowym.
Pisemna oferta powinna zawierać:
1) imię, nazwisko i adres albo nazwę lub firmę oraz siedzibę, jeżeli zgłaszającym jest osoba prawna lub inny podmiot ,
2) datę sporządzenia oferty,
3) oświadczenie, że zgłaszający zapoznał się z treścią niniejszego ogłoszenia oraz warunkami przetargu i przyjmuje te warunki bez zastrzeżeń,
4) numer miejsca (ogródek 1 lub 2), na którym będzie funkcjonował ogródek,
5) proponowaną stawkę czynszu dzierżawnego netto, bez należnego podatku VAT,
6) do oferty należy dołączyć również kopię dowodu wpłaty wadium.
7) oferta wraz z załączonymi dokumentami winna być zszyta, a poszczególne jej strony ponumerowane i podpisane przez osoby upoważnione do składania oświadczeń woli w imieniu oferenta.
2. W przypadku uchylenia się osób, ustalonych na dzierżawców w drodze niniejszych przetargów, od zawarcia umowy dzierżawy – wadium ulega przepadkowi na rzecz Gminy Kępno.
3. Przetargi uważa się za zamknięte z chwilą podpisania protokołu z przetargów.
4. Osobom, które przetargu nie wygrały – wadium zwraca się niezwłocznie po zamknięciu przetargu.
5. Osobie, która przetarg wygrała - wadium zalicza się na poczet kaucji zabezpieczającej.
6. Postąpienie nie może wynosić mniej niż 0,50 zł netto (słownie: pięćdziesiąt groszy). Złożenie oferty zawierającej propozycję wysokości miesięcznego czynszu netto równej lub niższej niż cena wywoławcza powiększona o jedno minimalne postąpienie, tj. 13,50 zł (słownie: trzynaście i 50/100 złotych) za 1 m2 gruntu miesięcznie spowoduje odrzucenie oferty.
7. Przetarg może się odbyć, chociażby wpłynęła tylko jedna oferta spełniająca warunki określone w ogłoszeniu o przetargu, tj. jeżeli przynajmniej jeden uczestnik przedstawi ofertę miesięcznej stawki czynszu dzierżawy za jeden metr kwadratowy powiększoną co najmniej o jedno postąpienie, o którym mowa w pkt 6 powyżej ceny wywoławczej. Cena oferty w przetargu musi zatem obejmować cenę wywoławczą stawki czynszu dzierżawnego powiększoną minimalnie o wysokość ustalonego w pkt 6 postąpienia.
8. Protokół z przeprowadzonego przetargu stanowi podstawę zawarcia umowy dzierżawy. Oferent, który wygrał przetarg zostanie powiadomiony w terminie 7 dni pisemnie lub telefonicznie o fakcie wygrania przetargu. Przetarg uważa się za zamknięty z chwilą podpisania protokołu.
9. Przystąpienie do przetargu oznacza, że uczestnikowi przetargu znany jest stan prawny i faktyczny oraz, że przyjmuje warunki przetargu i treści wzoru umowy dzierżawy bez zastrzeżeń.
10. Z osobą ustaloną w drodze przetargu na dzierżawcę gruntu zawarta zostanie umowa dzierżawy wg treści niniejszego ogłoszenia o przetargu i uwzględnieniem warunków ustalonych przez Wojewódzkiego Konserwatora Zabytków, w terminie nie dłuższym niż 14 dni od dnia przedłożenia w Urzędzie Miasta i Gminy w Kępnie zaakceptowanej przez ww. organ koncepcji ogródków gastronomicznych.
11. Zastrzega się prawo unieważnienia przetargu bez podania przyczyny, na każdym etapie, a także prawo zamknięcia przetargu bez wybrania którejkolwiek z ofert.
12. W zakresie nieuregulowanym niniejszym ogłoszeniem o przetargu mają zastosowanie przepisy rozporządzenia Rady Ministrów z dnia 14 września 2004 r. w sprawie sposobu i trybu przeprowadzania przetargów oraz rokowań na zbycie nieruchomości (t.j. Dz. U. z 2021 r. poz. 2213) odnoszące się do przetargu pisemnego nieograniczonego.


8. INFORMACJE DODATKOWE:
1. Z osobami ustalonymi w drodze przetargów na dzierżawcę ogródków zawarte zostaną umowy dzierżawy pod warunkiem, że Koncepcja zagospodarowania ogródka gastronomicznego uzyska akceptację Wojewódzkiego Konserwatora Zabytków.
2. Przed przystąpieniem do użytkowania Dzierżawca dostarczy do Urzędu Miasta i Gminy w Kępnie z siedzibą przy ul. Ratuszowej 1, 63-600 Kępno:
1) zaakceptowaną przez Wojewódzkiego Konserwatora Zabytków koncepcję zagospodarowania ogródka gastronomicznego;
2) w zakresie funkcjonalno–sanitarnym stosowną decyzję Państwowego Powiatowego Inspektora Sanitarnego w Kępnie dotyczącej zatwierdzenie zakładu i wpisu do rejestru zakładów podlegających urzędowej kontroli organów Państwowej Inspekcji Sanitarnej;
3) w przypadku chęci sprzedaży alkoholu zobowiązany będzie do przedłożenia kserokopii zezwolenia na sprzedaż napojów alkoholowych przeznaczonych do spożycia w miejscu sprzedaży wraz z kserokopią dowodu wpłaty za korzystanie z ww. zezwolenia na sprzedaż napojów alkoholowych
3. Wszelkie pozwolenia, uzgodnienia i odbiory umożliwiające prowadzenie działalności gastronomicznej, Dzierżawca zobowiązany jest uzyskać własnym staraniem i na własny koszt. Wstępne uzgodnienia w tym zakresie należy przeprowadzić przed przystąpieniem do przetargu.
2. Dodatkowe informacje, w tym szczegółowy opis i lokalizację działek gruntu będących przedmiotem dzierżawy, można uzyskać w Wydziale Planowania Przestrzennego i Gospodarki Nieruchomościami Urzędu Miasta i Gminy w Kępnie: ul. Kościuszki 9, 63-600 Kępno, (tel. Zobacz kontakt62 590 94 75) lub pisemnie pisząc na adres: Urząd Miasta i Gminy w Kępnie, ul. Ratuszowa 1, 63-600 Kępno.


I Zastępca Burmistrza Miasta i Gminy Kępno
/ - / mgr inż. Artur Kosakiewicz




Prowadzący sprawę: Daniel Dyla,
Wydział Planowania Przestrzennego i Gospodarki Nieruchomościami, tel.: Zobacz kontakt62 59 09 475




Kontakt:
Urząd Miasta i Gminy Kępno
tel: Zobacz kontakt62 590 94 75
Zobacz kontaktkepno@um.kepno.pl


Oferta wysłana z programu dla biur nieruchomości ASARI CRM (asaricrm.com)



Kontakt:
Numer telefonu: Zobacz kontakt62 590 94 75
Adres email: Zobacz kontaktkepno@um.kepno.pl

Oceń ofertę


0


90 wydruk błąd schowek

Ostatnio przeglądane

 

 

 

pobieranie

Pobierz wzór umowy

Umowa przedwstępna najmu

wybierz plik do pobrania
doc pdf

 

 

Deweloperzy

);