Prosimy, odblokuj wyświetlanie reklam w naszym serwisie, są one związane z rynkiem nieruchomości.
To dzięki nim masz darmowy dostęp do naszych treści.

Z pozdrowieniami zespół KRN.pl :)


telefon

wiadomość

mapa

Działki, Stefanówka, ul. Ogrodowa

Działki na sprzedaż Stefanówka (woj. Mazowieckie), ul. Ogrodowa

Lokalizacja:

Stefanówka, , ul. Ogrodowa

Powierzchnia:

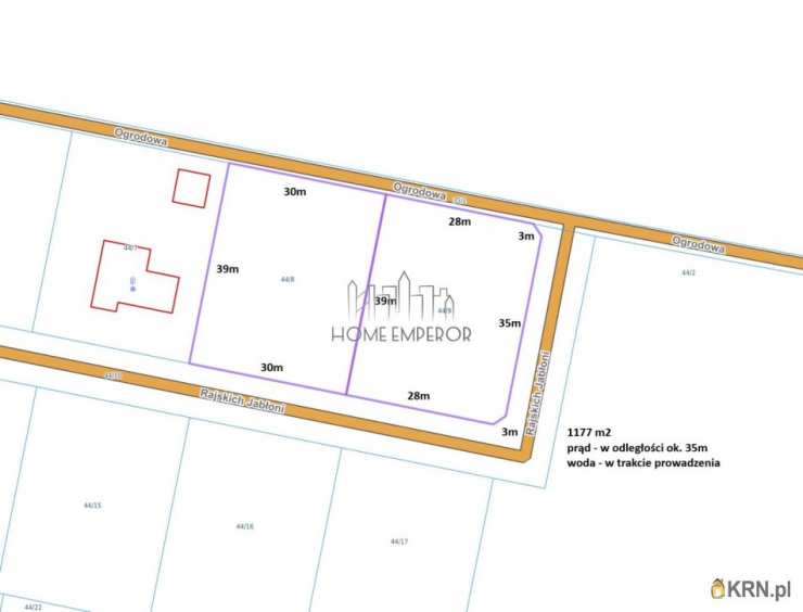
1177 m2

Cena:

307 000 zł

Dane szczegółowe

lokalizacja:
Mazowieckie, Stefanówka, ul. Ogrodowa
typ obiektu:
działka na sprzedaż
cena:
307 000 zł
powierzchnia:
1177 m2
numer ogłoszenia:
EMP-GS-10260
data dodania:
02-10-2025
data modyfikacji:
02-10-2025
jakość wypełnienia oferty:
90%

Szczegóły oferty


Do działek dojedziesz wklejając w Google Maps: 51.958889, 20.882861
https://maps.app.goo.gl/YVgUDQVRoBL4Z1oo7
Stefanówka, ul. Ogrodowa
Numery ewidencyjne 44/8 lub 44/9
Media
Prąd - w odległości około 35m
Woda - w trakcie prowadzenia
Wymiary
30m x 39m
Działki objęte są miejscowym planem zagospodarowania przestrzennego pod tereny zabudowy mieszkaniowej jednorodzinnej z towarzyszącymi usługami:
Ustalenia planu (symbol MN/U):
1. Dopuszcza się lokalizację:
- usług oraz nieuciążliwego rzemiosła usługowego, wbudowanych lub wolnostojących, których uciążliwość nie wykracza poza granice działki,
- budynków gospodarczych, (tylko dla zabudowy mieszkaniowo-usługowej),
- budynków na granicy działki na terenach niezabudowanych, wyznaczonych w planie pod zabudowę,
- sieci i urządzeń infrastruktury technicznej,
- dróg dojazdowych, parkingów i garaży niezbędnych do obsługi obszaru,
- indywidualnych ujęć wody pitnej i pożarowej,
2. Na terenach mieszkaniowo-usługowych wyklucza się:
- lokalizację handlu hurtowego, usług lakierniczych, blacharskich, transportowych, baz, składów i magazynów rzemiosła produkcyjnego, innych obiektów przeznaczonych na działalność gospodarczą uciążliwą dla otoczenia oraz budowę i rozbudowę (istniejących) zakładów produkcyjnych itp.,
- budowę i rozbudowę inwentarskich budynków produkcyjnych,
3. Powierzchnia biologicznie czynna działki nie może być mniejsza niż 70%;
4. Nieprzekraczalna wysokość zabudowy, mierząc od poziomu terenu do najwyższego punktu budynku, powinna wynosić: 2,5 kondygnacji tj. do 11 m.
Zapraszam do kontaktu:
Maciej Adamczyk
Zobacz kontakt883-106-453
Biuro pobiera prowizję za pośrednictwo w nabyciu nieruchomości.
Opis oferty zawarty na stronie internetowej sporządzany jest na podstawie oględzin nieruchomości oraz informacji uzyskanych od właściciela, może podlegać aktualizacji i nie stanowi oferty określonej w art. 66 i następnych K.C.
Oferta wysłana z systemu Galactica Virgo

Kontakt do agenta:
Maciej Adamczyk
Zobacz kontaktmaciej.adamczyk@homeemperor.pl
Zobacz kontakt883106453
Zobacz kontakt883 106 453

Oceń ofertę


0


79 wydruk błąd schowek

Ostatnio przeglądane

 

 

 

pobieranie

Pobierz wzór umowy

Umowa przedwstępna sprzedaży

wybierz plik do pobrania
doc pdf

 

 

Deweloperzy

);