Prosimy, odblokuj wyświetlanie reklam w naszym serwisie, są one związane z rynkiem nieruchomości.
To dzięki nim masz darmowy dostęp do naszych treści.

Z pozdrowieniami zespół KRN.pl :)


telefon

wiadomość

mapa

Działki, Chrzanów, ul. Śląska

Działki na sprzedaż Chrzanów (woj. Małopolskie), ul. Śląska

Lokalizacja:

Chrzanów, , ul. Śląska

Powierzchnia:

1155 m2

Cena:

397 000 zł

Dane szczegółowe

lokalizacja:
Małopolskie, Chrzanów, ul. Śląska
typ obiektu:
działka na sprzedaż
cena:
397 000 zł
powierzchnia:
1155 m2
numer ogłoszenia:
BS5-GS-300443-65
data dodania:
12-03-2026
data modyfikacji:
12-03-2026
jakość wypełnienia oferty:
90%

Szczegóły oferty

|

D
ziałka usługowo
-
inwestycyjna z pnb w Chrzanowie

Oferujemy na sprzedaż działkę budowlaną położoną w Chrzanowie przy ul. Śląskiej (głównej drodze prowadzącej do Jaworzna), w pobliżu zjazdu z autostrady A4.
Działka o powierzchni 1155 m 2 , w kształcie prostokąta o wymiarach z ok. 21 x 54 m. Teren płaski, niezabudowany i niezadrzewiony.

Nieruchomość posiada
prawomocne pozwolenie na budowę
z pełną dokumentacją do zaplanowanej inwestycji tj.
budowy budynku usługowo - handlowego
wraz z infrastrukturą techniczną, z uwzględnieniem budowy zjazdu publicznego z drogi gminnej.

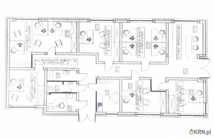
OPIS INWESTYCJI

Planowana inwestycja ma polegać na budowie budynku usługowo - handlowego o nw. parametrach:
1. Zestawienie powierzchni użytkowej budynku:
pow. zabudowy - 230 m 2
kubatura - 724 m3
pow. całkowita - 179,58
m 2

pow. użytkowa - 179,58
m 2

2. Rozkład pomieszczeń:
hol - 3,93
m 2

biuro - 13,2
m 2

biuro - 14,86
m 2

pom. socjalne - 8,88
m 2

komunikacja - 32,15
m 2

wc - 6,29
m 2

wc - 3,6
m 2

pom. gospodarcze - 3,6
m 2

biuro - 14,42
m 2

biuro - 28,09
m 2

biuro - 16,97
m 2

biuro - 20,24
m 2

pom. handlowe - 13,35
m 2

RAZEM: 179,58
m 2 Przy budynku zaplanowano wykonanie
8 miejsc postojowych.

WARUNKI ZABUDOWY
Decyzja o warunkach zabudowy przewiduje nw. parametry:
- powierzchnia inwestycji - 70%
- powierzchnia biologicznie czynna - min. 30%
- wysokość budynku - 11 m (co pozwala na ewentualną rozbudowę planowanego budynku)

MEDIA:
- prąd, woda, gaz, kanalizacja - znajdują się przy działce
-
wydano warunki przyłączy dla wszystkich mediów
-
światłowód
przy działce

INNE:
działka utwardzona ok. 10 lat temu kamieniem

FORMA WŁASNOŚCI:
uregulowana, bez obciążeń

Biuro pomaga bezpiecznie przeprowadzić transakcję.

Szczegóły oferty
Zobacz kontakt798 352 683

Zobacz kontaktmarek3@sadurscy.pl
::DODATKOWE INFORMACJE |
Prąd: na działce |
Gaz: w ulicy |
Woda: w ulicy |
Dojazd: asfalt |
Otoczenie: działki zabudowane |
Kanalizacja: w ulicy |
Komunikacja publ.: autobus |
Odległość do komunikacji publicznej [m]: 10 |
Odległość od centrum [m]: 2000 |
Odl. do sklepu [m]: 750 |
Odl. do szkoły [m]: 4000 |
Odl. do przedszkola [m]: 600 |
Wymiary działki [m]: 54x21 m |
Zagosp. działki: niezagospodarowana |
Ukształtowanie działki: płaska |
Kształt działki: prostokąt |
Ogrodzenie działki: częściowo ogrodzona |
Warunki zabudowy: prawomocne pozwolenie na budowę |
Zabudowa działki: brak |
Grunt utwardzany: TAK |
::LINK DO STRONY |
https://sadurscy.pl/offer/BS5-GS-300443
Zobacz Wirtualny Spacer: https://panoramy.galactica.pl/virgo/447589
::KONTAKT DO AGENTA |
Marek Wawrzeń |
+ Zobacz kontakt48 798-352-683 |
Zobacz kontaktmarek3@sadurscy.pl
::DANE BIURA |
Oddział BS5, Nowa Huta |
Bracia Sadurscy Dariusz Sadurski |
Os. Kazimierzowskie 36 |
31-844 Kraków |
Zobacz kontakt12 265 10 29
Pośrednik odpowiedzialny zawodowo za wykonanie umowy pośrednictwa: Marek Wawrzeń (licencja nr: 26458)
|
Oferta wysłana z systemu Galactica Virgo

Kontakt do agenta:
Marek Wawrzeń
Zobacz kontaktmarek3@sadurscy.pl
+ Zobacz kontakt48 798-352-683

Oceń ofertę


0


36 wydruk błąd schowek

Ostatnio przeglądane

 

 

 

pobieranie

Pobierz wzór umowy

Umowa przedwstępna sprzedaży

wybierz plik do pobrania
doc pdf

 

 

Deweloperzy

);