Prosimy, odblokuj wyświetlanie reklam w naszym serwisie, są one związane z rynkiem nieruchomości.
To dzięki nim masz darmowy dostęp do naszych treści.

Z pozdrowieniami zespół KRN.pl :)


telefon

wiadomość

mapa

Dom, Wrocław, Psie Pole/Widawa, ul. Cholewkarska

Dom na sprzedaż Wrocław (woj. Dolnośląskie), Psie Pole/Widawa, ul. Cholewkarska

Lokalizacja:

Wrocław, Psie Pole/Widawa, ul. Cholewkarska

Powierzchnia:

94.69 m2

Cena:

875 000 zł

Dane szczegółowe

lokalizacja:
Dolnośląskie, Wrocław, Psie Pole/Widawa, ul. Cholewkarska
typ obiektu:
dom na sprzedaż
cena:
875 000 zł
pokoi:
4
ilość pięter w budynku:
1
powierzchnia:
94.69 m2
numer ogłoszenia:
122899
data dodania:
21-11-2025
data modyfikacji:
21-11-2025
jakość wypełnienia oferty:
100%

Szczegóły oferty

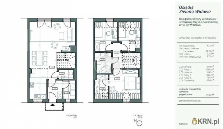
TERAZ NIŻSZA CENA! CENA PRZED PROMOCJĄ 925000 ZŁNa sprzedaż oferujemy segment o powierzchni użytkowej około 95 mÂ2, zlokalizowany w prestiżowej inwestycji Osiedle Zielona Widawa. Każdy segment zapewnia przestronne i funkcjonalne wnętrza rozmieszczone na dwóch kondygnacjach: Parter: aneks kuchenny otwarty na przestronny salon, toaleta, przedsionek oraz pomieszczenie gospodarcze. Piętro: trzy pokoje, w tym jeden z garderobą, oraz duża łazienka. Dodatkowo: -do dyspozycji strych nieużytkowy.-dwa miejsca postojowe naziemnie-ogródek W budynkach zastosowane zostały innowacyjne rozwiązania ekologiczne, w tym materiały ceramiczne, drewno, pompy ciepła, panele fotowoltaiczne, elektryczne rolety zewnętrzne, przygotowanie pod montaż kominka, bezodpływowe zbiorniki z czujnikiem stanu zapełnienia oraz system Smart Home. Dodatkowo w obrębie osiedla zaplanowano „ogrody deszczowe” zapewniające retencję wód opadowych.Lokalizacja: Inwestycja położona jest w bliskiej odległości od głównych arterii komunikacyjnych Wrocławia, takich jak Autostradowa Obwodnica Wrocławia (AOW), Droga Ekspresowa S5 oraz Obwodnica Śródmiejska. Dla osób korzystających z komunikacji miejskiej, w pobliżu znajduje się linia autobusowa. W okolicy dostępna jest infrastruktura handlowo-usługowa, w tym Biedronka, Dino i Żabka. Dojazd do Centrum Handlowego Marino zajmuje zaledwie 7 minut.Standard wykończenia: Ściany murowane z pustaków ceramicznych. Dachy skośne pokryte dachówką, w części płaskiej papą. Izolacja w technologii białej wanny. Sufit nad parterem z płyt filigranowych do własnego wykończenia. Posadzki jastrychowe do własnego wykończenia. Stolarka okienna PCV z roletami na parterze i parapetami zewnętrznymi. Instalacja elektryczna, fotowoltaiczna (1,27kWp z możliwością rozbudowy) oraz telewizyjna i internetowa. C.o. podłogowe z pompą ciepła. Komin dymowy do kominka na paliwo stałe. Szambo do 10mÂł z czujnikiem zapełnienia.Do ceny domów należy doliczać udział w działkach wspólnych w kwocie 2460 zł bruttoOferta nie stanowi oferty w rozumieniu Kodeksu cywilnego.Zainteresowanych zapraszam do kontaktu!104

Oceń ofertę


0


63 wydruk błąd schowek

Ostatnio przeglądane

 

 

 

pobieranie

Pobierz wzór umowy

Umowa przedwstępna sprzedaży

wybierz plik do pobrania
doc pdf

 

 

Deweloperzy

);