Prosimy, odblokuj wyświetlanie reklam w naszym serwisie, są one związane z rynkiem nieruchomości.
To dzięki nim masz darmowy dostęp do naszych treści.

Z pozdrowieniami zespół KRN.pl :)


telefon

wiadomość

mapa

Dom, Szklarska Poręba

Dom na sprzedaż Szklarska Poręba (woj. Dolnośląskie)

Lokalizacja:

Szklarska Poręba, , ul.

Powierzchnia:

480.00 m2

Cena:

3 500 000 zł

Dane szczegółowe

lokalizacja:
Dolnośląskie, Szklarska Poręba
typ obiektu:
dom na sprzedaż
cena:
3 500 000 zł
pokoi:
15
ilość pięter w budynku:
4
powierzchnia:
480.00 m2
media:
prąd, gaz
numer ogłoszenia:
9172/3186/ODS
data dodania:
01-02-2026
data modyfikacji:
01-02-2026
jakość wypełnienia oferty:
100%

Szczegóły oferty

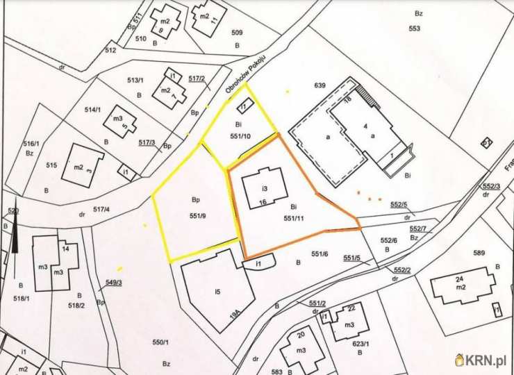
ntownym remoncie, wymieniono wszystkie media na nowe, tynki wewnątrz, oraz dach i elewację. Dom został przygotowany do działalności pensjonatowej i taką funkcję pełni do dzisiaj. W 2025r w willi wykonano remonty tworząc nowe apartamenty z aneksami, co bardzo uatrakcyjniło ofertę. Budynek przepiękny klimatyczny, dla wybrednego klienta, z piękną historią, która przyciąga gości interesujących się historią. Można przywrócić mu funkcję mieszkalną tworząc kilka pięknych mieszkań, lub pozostawić dotychczasową, działalność. Pensjonat jak i działka pod nim jest własnością, a nie w użytkowaniu wieczystym, tak jak wiele innych działek w Szklarskiej Porębie. Cena obejmuje budynek willi 504m2, oraz działkę (551/11)pow. 1270m2;
Dodatkowo sprzedam dużą działkę okalająca posesję na której można inwestować w budynek apartamentowy lub domki turystyczne. Działka 1430m2.( cena nie obejmuje)
Budynek posiada wszelkie odbiory i pozwolenia do prowadzenia działalności hotelowej i gastronomicznej
Oferta bez pośredników, od właściciela, bez prowizji pośrednika. Informuję że powyższa oferta dotyczy sprzedaży wyłącznie samej nieruchomości (budynku), a nie mojej firmy.
A na pytanie: Dlaczego sprzedaję nieruchomość? Odpowiadam - Pora pomyśleć o emeryturze. Polecam. CENA 3.500.000.ZŁ



Kontakt:
Anna Wilczyńska
tel: Zobacz kontakt502138356
Zobacz kontaktannawilczynska6772@gmail.com


Oferta wysłana z programu dla biur nieruchomości ASARI CRM (asaricrm.com)



Kontakt:
Numer telefonu: Zobacz kontakt502138356
Adres email: Zobacz kontaktannawilczynska6772@gmail.com

Oceń ofertę


0


30 wydruk błąd schowek

Ostatnio przeglądane

 

 

 

pobieranie

Pobierz wzór umowy

Umowa przedwstępna sprzedaży

wybierz plik do pobrania
doc pdf

 

 

Deweloperzy

);