Prosimy, odblokuj wyświetlanie reklam w naszym serwisie, są one związane z rynkiem nieruchomości.
To dzięki nim masz darmowy dostęp do naszych treści.

Z pozdrowieniami zespół KRN.pl :)


telefon

wiadomość

mapa

Dom, Kraków, Bieżanów-Prokocim, ul. F. Zolla

Dom na sprzedaż Kraków (woj. Małopolskie), Bieżanów-Prokocim, ul. F. Zolla

Lokalizacja:

Kraków, Bieżanów-Prokocim, ul. F. Zolla

Powierzchnia:

260.72 m2

Cena:

1 870 000 zł

Dane szczegółowe

lokalizacja:
Małopolskie, Kraków, Bieżanów-Prokocim, ul. F. Zolla
typ obiektu:
dom na sprzedaż
cena:
1 870 000 zł
powierzchnia:
260.72 m2
numer ogłoszenia:
BS2-DS-301744-216
data dodania:
03-04-2026
data modyfikacji:
03-04-2026
jakość wypełnienia oferty:
100%

Szczegóły oferty



ATRAKCYJNY DOM WOLNOSTOJĄCY W KRAKOWIE - BIEŻANÓW-PROKOCIM

Przedstawiamy ofertę sprzedaży domu w Krakowie, zlokalizowanego w spokojnej i bardzo zielonej okolicy, rejon Bieżanów-Prokocim. Budynek wolnostojący,
położony na działce o powierzchni 730 m2 , w kształcie prostokąta. Dom parterowy z użytkowym poddaszem, o powierzchni całkowitej 260,72 m2.
Dom sprzedawany w stanie deweloperskim.
Projekt obejmuję wykonanie instalacji wewnętrznych i
zewnętrznych. Teren zagospodarowany zielenią i ogrodzony, podjazdy i opaska wokół budynku oraz taras wyłożone kostką brukową, wjazd przez bramę na pilota.
Działka oddalona jest 10 minut samochodem od centrum Wieliczki i 20 min do centrum Krakowa. W pobliżu znajduje się przystanek Krakowskiej Szybkiej Kolei Aglomeracyjnej: Wieliczka-Bogucice (15min pieszo). Lokalizacja działek zapewnia nam bardzo dogodną komunikację do obwodnicy Krakowa, a także bliskość centrów handlowych takich jak: Leroy Merlin i CH Kaufland, przy ul. Wielickiej.
W sąsiedztwie inwestycji znajduje się wyłącznie zabudowa jednorodzinna oraz sporo terenów zielonych. W odległości 500m znajduje się punkt widokowy: Pomnik na Wzgórzu Kaim.

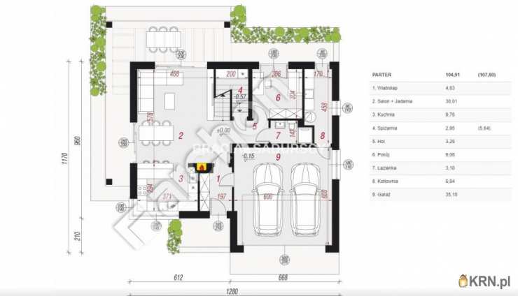
PARTER:

wiatrołap - 4,83 m 2
salon + jadalnia - 30,01 m 2
kuchnia - 9,76 m 2
spiżarnia - 2,95 (5,64) m 2
hol - 3,26 m 2
pokój - 9,06 m 2
łazienka - 3,10 m 2
kotłownia - 6,84 m 2
garaż - 35,10 m 2

RAZEM
- 104,91 (107,60) M 2
PODDASZE:

schody - 6,00 m 2
korytarz - 6,83 m 2
łazienka - 8,27 (9,93) m 2
garderona - 6,91 (8,22) m 2
pokój - 16,28 (18,97) m 2
pralnia - 6,37 (8,02) m 2
pokój - 16,20 (18,99) m 2
pokój - 16,46 (19,26) m 2
RAZEM
- 83,32 (96,22) M 2

Istnieje możliwość wykończenia pod klucz.

Dom budowany według projektu firmy Archon - "
DOM W NEFRISACH G2 "

Termin realizacji:
IV kwartał 2026 r.
Polecam serdecznie i zapraszam do kontaktu:
Marek Popiela + Zobacz kontakt48 518 967 677
Zobacz kontaktmarek@sadurscy.pl

::DODATKOWE INFORMACJE
Kategoria oferty: Mieszkania dla rodzin z dziećmi Prąd: jest Gaz: jest Woda: jest Dojazd: asfaltowa/kostka Otoczenie: działki zabudowane Ogrzewanie: gazowe Kanalizacja: tak Linie telefoniczne: TAK Komunikacja publ.: autobus miejski, autobus Okna: PCV Instalacje: nowe Balkon: jest Liczba balkonów: 1 Tarasy: taras Liczba tarasów: 1 Zagosp. działki: zagospodarowana Ukształtowanie działki: płaska Kształt działki: prostokąt Rodzaj domu: wolnostojący Stan wybudowania: Stan deweloperski Typ elewacji: tynk zwykły Podst. materiał budowlany: pustak ceramiczny Pokrycie dachu: dachówka ceramiczna Powierzchnia użytkowa [m2]: 188,2300 Stan budynku: do wykończenia Podpiwniczenie: nie Garaż: dwustanowiskowy Ogrodzenie działki: ogrodzona Rok budowy: 2026 Liczba pokoi: 5 Liczba sypialni: 5 Podłogi pokoi: wylewka Ściany pokoi: zwykłe Typ kuchni: aneks kuchenny Rodzaj kuchni: aneks kuchenny połączony z jadalnią i salonem Podłoga kuchni: wylewka Typ łazienki: razem z wc Liczba łazienek: 1 Glazura łazienki: bez glazury Podłoga łazienki: wylewka Ściany łazienki: zwykłe Liczba WC: 1 Glazura WC: bez glazury Podłoga WC: wylewka Ściany WC: zwykłe Liczba przedpokoi: 1 Podłoga przedpokoi: wylewka Ściany przedpokoi: zwykłe
::LINK DO STRONY
https://sadurscy.pl/offer/BS2-DS-301744
::KONTAKT DO AGENTA
Marek Popiela + Zobacz kontakt48 518-967-677 Zobacz kontaktmarek@sadurscy.pl
::DANE BIURA
Oddział BS2, Rynek Pierwotny Przewóz
47 30-081 Kraków Zobacz kontakt12 630-90-45
--------------------------
::GRATIS | Nasza prowizja zawiera: koszt przedwstępnej notarialnej umowy sprzedaży nieruchomości z rynku wtórnego. ::GWARANCJA | Gwarancja zwrotu zadatku. Więcej informacji na sadurscy.pl/zwrot-zadatku/

Ogrzewanie: Gazowe
Materiał: Pustak

Kontakt do agenta:
Marek Popiela
Zobacz kontaktmarek@sadurscy.pl
+ Zobacz kontakt48 518-967-677

Oceń ofertę


0


8 wydruk błąd schowek

Ostatnio przeglądane

 

 

 

pobieranie

Pobierz wzór umowy

Umowa przedwstępna sprzedaży

wybierz plik do pobrania
doc pdf

 

 

Deweloperzy

);