Prosimy, odblokuj wyświetlanie reklam w naszym serwisie, są one związane z rynkiem nieruchomości.
To dzięki nim masz darmowy dostęp do naszych treści.

Z pozdrowieniami zespół KRN.pl :)


telefon

wiadomość

mapa

Dom, Modlniczka

Dom na wynajem Modlniczka (woj. Małopolskie)

Lokalizacja:

Modlniczka, , ul.

Powierzchnia:

251.00 m2

Cena:

8 000 zł

Dane szczegółowe

lokalizacja:
Małopolskie, Modlniczka
typ obiektu:
dom na wynajem
cena:
8 000 zł
powierzchnia:
251.00 m2
numer ogłoszenia:
DNX-DW-30582-5
data dodania:
06-03-2026
data modyfikacji:
06-03-2026
jakość wypełnienia oferty:
100%

Szczegóły oferty



ZOSTAŃ PIERWSZYM NAJEMCĄ !!!

SZUKASZ NOWEGO DOMU W SPOKOJNEJ OKOLICY Z SZYBKIM DOJAZDEM DO KRAKOWA ?

To miejsce łączy wszystko, czego szukasz: przestrzeń, prywatność, naturę.
Idealne dla rodzin, które marzą o własnym domu z ogrodem.

DO WYNAJĘCIA DOM W ZABUDOWIE BLIŹNIACZEJ O POW. DZIAŁKI OK. 500 M2.

CENA
wynajmu to 8000 zł + opłaty za zużyte media + kaucja /do ustalenia/.

Preferowana umowa najmu okazjonalnego oraz najem długoterminowy.
BUDYNEK
Do wynajęcia nowy dom w zabudowie bliźniaczej. Dom wykonany w technologii tradycyjnej. Dach pokryty dachówka, ocieplony styropianem o grubości 20 cm. Okna PCV 3 szybowe.
Działka ogrodzona i wyrównana. Podjazd wybrukowany z automatyczną bramą na pilota.
Wszystkie media w budynku, prąd, woda, gaz, kanalizacja oraz światłowód.
Ogrzewanie domu oraz wody za pomocą pieca gazowego Vaillant z zasobnikiem.
Z udogodnień mamy: klimatyzację, podgrzewane podłogi, rekuperację, alarm, domofon/wideofon
Dom częściowo umeblowany. Kuchnia wyposażona w lodówko-zamrażarkę, zmywarkę, okap, kuchenkę gazową z piekarnikiem.
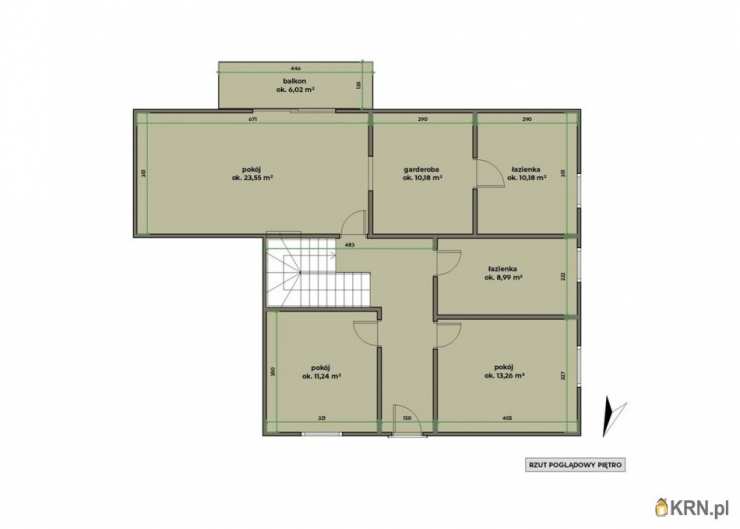
W skład domu wchodzi:

Parter:
- wiatrołap
- kuchnia połączona z jadalnią
- salon z wyjściem na taras
- gabinet
- korytarz
- łazienka z prysznicem
- garaż z automatyczną bramą
- kotłownia z pom. gospodarczym
Piętro:
- sypialnia małżeńska z garderobą i łazienką z wanną i prysznicem oraz balkonem
- łazienka z wanną
- korytarz
-sypialnia
-sypialnia
Stryszek nieużytkowy

KOMUNIKACJA:
•
3 minuty od granic miasta, dojazd do centrum to czas 15-20 minut
•
Obwodnica - błyskawiczny wyjazd w każdą stronę
•
MPK - linie autobusowe kursujące do (m.in. do Bronowic, Nowego Kleparza)
Zadzwoń i umów się na prezentację mieszkania, aby przekonać się o jego atutach na własne oczy. To oferta, która nie może umknąć Twojej uwadze!

Właściciele dopuszczają możliwość domeblowania budynku !
Zadzwoń i umów się na prezentację , aby przekonać się o atutach na własne oczy.

To oferta, która nie może umknąć Twojej uwadze!
DO OFERTY DOŁĄCZONA WIRTUALNA WIZYTA I RZUTY BUDYNKU ! ::DODATKOWE INFORMACJE
Ogrzewanie: gazowe Okna: PCV 3 szyby, ciepły montaż Tarasy: taras duży Zagosp. działki: zagospodarowana Ukształtowanie działki: płaska Rodzaj domu: bliźniak Podst. materiał budowlany: porotherm Pokrycie dachu: dachówka Pozwolenie na użytkowanie: tak Powierzchnia użytkowa [m2]: 219 Stan budynku: do zamieszkania Podpiwniczenie: nie Garaż: w budynku Ogrodzenie działki: ogrodzona Liczba pokoi: 5 Typ kuchni: otwarta połączona z jadalnią Podłoga kuchni: płytki Liczba łazienek: 3 Wyposażenie łazienki: wanna, kabina prysznicowa, bidet Typ kaucji: jednomiesięczna
::KONTAKT DO AGENTA
Bogusława Kapera Zobacz kontakt501 187 897 Zobacz kontaktbogusia@danax.pl
Pośrednik odpowiedzialny zawodowo za wykonanie umowy pośrednictwa: Bartłomiej Krosta (licencja nr: 6585)
--------------------------
Od 1993 r. pośredniczymy w transakcjach na krakowskim rynku nieruchomości.
Pomożemy Ci jak przyjacielowi.

Ogrzewanie: Gazowe
Materiał: POROTHERM

Kontakt do agenta:
Bogusława Kapera
Zobacz kontaktbogusia@danax.pl
Zobacz kontakt501 187 897

Oceń ofertę


0


131 wydruk błąd schowek

Ostatnio przeglądane

 

 

 

pobieranie

Pobierz wzór umowy

Umowa przedwstępna najmu

wybierz plik do pobrania
doc pdf

 

 

Deweloperzy

);