Prosimy, odblokuj wyświetlanie reklam w naszym serwisie, są one związane z rynkiem nieruchomości.
To dzięki nim masz darmowy dostęp do naszych treści.

Z pozdrowieniami zespół KRN.pl :)


telefon

wiadomość

mapa

Dom, Chrzanów, ul. Kadłubek

Dom na sprzedaż Chrzanów (woj. Małopolskie), ul. Kadłubek

Lokalizacja:

Chrzanów, , ul. Kadłubek

Powierzchnia:

230.88 m2

Cena:

618 000 zł

Dane szczegółowe

lokalizacja:
Małopolskie, Chrzanów, ul. Kadłubek
typ obiektu:
dom na sprzedaż
cena:
618 000 zł
powierzchnia:
230.88 m2
media:
gaz, woda
numer ogłoszenia:
BS5-DS-309984-156
data dodania:
29-01-2026
data modyfikacji:
29-01-2026
jakość wypełnienia oferty:
100%

Szczegóły oferty

|
Chrzanów, ul. Kadłubek. Dom wolno stojący o pow. użytkowej 174,88 m 2 , wraz z budynkiem usługowym o pow. użytkowej 40,70 m 2 , na działce - 357 m 2 .
Nieruchomość składająca się z domu jednorodzinnego, wolnostojącego, jednopiętrowego, częściowo podpiwniczonego z lat 60-tych XX w. w centrum Chrzanowa, po remoncie generalnym w latach 2005-2006, oraz osobnego budynku usługowego.
Pow. całkowita domu wynosi
190,18 m 2
, w tym pow. użytkowa (mieszkalna) wynosi
174.88 m 2
.
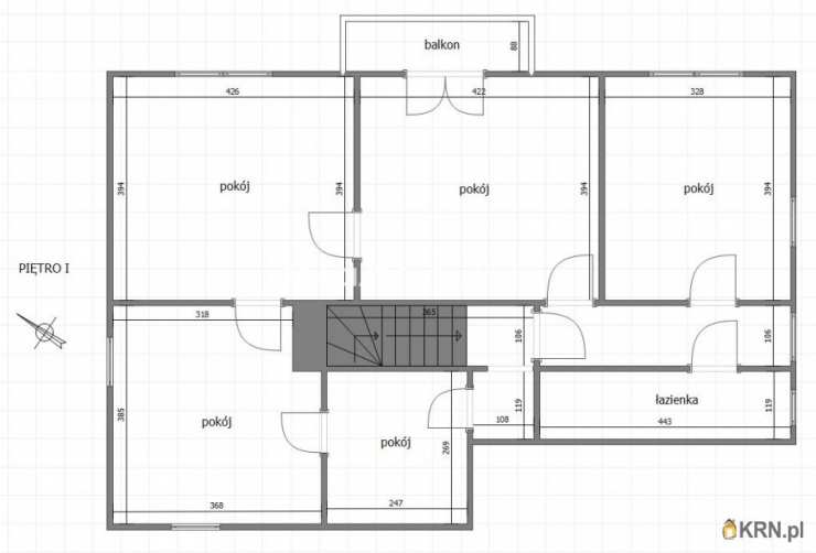
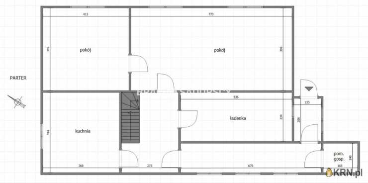
Na poziomie parteru o pow. użytkowej
96,51 m 2
znajduje się przestronny salon ( 30,45 m 2
), pokój o pow.
16,72 m 2
, osobna duża kuchnia o pow.
13,55 m 2
, duża łazienka o pow.
12,50 m 2
, spiżarka oraz holl.
Na poziomie piętra o pow. użytkowej
78,37 m 2
znajdują się 4 pokoje ( 16,78 m 2
;
16,63 m 2
;
12,92 m 2
;
21,21 m 2
), łazienka ( 4,89 m 2
) oraz komunikacja.
W piwnicy o pow. 15,3 m 2
znajduje się kotłownia.
Dom zbudowany z cegły, dach kryty blachą, okna PCV, podłogi w pokojach na parterze z mozaiki parkietowej, na piętrze z paneli. Sufity podwieszane. W trakcie remontu wymienione instalacje. Ogrzewanie centralne z pieca gazowego z zasobnikiem ciepłej wody, lub z pieca węglowego (nowego).
Budynek usługowy o pow. użytkowej 40,7 m2 składa się z 2 pomieszczeń usługowych, łazienki i zaplecza socjalnego. Budynek na działalność np. gabinetu kosmetycznego, fryzjerskiego, kancelarii, małego biura, itp.
Na działce garaż oraz 4 miejsca parkingowe.
Działka ogrodzone, z bezpośrednim zjazdem z ulicy Kadłubek.

Szczegóły oferty:

+ Zobacz kontakt48 502 104 545

::DODATKOWE INFORMACJE |
Prąd: jest |
Gaz: tak - miejski |
Woda: tak - miejska |
Dojazd: asfalt |
Otoczenie: centrum miasta |
Ogrzewanie: c. o. gazowe
i węglowe |
Kanalizacja: miejska |
Komunikacja publ.: autobus miejski |
Teren ogrodzony: TAK |
Okna: PCV |
Instalacje: wymienione |
Balkon: duży |
Liczba balkonów: 1 |
Zagosp. działki: zagospodarowana |
Ukształtowanie działki: płaska |
Rodzaj domu: wolnostojący |
Typ elewacji: siding |
Podst. materiał budowlany: cegła pełna |
Pokrycie dachu: blacha |
Pozwolenie na użytkowanie: tak |
Powierzchnia użytkowa [m2]: 215,5800 |
Stan budynku: do zamieszkania |
Podpiwniczenie: częściowo podpiwniczony |
Garaż: brak |
Ogrodzenie działki: mieszane |
Rok budowy: 1960 |
Liczba pokoi: 6 |
Wysokość pomieszczeń [m]: 2,6500 |
Liczba sypialni: 3 |
Powierzchnia pokoi [m2]: 30,45; 16,72; 15,05; 16,78; 16,63; 12,92 |
Podłogi pokoi: panele podłogowe, mozaika parkietowa, parkiet |
Ściany pokoi: zwykłe, malowane |
Wystawa okien - pokoje : Pn-Zach, Pn-Wsch |
Typ kuchni: jasna z oknem |
Rodzaj kuchni: oddzielna |
Powierzchnia kuchni [m2]: 13,55 |
Podłoga kuchni: terakota |
Wystawa okien - kuchnia: Pn-Zach |
Typ łazienki: razem z wc |
Liczba łazienek: 2 |
Powierzchnia łazienki [m2]: 12,50; 4,89 |
Glazura łazienki: glazura |
Podłoga łazienki: terakota |
Wyposażenie łazienki: wanna, prysznic |
Ściany łazienki: glazura |
Wystawa okien - łazienka : Pd-Wsch |
Powierzchnia przedpokoi [m2]: 8,36; 2,66;5,19 |
Ściany przedpokoi: zwykłe, panele |
::LINK DO STRONY |
https://sadurscy.pl/offer/BS5-DS-309984
Zobacz Wirtualny Spacer: https://tour.feelestate.com/view/fullscreen/id/VV9BD
::KONTAKT DO AGENTA |
Dariusz Kornaś |
+ Zobacz kontakt48 502-104-545 |
Zobacz kontaktdarek2@sadurscy.pl
::DANE BIURA |
Oddział BS5, Nowa Huta |
Bracia Sadurscy Dariusz Sadurski |
Os. Kazimierzowskie 36 |
31-844 Kraków |
Zobacz kontakt12 265 10 29
Pośrednik odpowiedzialny zawodowo za wykonanie umowy pośrednictwa: Dariusz Sadurski (licencja nr: 803)
|
Oferta wysłana z systemu Galactica Virgo
Ogrzewanie: Gazowe
Materiał: Cegła

Kontakt do agenta:
Dariusz Kornaś
Zobacz kontaktdarek2@sadurscy.pl
+ Zobacz kontakt48 502-104-545

Oceń ofertę


0


15 wydruk błąd schowek

Ostatnio przeglądane

 

 

 

pobieranie

Pobierz wzór umowy

Umowa przedwstępna sprzedaży

wybierz plik do pobrania
doc pdf

 

 

Deweloperzy

);