Prosimy, odblokuj wyświetlanie reklam w naszym serwisie, są one związane z rynkiem nieruchomości.
To dzięki nim masz darmowy dostęp do naszych treści.

Z pozdrowieniami zespół KRN.pl :)


telefon

wiadomość

mapa

Dom, Jastrzębie-Zdrój, Moszczenica, ul. Skrzyszowska

Dom na sprzedaż Jastrzębie-Zdrój (woj. Śląskie), Moszczenica, ul. Skrzyszowska

Lokalizacja:

Jastrzębie-Zdrój, Moszczenica, ul. Skrzyszowska

Powierzchnia:

163.23 m2

Cena:

230 000 zł

Dane szczegółowe

lokalizacja:
Śląskie, Jastrzębie-Zdrój, Moszczenica, ul. Skrzyszowska
typ obiektu:
dom na sprzedaż
cena:
230 000 zł
powierzchnia:
163.23 m2
numer ogłoszenia:
LOK-DS-9214
data dodania:
10-12-2025
data modyfikacji:
10-12-2025
jakość wypełnienia oferty:
100%

Szczegóły oferty


KUPUJĄCY NIE PONOSI OPŁAT PROWIZJI BIURA ORAZ
JEST ZWOLNIONY Z PODATKU PCC!
Na sprzedaż malowniczo położona
w Moszczenicy rozpoczęta budowa nowoczesnego domu jednorodzinnego na
działce graniczącej z lasem o pow.
11,5ar
.
Wykonane zostały
fundamenty,
przyłącze prądu, wody i kanalizacji.
Przewidywany koszt doprowadzenia budowy do stanu surowego zamkniętego to ok. 370 000zł
Powierzchnia użytkowa-143,83m2, całkowita-163,23m2 (w tym pow. garażu i kotłowni- 29,03m2).
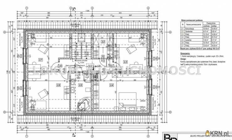
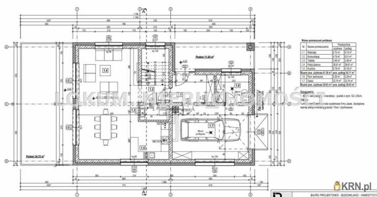
Rozkład pomieszczeń:
Parter- salon z wyjściem na taras, kuchnia, łazienka, przedpokój, wiatrołap, kotłownia, garaż;
Piętro- 4 pokoje, łazienka.
W
budynku przewidziano nowoczesne rozwiązania, m. in. rekuperację.

Możliwość dokupienia lasu 0,5 ha za 40tys.
Zapraszamy na prezentację.

Pośrednik odpowiedzialny zawodowo za wykonanie umowy pośrednictwa: Katarzyna Różalska (licencja nr: 6096)
--------------------------
Leroy Merlin i Nieruchomości Lokum przygotowały dla Państwa ofertę: dla klientów, którzy zakupią nieruchomość za pośrednictwem naszego biura otrzymają KUPON RABATOWY - 10% zniżki na cały asortyment zakupiony w markecie Leroy Merlin w Cieszynie.
Oferta wysłana z systemu BCK Galactica

Kontakt do agenta:
Oliwia Jadach
Zobacz kontaktlokum@lokum2.pl
Zobacz kontakt32 4711527
Zobacz kontakt573431962

Oceń ofertę


0


25 wydruk błąd schowek

Ostatnio przeglądane

 

 

 

pobieranie

Pobierz wzór umowy

Umowa przedwstępna sprzedaży

wybierz plik do pobrania
doc pdf

 

 

Deweloperzy

);