Prosimy, odblokuj wyświetlanie reklam w naszym serwisie, są one związane z rynkiem nieruchomości.
To dzięki nim masz darmowy dostęp do naszych treści.

Z pozdrowieniami zespół KRN.pl :)


telefon

wiadomość

mapa

Dom, Zakliczyn

Dom na sprzedaż Zakliczyn (woj. Małopolskie)

Lokalizacja:

Zakliczyn, , ul.

Powierzchnia:

154.75 m2

Cena:

1 090 000 zł

Dane szczegółowe

lokalizacja:
Małopolskie, Zakliczyn
typ obiektu:
dom na sprzedaż
cena:
1 090 000 zł
powierzchnia:
154.75 m2
media:
woda
numer ogłoszenia:
BS5-DS-312997-2
data dodania:
18-12-2025
data modyfikacji:
18-12-2025
jakość wypełnienia oferty:
100%

Szczegóły oferty

|

OFERTA SPRZEDAŻY DOMU - ZAKLICZYN, GMINA SIEPRAW
Dom w aurorach 14 - stan deweloperski (w takcie wykańczania) , 154,75 m², działka 12 arów

Na sprzedaż nowoczesny dom jednorodzinny w stanie deweloperskim, zrealizowany na podstawie projektu „Dom w aurorach 14” pracowni ARCHON. Nieruchomość położona jest w malowniczej miejscowości Zakliczyn (gmina Siepraw), w sąsiedztwie lasów, jeziora oraz licznych ścieżek rowerowych i terenów spacerowych.
Stan:
będzie to stan deweloperski, możliwość wykończenia pod klucz
Dom charakteryzuje się nowoczesnym wykończeniem zewnętrznym oraz świetnym doświetleniem wnętrz dzięki dużym przeszkleniom. Front zdobi podcień z ramą z betonu architektonicznego.
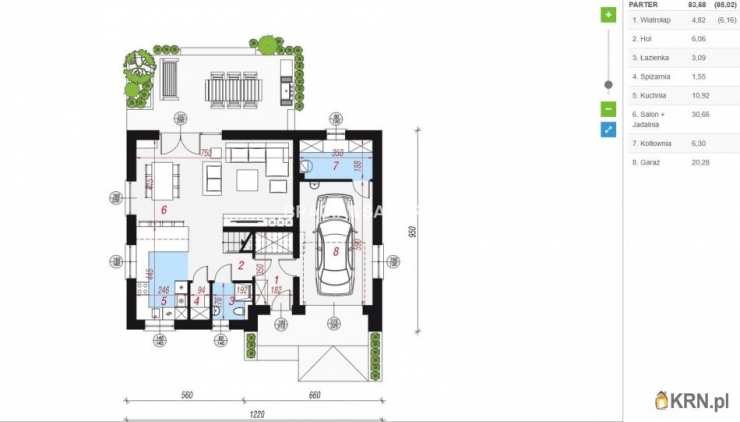
Na parterze znajduje się przestronny salon z miejscem na kino domowe, jadalnia z wyjściem na zachodni taras wyposażony w pergolę, oraz otwarta kuchnia z półwyspem i pojemną spiżarnią. Z wiatrołapu dostępny jest garaż jednostanowiskowy oraz kotłownia.
Na poddaszu zaplanowano trzy jasne sypialnie. Sypialnia rodziców posiada własną garderobę, natomiast pokoje dzieci połączone są wspólną, dużą garderobą. Do dyspozycji jest również komfortowa łazienka z wanną i prysznicem oraz pralnia.
Dom wybudowany z pustaka MAX, ocieplony styropianem i wełną mineralną, dach pokryty dachówką. Elewacja łączy jasny tynk i naturalne drewno, a front zdobi nowoczesny podcień z betonu architektonicznego. Działka ogrodzona, podjazd, taras i opaska wykończone kostką brukową.
Cicha i malownicza okolica zapewnia doskonałe warunki do wypoczynku. Blisko lasy, jezioro, tereny spacerowe i rowerowe. Szybki dojazd do Myślenic i Krakowa.

Możliwość wykończenia domu pod klucz.

Więcej szczegółów oferty:
tel Zobacz kontakt796541485 - Grzegorz
::DODATKOWE INFORMACJE |
Prąd: jest |
Gaz: jest |
Woda: tak - miejska |
Dojazd: asfalt |
Otoczenie: zabudowa jednorodzinna |
Ogrzewanie: podłogowe |
Kanalizacja: szambo |
Komunikacja publ.: bus, autobus |
Odległość do komunikacji publicznej [m]: 1700 |
Odl. do sklepu [m]: 600 |
Odl. do szkoły [m]: 3400 |
Odl. do przedszkola [m]: 1700 |
Drzwi antywłamaniowe: TAK |
Teren ogrodzony: TAK |
Opłaty wg liczników: woda, prąd, gaz |
Okna: aluminiowe 3 szybowe, ciepły montaż |
Instalacje: nowe |
Tarasy: taras duży |
Liczba tarasów: 1 |
Powierzchnia ogródka [m2]: 1000 |
Wymiary działki [m]: 34/56/28/35 |
Zagosp. działki: niezagospodarowana |
Ukształtowanie działki: lekko nachylona |
Kształt działki: nieregularny |
Rodzaj domu: wolnostojący |
Stan wybudowania: Stan deweloperski |
Typ elewacji: tynk szlachetny |
Pokrycie dachu: dachówka ceramiczna |
Powierzchnia użytkowa [m2]: 154,7500 |
Stan budynku: do wykończenia |
Podpiwniczenie: nie |
Garaż: w bryle |
Ogrodzenie działki: metalowe |
Rok budowy: 2025 |
Liczba pokoi: 4 |
Wysokość pomieszczeń [m]: 2,8000 |
Liczba sypialni: 3 |
Powierzchnia pokoi [m2]: 30,66 11,61 11,52 10,58
|
Podłogi pokoi: wylewka |
Ściany pokoi: tynk |
Wyposażenie pokoi: nieumeblowane |
Wystawa okien - pokoje : Zach, Wsch, Pd, Pn |
Typ kuchni: jasna z oknem |
Rodzaj kuchni: bez zabudowy |
Powierzchnia kuchni [m2]: 10,92 |
Podłoga kuchni: wylewka |
Wystawa okien - kuchnia: Wsch |
Typ łazienki: razem z wc |
Liczba łazienek: 2 |
Powierzchnia łazienki [m2]: 9,03 3,09 |
Glazura łazienki: bez glazury |
Podłoga łazienki: wylewka |
Ściany łazienki: tynk |
Wystawa okien - łazienka : Wsch |
Liczba przedpokoi: 2 |
Podłoga przedpokoi: wylewka |
Ściany przedpokoi: tynk |
::LINK DO STRONY |
https://sadurscy.pl/offer/BS5-DS-312997
Zobacz Wirtualny Spacer: https://panoramy.galactica.pl/virgo/489932
::KONTAKT DO AGENTA |
Grzegorz Zębala |
+ Zobacz kontakt48 796-541-485 |
Zobacz kontaktgrzesiek@sadurscy.pl
::DANE BIURA |
Oddział BS5, Nowa Huta |
Bracia Sadurscy Dariusz Sadurski |
Os. Kazimierzowskie 36 |
31-844 Kraków |
Zobacz kontakt12 265 10 29
Pośrednik odpowiedzialny zawodowo za wykonanie umowy pośrednictwa: Dariusz Sadurski (licencja nr: 803)
|
Oferta wysłana z systemu Galactica Virgo
Ogrzewanie: PODLOGOWE

Kontakt do agenta:
Grzegorz Zębala
Zobacz kontaktgrzesiek@sadurscy.pl
+ Zobacz kontakt48 796-541-485

Oceń ofertę


0


16 wydruk błąd schowek

Ostatnio przeglądane

 

 

 

pobieranie

Pobierz wzór umowy

Umowa przedwstępna sprzedaży

wybierz plik do pobrania
doc pdf

 

 

Deweloperzy

);