Prosimy, odblokuj wyświetlanie reklam w naszym serwisie, są one związane z rynkiem nieruchomości.
To dzięki nim masz darmowy dostęp do naszych treści.

Z pozdrowieniami zespół KRN.pl :)


telefon

wiadomość

mapa

Dom, Trąbki

Dom na sprzedaż Trąbki (woj. Małopolskie)

Lokalizacja:

Trąbki, , ul.

Powierzchnia:

154.59 m2

Cena:

681 660 zł

Dane szczegółowe

lokalizacja:
Małopolskie, Trąbki
typ obiektu:
dom na sprzedaż
cena:
681 660 zł
powierzchnia:
154.59 m2
numer ogłoszenia:
BS2-DS-284816-201
data dodania:
25-05-2024
data modyfikacji:
25-05-2024
jakość wypełnienia oferty:
100%

Szczegóły oferty



ORYGINALNE DOMY Z BALI FIRMY "OMDOM" - DREWNIANE, EKOLOGICZNE, ZDROWE.

Projekt
" gryfice 3 dw

" z
firmy Dom-Projekt

Oferujemy do sprzedaży wolnostojący dom, wykonany z drewnianych bali, strugach maszynowo -
prefabrykowanych . Budynek parterowy z użytkowym poddaszem o powierzchni całkowitej 154,59 m2. Zwar­ta bryła bu­dyn­ku i dach dwu­spa­do­wy sprzyja­ją szybkiej i taniej bu­do­wie i ni­skim kosz­tom eks­plo­ata­cji. Dla tych, którzy cenią naprawdę wyjątkowe rzeczy, firma „Omdom” buduje ekskluzywne domy ręcznie.
Rozkład pomieszczeń:
wiatrołap 5,00 m²
kotłownia 7,00 m²
łazienka 4,24 m²
komunikacja 11,14 m²
pokój 10,29 m²
kuchnia, salon 39,72 m²
spiżarka 1,49 m²
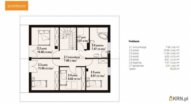
komunikacja 7,46 (7,46) m²
pokój 10,48 (14,94) m²
pokój 11,04 (15,53) m²
pokój 6,62 (10,70) m²
pokój 8,61 (12,15) m²
łazienka 7,47 (10,43) m²
garderoba 2,61 (4,50) m²

powierzchnia użytkowa 122.07 m²
+część gospodarcza 11.1 m²
powierzchnia zabudowy 99.19 m²
powierzchnia netto 154.59 m²
kubatura 540.43 m³
kąt nachylenia dachu 42°
wys. kalenicy 8.91 m min.
wymiary działki 17.1x18.9 m
Proponujemy w naszej ofercie profilowane płazy z litego drewna, które przeszły przez suszarnię. Profil jest zaprojektowany tak, aby wilgoć z zewnątrz nie dostała się do środka. Płazy ścienne mają rozmiar 120x200 mm. Do łączenia konstrukcji jest używana technologia Pyro-wpust, która jest wykonana nie ręcznie, ale za pomocą sprzętu o wysokiej precyzji dopasowania. Dla większej wytrzymałości wszystkie płazy są połączone za pomocą metalowych śrub.

Dom według projektu firmy Dom-projekt "gryfice 3 dw".

Cena obejmująca wykonanie:
- Prefabrykowane elementy ścian z świerka 120 x 200 [mm]
-Suszenie drewna w suszarniach komorowych
-Zabezpieczenie ścian zewnętrznych wiatroizolacja.
-Więźba dachowa zgodna z projektem
-Konstrukcja dachu obłożona płytami OSB 18mm
-Pokrycie dachu papą
-Impregnacja całego użytego podczas produkcji drewna atestowanymi środkami zabezpieczającymi drewno
przed
grzybami, pleśniami, szkodnikami technicznymi oraz szkodliwym oddziaływaniem warunków
atmosferycznych
-Wykonanie pokrycia dachowego (blachodachówką)
-W domach z poddaszem użytkowym wykonanie stropopodłogi z płyt OSB 22mm
-Drzwi balkonowe i zewnętrzne
-Stolarka okienna drewniane
Cena nie obejmuje wykonania fundamentów, ewentualnego podpiwniczenia oraz kosztów wykończenia i rozprowadzenia instalacji.

Czas budowy - 3 miesiące

Kontakt: Romuald Niemiec + Zobacz kontakt48 576 853 289
Zobacz kontaktromuald@sadurscy.pl

::DODATKOWE INFORMACJE
Prąd: brak Gaz: brak Woda: brak Ogrzewanie: inne Kanalizacja: brak Okna: drewniane Instalacje: brak Balkon: brak Tarasy: taras Liczba tarasów: 1 Zagosp. działki: niezagospodarowana Ukształtowanie działki: lekko nachylona Kształt działki: prostokąt Rodzaj domu: wolnostojący Stan wybudowania: Stan surowy zamknięty Podst. materiał budowlany: bale drewniane Pokrycie dachu: dachówka ceramiczna Powierzchnia użytkowa [m2]: 133,1700 Stan budynku: do wykończenia Podpiwniczenie: nie Garaż: jest Ogrodzenie działki: brak Rok budowy: 2021 Liczba pokoi: 6 Liczba sypialni: 5 Powierzchnia pokoi [m2]: 10,29; 10,48; 11,04; 6,62; 8,61 Podłogi pokoi: inne Ściany pokoi: inne Typ kuchni: aneks kuchenny - połączony z salonem Rodzaj kuchni: otwarta na salon Podłoga kuchni: inne Typ łazienki: razem z wc Liczba łazienek: 2 Powierzchnia łazienki [m2]: 4,24; 7,47 Glazura łazienki: bez glazury Podłoga łazienki: inne Ściany łazienki: inne Podłoga przedpokoi: inne Ściany przedpokoi: inne
::LINK DO STRONY
https://sadurscy.pl/offer/BS2-DS-284816
::KONTAKT DO AGENTA
Romuald Mieniec + Zobacz kontakt48 576-853-289 Zobacz kontaktromuald@sadurscy.pl
::DANE BIURA
Oddział BS2, Rynek Pierwotny Królewska 67 30-081 Kraków Zobacz kontakt12 630-90-45
--------------------------
::GRATIS | Nasza prowizja zawiera: koszt przedwstępnej notarialnej umowy sprzedaży nieruchomości z rynku wtórnego. ::GWARANCJA | Gwarancja zwrotu zadatku. Więcej informacji na sadurscy.pl/zwrot-zadatku/

Ogrzewanie: INNE
Materiał: BALE DREWNIANE

Kontakt do agenta:
Romuald Mieniec
Zobacz kontaktromuald@sadurscy.pl
+ Zobacz kontakt48 576-853-289

Oceń ofertę


3.4


478 wydruk błąd schowek

Ostatnio przeglądane

 

 

 

pobieranie

Pobierz wzór umowy

Umowa przedwstępna sprzedaży

wybierz plik do pobrania
doc pdf

 

 

Deweloperzy

);