Prosimy, odblokuj wyświetlanie reklam w naszym serwisie, są one związane z rynkiem nieruchomości.
To dzięki nim masz darmowy dostęp do naszych treści.

Z pozdrowieniami zespół KRN.pl :)


telefon

wiadomość

mapa

Dom, Kobierzyce

Dom na sprzedaż Kobierzyce (woj. Dolnośląskie)

Lokalizacja:

Kobierzyce, , ul.

Powierzchnia:

151.85 m2

Cena:

1 340 000 zł

Dane szczegółowe

lokalizacja:
Dolnośląskie, Kobierzyce
typ obiektu:
dom na sprzedaż
cena:
1 340 000 zł
pokoi:
5
ilość pięter w budynku:
1
powierzchnia:
151.85 m2
media:
siła
numer ogłoszenia:
1272-24
data dodania:
18-03-2026
data modyfikacji:
18-03-2026
jakość wypełnienia oferty:
100%

Szczegóły oferty


Zapraszam do zakupu inwestycji w której każdy budynek jest niepowtarzalny, elewacja z elementami cegły rozbiórkowej i tynku. Domy są ekologiczne, ogrzewanie pompą ciepła, okna HST, rolety elektryczne, podłączenie klimatyzacji. Trzy różne metraże domów, oraz indywidualne warianty układów pomieszczeń,

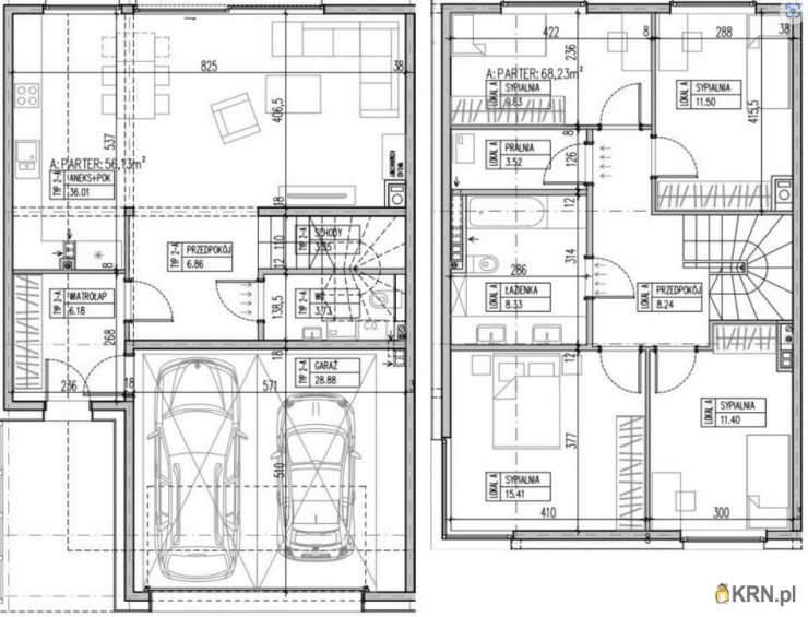
Prezentowany dom ma powierzchnię użytkową 130,73 m2, ogród ma powierzchnię 250.13 m2

PARTER:

1. Przedsionek – 6,18 m2 2.

2. Toaleta– 3,73m2

3. Pokój dzienny + kuchnia – 36,01m2

4. Garaż – 28,8m2

PIĘTRO:

1. Korytarz– 8,24 m2

2. Łazienka – 8,33 m2

3. Pralnia – 3,52m2

4. Pokój – 15,4m2

5. Pokój– 11,40 m2

6. Pokój – 11,50 m2

7. Pokój- 9,83m2

8. Schody – 5,04 m2

Stan deweloperski:-wykonanie instalacji elektrycznej, antenowej i internetowej w całym domu- wykonanie instalacji C.O., wodnej oraz kanalizacyjnej,- montaż pompy ciepła powietrznej, ogrzewanie podłogowe w całym budynku ,-profil okienny ideal 4000, pakiet 3 szybowe,- drzwi wejściowe, płaskie, pełne lub z tłoczeniem do antywłamaniowe klasy B,- schody wejściowe do budynku,- parapety wewnętrzne pcv kolor okien, zewnętrzne stalowe w kolorze okien,- wykonanie drogi dojazdowej oraz podjazdów z kostki brukowej, ogrodzenie terenu.

Termin realizacji inwestycji 30-06-2025

Zapraszam do kontaktu w celu przygotowania oferty / umówienia się na prezentacje – Kupujący nie płaci prowizji

Zapewniam

- profesjonalną obsługę, gwarantowaną wieloletnim doświadczeniem w branży nieruchomości-możliwość bezpłatnej rezerwacji apartamentu

- kompleksowe wsparcie na każdym etapie transakcji

- gwarancję bezpiecznego zakupu

- oszczędność czasu

-pomoc w uzyskaniu kredytu na najlepszych warunkach

- kompleksowe doradztwo

Ania Kamuda- Doradca klienta

tel. Zobacz kontakt535 422 188

Zobacz kontaktanna.kamuda@elitare.pl

Nr oferty 01_PAT_4A/AK

Zamieszczone na naszych stronach informacje nie stanowią oferty w rozumieniu Kodeksu Cywilnego, a dane w nich zawarte mają jedynie charakter informacyjny.

OFERTA CENOWA AKTUALNA NA DZIEŃ 17-03-2026 I OBOWIĄZUJE DO DNIA 17-03-2026

Oceń ofertę


0


178 wydruk błąd schowek

Ostatnio przeglądane

 

 

 

pobieranie

Pobierz wzór umowy

Umowa przedwstępna sprzedaży

wybierz plik do pobrania
doc pdf

 

 

Deweloperzy

);