Prosimy, odblokuj wyświetlanie reklam w naszym serwisie, są one związane z rynkiem nieruchomości.
To dzięki nim masz darmowy dostęp do naszych treści.

Z pozdrowieniami zespół KRN.pl :)


telefon

wiadomość

mapa

Dom, Trąbki

Dom na sprzedaż Trąbki (woj. Małopolskie)

Lokalizacja:

Trąbki, , ul.

Powierzchnia:

150.10 m2

Cena:

1 055 831 zł

Dane szczegółowe

lokalizacja:
Małopolskie, Trąbki
typ obiektu:
dom na sprzedaż
cena:
1 055 831 zł
powierzchnia:
150.10 m2
media:
woda
numer ogłoszenia:
BS2-DS-303758-62
data dodania:
30-11-2024
data modyfikacji:
30-11-2024
jakość wypełnienia oferty:
100%

Szczegóły oferty



GM. BISKUPICE - NOWE, ZAMKNIĘTE OSIEDLE DOMÓW W ZABUDOWIE SZEREGOWEJ.

Prezentowana oferta składa się z
czterech segmentów
położonych w gminie Biskupice, ok. 7 km od Wieliczki. Nowoczesne budynki zlokalizowane
w spokojnej i malowniczej okolicy.
Przestronne i funkcjonalnie zaprojektowane domy o
powierzchni całkowitej ok. 150,10 m2
(użytkowej ok. 123,4 m2).

Rozkład pomieszczeń:
PARTER:
salon z wyjściem na taras, aneks kuchenny, łazienka, kotłownia, spiżarnia, komunikacja, jednostanowiskowy garaż.
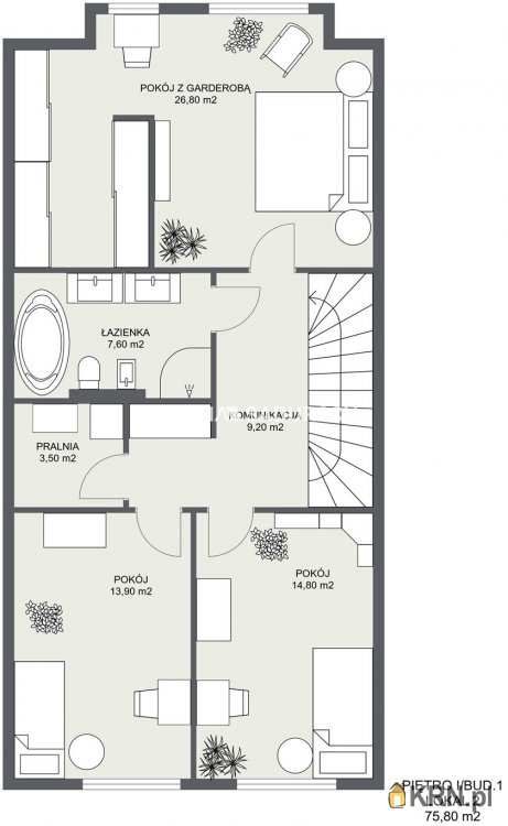
PIĘTRO (bez skosów):
duża sypialnia z garderobą, dwa mniejsze pokoje, łazienka, pralnia.
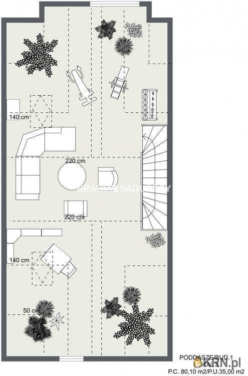
PODDASZE:
przestrzeń do własnej aranżacji (ok. 39 m2 powierzchni użytkowej).

Domy położone na działkach o powierzchni od ok.250 do 450 m2.

Budynki budowane z wysokiej jakości materiałów budowlanych:
ściany z pustaka ceramicznego, dach pokryty płaską dachówką ceramiczną, ocieplenie styropianem 20 cm okna PCV trzyszybowe siedmiokomorowe.
Stan deweloperski:
tynki, wylewki, instalacje.
Ogrzewanie:
instalacja grzewcza gazowa wraz z zasobnikiem wodnym 120l i piecem gazowym, ogrzewanie podłogowe na parterze, kaloryfery na wyższych kondygnacjach.
Dodatkowo każdy dom wyposażony jest w instalację rekuperacji wraz z agregatem i filtrem powietrza.

Teren inwestycji zostanie
uporządkowany i zagospodarowany:
podjazdy, droga wewnętrzna i tarasy wyłożone kostką brukową, osiedle zamknięte i doświetlone, wjazd przez bramę na pilota.
Za dodatkową opłatą istnieje możliwość zamontowania instalacji fotowoltaicznej i rolet antywłamaniowych.
W okolicy znajdują się:
sklepy, szkoła, przedszkole, ośrodek zdrowia, przystanek (autobusowy i prywatnych przewoźników). Dobry dojazd do Wieliczki i Krakowa.

Zapraszam do kontaktu:

Marek Popiela + Zobacz kontakt48 518 967 677
Zobacz kontaktmarek@sadurscy.pl

::DODATKOWE INFORMACJE
Kategoria oferty: Mieszkania dla rodzin z dziećmi Prąd: jest Gaz: jest Woda: tak Dojazd: asfalt Otoczenie: zabudowa jednorodzinna Ogrzewanie: piec Kanalizacja: szambo Linie telefoniczne: TAK Komunikacja publ.: bus, autobus miejski, autobus Teren ogrodzony: TAK Okna: PCV Instalacje: nowe Balkon: okno balkonowe Tarasy: taras Liczba tarasów: 1 Zagosp. działki: zagospodarowana Ukształtowanie działki: pochyła Kształt działki: prostokąt Rodzaj domu: szeregowiec Stan wybudowania: Stan deweloperski Typ elewacji: styropian Podst. materiał budowlany: pustak ceramiczny Pokrycie dachu: dachówka ceramiczna Powierzchnia użytkowa [m2]: 123,4000 Stan budynku: do wykończenia Podpiwniczenie: nie Garaż: w bryle Ogrodzenie działki: ogrodzona Rok budowy: 2025 Liczba pokoi: 4 Liczba sypialni: 3 Powierzchnia pokoi [m2]: 13,9; 114,8; 26,8 Podłogi pokoi: wylewka Ściany pokoi: zwykłe Typ kuchni: aneks kuchenny - połączony z salonem Rodzaj kuchni: otwarta na salon Podłoga kuchni: wylewka Typ łazienki: razem z wc Liczba łazienek: 2 Powierzchnia łazienki [m2]: 3,6; 7,6 Glazura łazienki: bez glazury Podłoga łazienki: wylewka Ściany łazienki: zwykłe Podłoga WC: wylewka Ściany WC: zwykłe Liczba przedpokoi: 1 Podłoga przedpokoi: wylewka Ściany przedpokoi: zwykłe
::LINK DO STRONY
https://sadurscy.pl/offer/BS2-DS-303758
::KONTAKT DO AGENTA
Marek Popiela + Zobacz kontakt48 518-967-677 Zobacz kontaktmarek@sadurscy.pl
::DANE BIURA
Oddział BS2, Rynek Pierwotny Przewóz
47 30-081 Kraków Zobacz kontakt12 630-90-45
--------------------------
::GRATIS | Nasza prowizja zawiera: koszt przedwstępnej notarialnej umowy sprzedaży nieruchomości z rynku wtórnego. ::GWARANCJA | Gwarancja zwrotu zadatku. Więcej informacji na sadurscy.pl/zwrot-zadatku/

Ogrzewanie: PIEC
Materiał: Pustak

Kontakt do agenta:
Marek Popiela
Zobacz kontaktmarek@sadurscy.pl
+ Zobacz kontakt48 518-967-677

Oceń ofertę


3.4


424 wydruk błąd schowek

Ostatnio przeglądane

 

 

 

pobieranie

Pobierz wzór umowy

Umowa przedwstępna sprzedaży

wybierz plik do pobrania
doc pdf

 

 

Deweloperzy

);