Prosimy, odblokuj wyświetlanie reklam w naszym serwisie, są one związane z rynkiem nieruchomości.
To dzięki nim masz darmowy dostęp do naszych treści.

Z pozdrowieniami zespół KRN.pl :)


telefon

wiadomość

mapa

Dom, Liszki

Dom na sprzedaż Liszki (woj. Małopolskie)

Lokalizacja:

Liszki, , ul.

Powierzchnia:

144.00 m2

Cena:

1 070 000 zł

Dane szczegółowe

lokalizacja:
Małopolskie, Liszki
typ obiektu:
dom na sprzedaż
cena:
1 070 000 zł
powierzchnia:
144.00 m2
numer ogłoszenia:
DNX-DS-30580-3
data dodania:
03-01-2026
data modyfikacji:
03-01-2026
jakość wypełnienia oferty:
100%

Szczegóły oferty



KUPUJACY NIE PŁACI
2 % PODATKU PCC.

NOWA INWESTYCJA DOMÓW W GMINIE LISZKI

KAŻDY KLIENT ZNAJDZIE COŚ W SWOIM ZAKRESIE BUDŻETOWYM

Do sprzedania
dom wolnostojący w stanie developerskim na kameralnym osiedlu znajdującym się miejscowości
Liszki 18 km od centrum Krakowa w kierunku zachodnim.
Indywidualny projekt budynku.
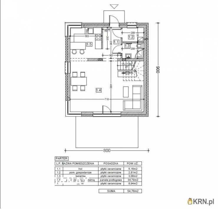
Rozkład pomieszczeń:
Parter w sumie : 54.78m 2
- Hol - 5,16 m2
- Pomieszczenie gospodarcze - 2, 81 m2
- Łazienka - 3,08 m2
- Pokój dzienny z jadalnią - 34,79 m2
-
Kuchnia - 8,94 Poddasze w sumie 49.46m2
- Schody - 3,65 m2
-Hol - 4,16 m2
- Pokój - 7,76 m2
- Pokój - 10,59 m2
- Pokój - 18,26 m2
-Łazienka - 5,04 m2
Specyfikacja budynku:
- budynek oddany do użytkowania -
- wybudowany z pustaka ceramicznego Porotherm gr 25cm,
- ocieplenia styropianem gr. 20 cm + tynk akrylowy.
- kryty dachówka ceramiczna,
- ocieplenia poddasza wełna 25 cm
- okna 3 szybowe.
- ogrzewanie podłogowe
- piec z zamkniętą komorą spalania
- taras oraz podjazdy wyłożony,kostką brukową.
- teren ogrodzony wraz bramą i furtką.
- wentylacja mechaniczna
- bez drzwi wewnętrznych, podłóg, szpachlowania, malowania, białego montażu
Dom posiada wszystkie media: woda, prąd, gaz, kanalizacja miejska,
LOKALIZACJA:
- w pobliżu pełna infrastruktura handlowo-usługowa, szkoła podstawowa, przedszkole,
apteka, przychodnia zdrowia,
itd...
- 20 minut jazdy samochodem do Krakowa
- przystanek autobusowy w okolicy osiedla

::DODATKOWE INFORMACJE
Prąd: jest Gaz: jest Woda: jest Dojazd: asfalt Otoczenie: zabudowa jednorodzinna Ogrzewanie: C.O. GAZOWE Kanalizacja: miejska Komunikacja publ.: autobus podmiejski Okna: PCV 3 komorowe Ukształtowanie działki: płaska Rodzaj domu: wolnostojący Stan wybudowania: Stan deweloperski Pokrycie dachu: dachówka ceramiczna Pozwolenie na użytkowanie: tak Powierzchnia użytkowa [m2]: 104,2400 Podpiwniczenie: nie Garaż: brak Ogrodzenie działki: ogrodzona Rok budowy: 2024 Liczba pokoi: 4 Powierzchnia pokoi [m2]: 7,76+10,59+18,26+34,79 Typ kuchni: aneks kuchenny - połączony z salonem
::KONTAKT DO AGENTA
Patryk Brzeżawski Zobacz kontakt506 963 113 Zobacz kontaktpatryk@danax.pl
Pośrednik odpowiedzialny zawodowo za wykonanie umowy pośrednictwa: Bartłomiej Krosta (licencja nr: 6585)
--------------------------
Od 1993 r. pośredniczymy w transakcjach na krakowskim rynku nieruchomości.
Pomożemy Ci jak przyjacielowi.

Ogrzewanie: Gazowe

Kontakt do agenta:
Patryk Brzeżawski
Zobacz kontaktpatryk@danax.pl
Zobacz kontakt506 963 113

Oceń ofertę


0


285 wydruk błąd schowek

Ostatnio przeglądane

 

 

 

pobieranie

Pobierz wzór umowy

Umowa przedwstępna sprzedaży

wybierz plik do pobrania
doc pdf

 

 

Deweloperzy

);