Prosimy, odblokuj wyświetlanie reklam w naszym serwisie, są one związane z rynkiem nieruchomości.
To dzięki nim masz darmowy dostęp do naszych treści.

Z pozdrowieniami zespół KRN.pl :)


telefon

wiadomość

mapa

Dom, Wrocław, Psie Pole, ul. Morawska

Dom na sprzedaż Wrocław (woj. Dolnośląskie), Psie Pole, ul. Morawska

Lokalizacja:

Wrocław, Psie Pole, ul. Morawska

Powierzchnia:

142.18 m2

Cena:

1 420 000 zł

Dane szczegółowe

lokalizacja:
Dolnośląskie, Wrocław, Psie Pole, ul. Morawska
typ obiektu:
dom na sprzedaż
cena:
1 420 000 zł
pokoi:
5
ilość pięter w budynku:
1
powierzchnia:
142.18 m2
numer ogłoszenia:
221159
data dodania:
08-08-2024
data modyfikacji:
08-08-2024
jakość wypełnienia oferty:
100%

Szczegóły oferty

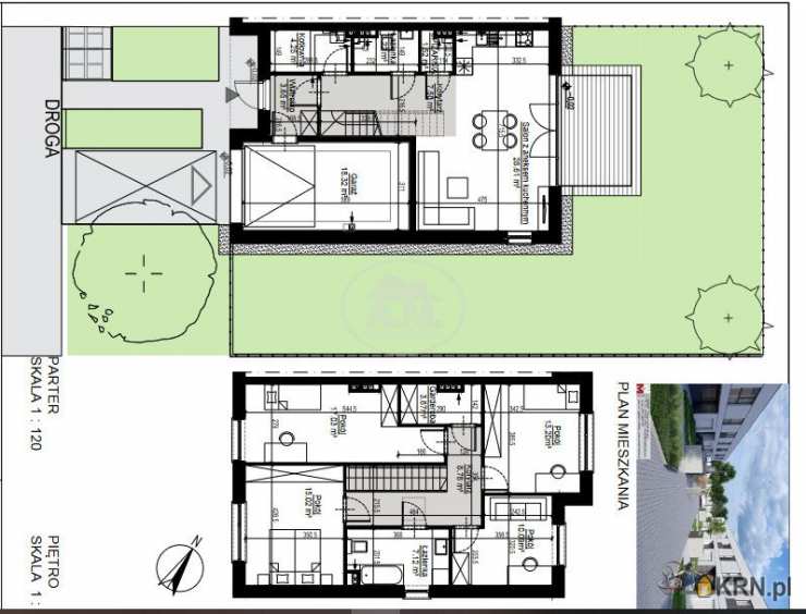
Remigiusz Pawlickitel. Zobacz kontakt577 677 808* kupujący nie płaci prowizji, ani PCC* stan deweloperski do wykończenia* cicha, spokojna okolica obfitujaca w tereny spacerowe* funkcjonalne, zapewniajace komfort rozkłady domówBliźniak zlokalizowany tuż przy zagajniku starodrzewia!Parter:-Wiatrołap-Korytarz-Garaż-Kotłownia-Łazienka-Pokój z aneksem-Spiżarnia-Wyjście na ogródek z tarasemPiętro:-Sypialnia z garderobą-Garderoba-Łazienka-Korytarz-Pokój-Pokój-PokójPowierzchnia działki 308,23 m2Gotowe we Wrześniu 2025STANDARD WYKOŃCZENIA DOMÓW1. konstrukcja - mieszana, ściany murowane/żelbetowe, fundament w postaci ławżelbetowych, ściany fundamentowe żelbetowe2. stropy monolityczne żelbetowe,3. ściany zewnętrzne - murowane, bloczki wapienno - piaskowe, ocieplone styropianem,4. ściany wewnętrzne: bloczki wapienno - piaskowe/ gipsowe typu ORTH,5. wykończenie ścian wewnętrznych konstrukcyjnych i działowych - tynk maszynowygipsowy, ścianki wykonane z bloczków gipsowych typu ORTH szpachlowane,w pomieszczeniach wilgotnych wykonane z bloczków gipsowych w stanie surowym,pozostałe ściany tynkowane zatarte „na ostro”, sufity tynkowane6. wykończenie posadzek - podłoże jastrychowe zatarte na gładko przygotowane podokładziny podłogowe,7. stolarka okienna PCV, od strony zewnętrznej kolor antracyt RAL 7024, od stronywewnętrznej kolor biały RAL 9001, drzwi tarasowe aluminiowe, w kolorze RAL 7024,rozwierno-uchylne, przesuwne, nawietrzaki okienne,8. rolety zewnętrzne9. schody żelbetowe10. parapety wewnętrzne - brak, Kupujący dostarczy we własnym zakresie11. parapety zewnętrzne blaszane powlekane lub blachy tytan-cynk lub ocynk12. drzwi wejściowe stalowe/aluminiowe, bez drzwi wewnętrznych, które Kupującydostarczy i zamontuje we własnym zakresie,13. ogrzewanie podłogowe, gazowe, indywidualne piece jednofunkcyjne z zasobnikiem140 L, De Dietrich/Buderus/Viessmann14. wentylacja grawitacyjna,15. instalacja klimatyzacji,16. licznik wody zimnej,17. instalacja wodno - kanalizacyjna18. instalacja elektryczna - bez opraw oświetleniowych, jednofazowa z trójfazowympodejściem pod kuchenkę elektryczną/indukcyjną w kuchni, z osprzętem,19. instalacja telewizyjna, okablowanie bez anten20. instalacja internetowa,21. instalacja fotowoltaiczna - 6 paneli fotowoltaicznych22. wideodomofon - instalacja kompletna z unifonem w przedpokoju,23. instalacja sanitarna - z podejściami pod WC, umywalkę, wannę, zlewozmywak i pralkębez białego montażu, tzn. bez baterii, zlewozmywaków, umywalek, wanien, WC(w łazience i kuchni możliwość wystąpienia rur wodno-kanalizacyjnych niewkuwanychw ścianę oraz ponad posadzką),24. brama garażowa segmentowa25. elewacja - tynk strukturalny biały, mineralna płytka grafitowa np. Elastolith,26. dach płaski,27. taras - płyty betonowe28. zagospodarowanie terenu - ciągi pieszo - jezdne oświetlone, utwardzone kostkąbrukową,29. wygrodzenie ogródków - siatka panelowaLOKALIZACJAKsięże Wielkie to jedna z najbardziej zielonych dzielnic Wrocławia. Sąsiadujące tereny to m.in. Park Wschodni, liczne ścieżki spacerowe i rowerowe, most kilometrowy - najdłuższa w Polsce kładka dla pieszych i rowerzystów, z którego rozpościerają się przepiękne widoki.Punkty handlowe i usługoweprzedszkole (ok. 500 m), szkoła podstawowa (ok. 1 km), sala zabaw dla dzieci (ok. 1,5 km), apteka (ok. 300 m), sklep (ok. 100 m), lokale gastronimiczne (ok. 100m).Komunikacja miejskalinie autobusowe nr 124, 134, 243 (przystanek autobusowy w odległości ok. 200m) oraz linie tramwajowe nr 3 i 5 (przystanek tramwajowy w odległosci ok. 3,5 km)tel. Zobacz kontakt577 677 808Remigiusz PawlickiW ramach usługi pośrednictwa, dla naszych klientów zapewniamy profesjonalnych doradców finansowych z ofertą kredytową wielu banków.Interesują cię inne lokalizacje? Zadzwoń, w swojej ofercie posiadam około 80 inwestycji na rynku pierwotnym we Wrocławiu!********Zamieszczona oferta nie stanowi oferty w rozumieniu Kodeksu Cywilnego, a dane w nich zawarte mają jedynie charakter informacyjny.A16/2

Oceń ofertę


3.4


691 wydruk błąd schowek

Ostatnio przeglądane

 

 

 

pobieranie

Pobierz wzór umowy

Umowa przedwstępna sprzedaży

wybierz plik do pobrania
doc pdf

 

 

Deweloperzy

);