Prosimy, odblokuj wyświetlanie reklam w naszym serwisie, są one związane z rynkiem nieruchomości.
To dzięki nim masz darmowy dostęp do naszych treści.

Z pozdrowieniami zespół KRN.pl :)


telefon

wiadomość

mapa

Dom, Michałowice, ul. Warszawka

Dom na sprzedaż Michałowice (woj. Małopolskie), ul. Warszawka

Lokalizacja:

Michałowice, , ul. Warszawka

Powierzchnia:

132.00 m2

Cena:

1 100 000 zł

Dane szczegółowe

lokalizacja:
Małopolskie, Michałowice, ul. Warszawka
typ obiektu:
dom na sprzedaż
cena:
1 100 000 zł
powierzchnia:
132.00 m2
numer ogłoszenia:
BS2-DS-307954-137
data dodania:
13-03-2026
data modyfikacji:
13-03-2026
jakość wypełnienia oferty:
100%

Szczegóły oferty


OFERTUJEMY DO SPRZEDAŻY NOWE OSIEDLE DOMÓW POŁOŻONYCH I MIECHAŁOWICACH.
Osiedle składa się z sześciu domów w zabudowie bliźniaczej,
łącznie 12 domów
zlokalizowanych w Michałowicach k. Krakowa.
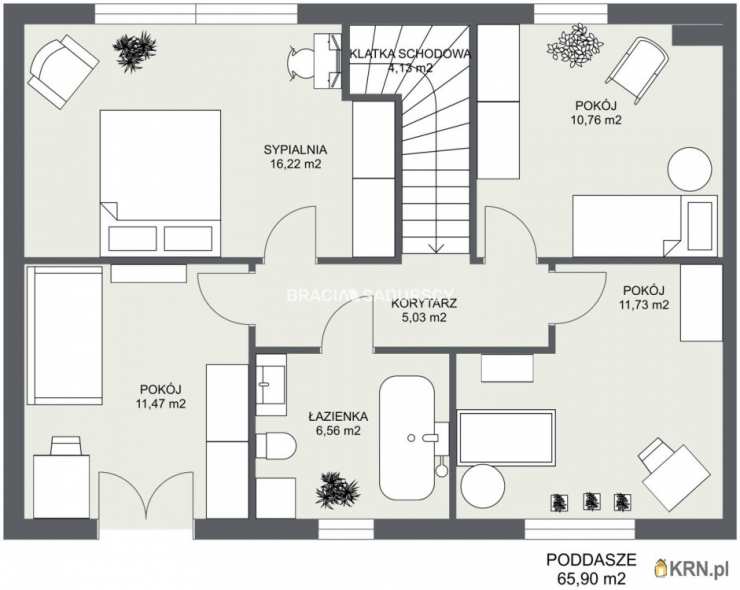
Domy parterowe z użytkowym poddaszem o powierzchni
ok. 132 m2 z garażem (od. 19 m2 ). Domy usytuowane na działkach od 400 do 750 m2.

PARTER:
salon połączony z jadalnią, aneks kuchenny, toaleta, wiatrołap, kotłowania i garaż.
PODDASZE:
jedna główna sypialnia (ok 16 m2), trzy mniejsze pokoje i łazienka.

Domy budowane do stanu deweloperskiego
- tynki i wylewki, okna trzyszybowe, drzwi antywłamaniowe.

Ogrzewanie:
ogrzewanie podłogowe na całej powierzchni budynku, bez źródła ciepła.
Dodatkowo, wentylacja + pompa ciepła.70 tys zł.
Podjazd wyłożony kostką brukową, ogrodzenie z trzech stron. Istnieje możliwość wykonania instalacji fotowoltaicznej.

Okolica spokojna
z niską zabudową, niedaleko przystanku MPK.
Zapraszam do kontaktu:
Patrycja Rubinkiewicz
Zobacz kontaktpatrycja@sadurscy.pl
Zobacz kontakt505-236-943
::DODATKOWE INFORMACJE
Kategoria oferty: Mieszkania dla rodzin z dziećmi Prąd: jest Gaz: jest Woda: jest Dojazd: asfalt Otoczenie: zabudowa jednorodzinna Ogrzewanie: pompa ciepła Kanalizacja: szambo Komunikacja publ.: autobus miejski, autobus Drzwi antywłamaniowe: TAK Okna: PCV Instalacje: nowe Balkon: okno balkonowe Tarasy: taras Liczba tarasów: 1 Zagosp. działki: zagospodarowana Ukształtowanie działki: płaska Kształt działki: prostokąt Rodzaj domu: bliźniak Stan wybudowania: Stan deweloperski Typ elewacji: tynk zwykły Podst. materiał budowlany: pustak Pokrycie dachu: dachówka Stan budynku: do wykończenia Podpiwniczenie: nie Garaż: w poziomie parteru Ogrodzenie działki: ogrodzona Rok budowy: 2021 Liczba pokoi: 4 Liczba sypialni: 4 Powierzchnia pokoi [m2]: 24,48; 10,76; 16,22; 11,73; 11,47 Podłogi pokoi: wylewka Ściany pokoi: zwykłe Typ kuchni: aneks kuchenny Rodzaj kuchni: aneks kuchenny połączony z jadalnią i salonem Powierzchnia kuchni [m2]: 8,41 Podłoga kuchni: wylewka Typ łazienki: osobno z wc Liczba łazienek: 1 Powierzchnia łazienki [m2]: 6,56 Glazura łazienki: bez glazury Podłoga łazienki: wylewka Ściany łazienki: zwykłe Liczba WC: 1 Powierzchnia WC: 3,58 Glazura WC: bez glazury Podłoga WC: wylewka Ściany WC: zwykłe Liczba przedpokoi: 1 Podłoga przedpokoi: wylewka Ściany przedpokoi: zwykłe
::LINK DO STRONY
https://sadurscy.pl/offer/BS2-DS-307954
::KONTAKT DO AGENTA
Patrycja Rubinkiewicz + Zobacz kontakt48 505-236-943 Zobacz kontaktpatrycja@sadurscy.pl
::DANE BIURA
Oddział BS2, Rynek Pierwotny Przewóz
47 30-081 Kraków Zobacz kontakt12 630-90-45
--------------------------
::GRATIS | Nasza prowizja zawiera: koszt przedwstępnej notarialnej umowy sprzedaży nieruchomości z rynku wtórnego. ::GWARANCJA | Gwarancja zwrotu zadatku. Więcej informacji na sadurscy.pl/zwrot-zadatku/

Ogrzewanie: POMPA CIEPLA
Materiał: Pustak

Kontakt do agenta:
Patrycja Rubinkiewicz
Zobacz kontaktpatrycja@sadurscy.pl
+ Zobacz kontakt48 505-236-943

Oceń ofertę


0


24 wydruk błąd schowek

Ostatnio przeglądane

 

 

 

pobieranie

Pobierz wzór umowy

Umowa przedwstępna sprzedaży

wybierz plik do pobrania
doc pdf

 

 

Deweloperzy

);