Prosimy, odblokuj wyświetlanie reklam w naszym serwisie, są one związane z rynkiem nieruchomości.
To dzięki nim masz darmowy dostęp do naszych treści.

Z pozdrowieniami zespół KRN.pl :)


telefon

wiadomość

mapa

Dom, Kobierzyce

Dom na sprzedaż Kobierzyce (woj. Dolnośląskie)

Lokalizacja:

Kobierzyce, , ul.

Powierzchnia:

130.73 m2

Cena:

1 099 000 zł

Dane szczegółowe

lokalizacja:
Dolnośląskie, Kobierzyce
typ obiektu:
dom na sprzedaż
cena:
1 099 000 zł
pokoi:
5
ilość pięter w budynku:
1
powierzchnia:
130.73 m2
media:
siła
numer ogłoszenia:
1234-26
data dodania:
14-01-2026
data modyfikacji:
14-01-2026
jakość wypełnienia oferty:
100%

Szczegóły oferty


REZERWACJA OFERTY

Zapraszam do zakupu inwestycji w której każdy budynek jest niepowtarzalny, elewacja z elementami cegły rozbiórkowej i tynku. Domy są ekologiczne, ogrzewanie pompą ciepła, okna HST, rolety elektryczne, podłączenie klimatyzacji. Trzy różne metraże domów, oraz indywidualne warianty układów pomieszczeń,

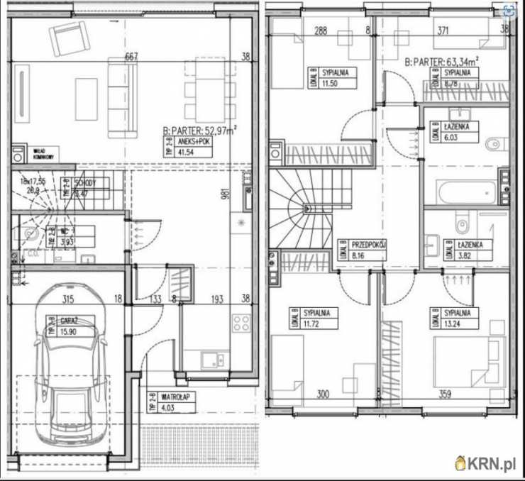
Prezentowany dom ma powierzchnię użytkową 130,73 m2 , ogród ma powierzchnię 42,42m2.

PARTER:

1. Przedsionek – 3,16 m2 2.

2. Toaleta– 3,82m2

3. Pokój dzienny + kuchnia – 41,54m2

4. Garaż – 15,9m2

PIĘTRO:

1. Korytarz– 7,87 m2

2. Łazienka – 6,03 m2

3. Pralnia – 2,69m2

4. Pokój – 13,24m2

5. Pokój– 11,72 m2

6. Pokój – 11,50 m2

7. Pokój- 8,78m2

8. Schody – 5,04 m2

Stan deweloperski:-wykonanie instalacji elektrycznej, antenowej i internetowej w całym domu- wykonanie instalacji C.O., wodnej oraz kanalizacyjnej,- montaż pompy ciepła powietrznej, ogrzewanie podłogowe w całym budynku ,-profil okienny ideal 4000, pakiet 3 szybowe,- drzwi wejściowe, płaskie, pełne lub z tłoczeniem do antywłamaniowe klasy B,- schody wejściowe do budynku,- parapety wewnętrzne pcv kolor okien, zewnętrzne stalowe w kolorze okien,- wykonanie drogi dojazdowej oraz podjazdów z kostki brukowej, ogrodzenie terenu

Termin realizacji inwestycji 30-06-2025Zapraszam do kontaktu w celu przygotowania oferty / umówienia się na prezentacje – Kupujący nie płaci p Zapewniam

- profesjonalną obsługę, gwarantowaną wieloletnim doświadczeniem w branży nieruchomości-możliwość bezpłatnej rezerwacji apartamentu

- kompleksowe wsparcie na każdym etapie transakcji

- gwarancję bezpiecznego zakupu

- oszczędność czasu

-pomoc w uzyskaniu kredytu na najlepszych warunkach

- kompleksowe doradztwo

Ania Kamuda- Doradca klienta

tel. Zobacz kontakt535 422 188

Zobacz kontaktanna.kamuda@elitare.pl

Nr oferty 01_PAT_3B/AK

Zamieszczone na naszych stronach informacje nie stanowią oferty w rozumieniu Kodeksu Cywilnego, a dane w nich zawarte mają jedynie charakter informacyjny.

OFERTA CENOWA AKTUALNA NA DZIEŃ 13-01-2026 I OBOWIĄZUJE DO DNIA 13-01-2026

Oceń ofertę


0


96 wydruk błąd schowek

Ostatnio przeglądane

 

 

 

pobieranie

Pobierz wzór umowy

Umowa przedwstępna sprzedaży

wybierz plik do pobrania
doc pdf

 

 

Deweloperzy

);