Prosimy, odblokuj wyświetlanie reklam w naszym serwisie, są one związane z rynkiem nieruchomości.
To dzięki nim masz darmowy dostęp do naszych treści.

Z pozdrowieniami zespół KRN.pl :)


telefon

wiadomość

mapa

Dom, Rączna

Dom na sprzedaż Rączna (woj. Małopolskie)

Lokalizacja:

Rączna, , ul.

Powierzchnia:

110.70 m2

Cena:

729 000 zł

Dane szczegółowe

lokalizacja:
Małopolskie, Rączna
typ obiektu:
dom na sprzedaż
cena:
729 000 zł
powierzchnia:
110.70 m2
numer ogłoszenia:
DNX-DS-30735-3
data dodania:
24-02-2026
data modyfikacji:
24-02-2026
jakość wypełnienia oferty:
100%

Szczegóły oferty



NOWA INWESTYCJA W RĄCZNEJ GMINA LISZKI /W TRAKCIE REALIZACJI/
POSIADAMY KLUCZE OD IDENTYCZNEJ REALIZACJI !!!!!
PROJEKT DOMU W ZABUDOWIE BLIŹNIACZEJ "DOM W MODRAKACH 3B"
Dom w zabudowie bliźniaczej /NIE MIESZKANIE/ zaprojektowany z myślą o komforcie mieszkańców, wyróżnia się przestronnymi wnętrzami i prywatnymi ogródkami.
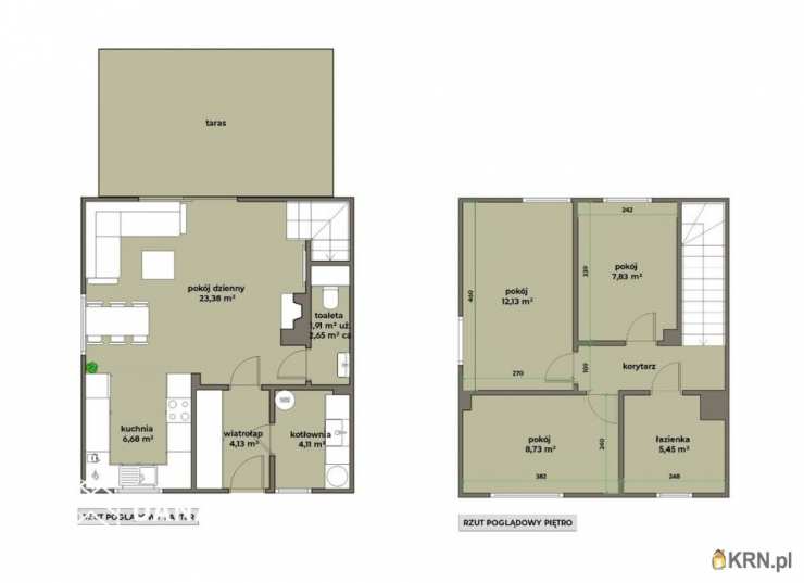
ROZKŁAD POMIESZCZEŃ:
Parter: 40,21 m2
wiatrołap, hol, kuchnia z jadalnią, spiżarnia, salon, łazienka
Poddasze:41,45M2
korytarz, 3 pokoje, łazienka
Powierzchnia całkowita: 110,7m2
Powierzchnia użytkowa: 81,40m2
Powierzchnia działki: 219m2
MEDIA:
instalacja wodna, elektryczna, kanalizacyjna sanitarna i deszczowa

Najważniejsze informacje:

Pustak ceramiczny Porotherm Wienerberger
Pompa ciepła w standardzie
Dachówka ceramiczna kolor antracyt
Ogrzewanie podłogowe w całym domu
Ocieplenie styropianem o grubości 20cm
Droga oraz podjazdy wyłożone kostką brukową
Poddasze ocieplone wełną oraz wykończone płytami karton-gips
Instalacja pod fotowoltaikę
2 miejsca postojowe z kostki brukowej
Brak skosów na piętrze
podwójne ściany między segmentami
możliwość wykończenia pod klucz
możliwość zmian lokatorskich

możliwość instalacji klimatyzacji /za dopłatą/

Lokalizacja:

Rączna położona jest na zachód od Krakowa w odległości zaledwie 7km od granicy z miastem i gwarantuje liczną ilość terenów zielonych i rekreacyjnych a jednocześnie zapewnia szybki i łatwy dojazd do Krakowa, lotniska, oraz autostrady A4.
W najbliższej okolicy:

Sklepy spożywcze m.in
Biedronka, Lewiatan, Delikatesy Centrum,
Szkoły, przedszkola, apteki, liczne punkty usługowe
Bardzo dobre połączenie komunikacyjne z każdą stroną Krakowa
Bezpośredni MPK do centrum Krakowa
Zalew Kryspinów, Dolina Mnikowska

Rok budowy 2025/2026 . Zakończenie inwestycji 30,10,2026
Zapewniamy pomoc w uzyskaniu kredytu hipotecznego

KUPUJĄCY NIE PŁACI PCC. ZDJĘCIA PRZEDSTAWIAJĄ INWESTYCJĘ PO UKOŃCZENIU !
::DODATKOWE INFORMACJE
Prąd: jest Gaz: brak Dojazd: asfalt Ogrzewanie: pompa ciepła Kanalizacja: szambo Tarasy: taras duży Ukształtowanie działki: płaska Rodzaj domu: bliźniak Podst. materiał budowlany: cegła, pustak ceramiczny poroterm Pokrycie dachu: dachówka Powierzchnia użytkowa [m2]: 81,4000 Stan budynku: do wykończenia Podpiwniczenie: nie Garaż: brak Ogrodzenie działki: częściowo ogrodzona Rok budowy: 2025 Liczba pokoi: 4 Powierzchnia pokoi [m2]: 25,29+7,92+12,13+8,92 Typ kuchni: aneks kuchenny Powierzchnia kuchni [m2]: 6,58 Powierzchnia łazienki [m2]: 4,13+5,29
::KONTAKT DO AGENTA
Patryk Brzeżawski Zobacz kontakt506 963 113 Zobacz kontaktpatryk@danax.pl
Pośrednik odpowiedzialny zawodowo za wykonanie umowy pośrednictwa: Bartłomiej Krosta (licencja nr: 6585)
--------------------------
Od 1993 r. pośredniczymy w transakcjach na krakowskim rynku nieruchomości.
Pomożemy Ci jak przyjacielowi.

Ogrzewanie: POMPA CIEPLA
Materiał: Cegła

Kontakt do agenta:
Patryk Brzeżawski
Zobacz kontaktpatryk@danax.pl
Zobacz kontakt506 963 113

Oceń ofertę


0


18 wydruk błąd schowek

Ostatnio przeglądane

 

 

 

pobieranie

Pobierz wzór umowy

Umowa przedwstępna sprzedaży

wybierz plik do pobrania
doc pdf

 

 

Deweloperzy

);