Prosimy, odblokuj wyświetlanie reklam w naszym serwisie, są one związane z rynkiem nieruchomości.
To dzięki nim masz darmowy dostęp do naszych treści.

Z pozdrowieniami zespół KRN.pl :)


telefon

wiadomość

mapa

Dom, Krzyszkowice

Dom na sprzedaż Krzyszkowice (woj. Małopolskie)

Lokalizacja:

Krzyszkowice, , ul.

Powierzchnia:

108.88 m2

Cena:

799 000 zł

Dane szczegółowe

lokalizacja:
Małopolskie, Krzyszkowice
typ obiektu:
dom na sprzedaż
cena:
799 000 zł
powierzchnia:
108.88 m2
media:
woda
numer ogłoszenia:
DNX-DS-30639-5
data dodania:
28-01-2026
data modyfikacji:
15-03-2026
jakość wypełnienia oferty:
100%

Szczegóły oferty


KUPUJĄCY NIE PŁACI PROWIZJI I PODATKU PCC!
Do sprzedaży domy w zabudowie bliźniaczej położone na działkach 5arowych o powierzchni użytkowej 98m2 (całkowitej 108m2) składają się z :
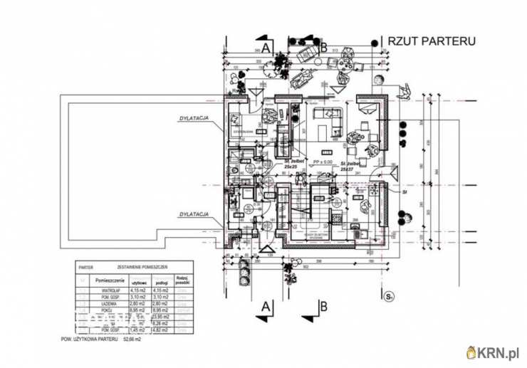
Rozkład pomieszczeń

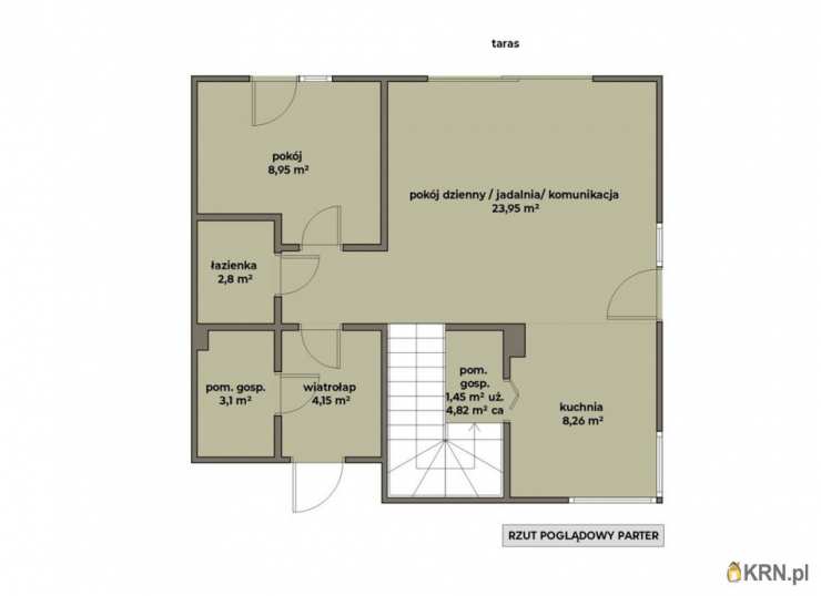
Parter:

Salon z jadalnią
- 23,95 m² z wyjściem na taras, z którego rozpościerają się widoki na malowniczą okolicę

Kuchnia otwarta
- 8,26 m²

Pokój
- 8,95 m²

Łazienka
- 2,80 m²

Wiatrołap
- 4,15 m²

Pomieszczenie gospodarcze
- 1,45 m²

Pomieszczenie gospodarcze
- 3,10 m²

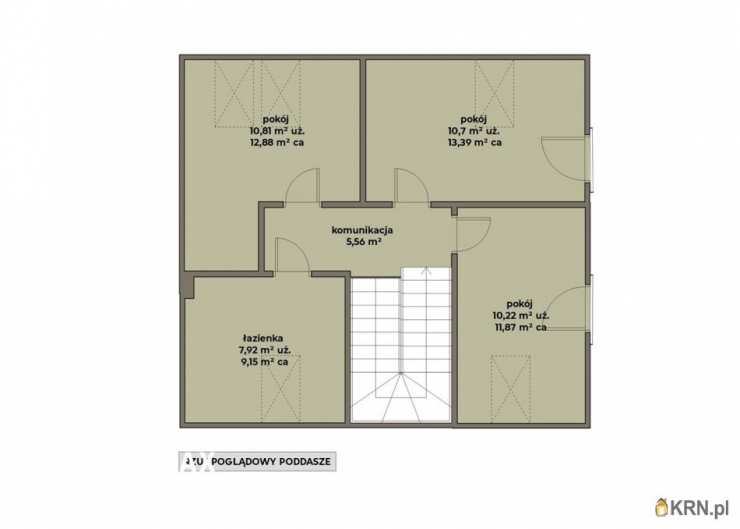
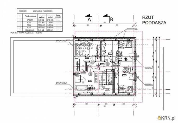
Piętro: Pokój
- 10,81 m²

Pokój
- 10,70 m²

Pokój
- 10,22 m²

Korytarz
- 5,56 m²

Łazienka
- 7,92 m²

Zdjęcia przestawiają 1 etap już zrealizowany. Przewidywany odbiór domów w 2 etapie - III kwartał 2026r.
Cena domu z działką 5-arową - 799tys zł

LOKALIZACJA, KOMUNIKACJA
- Dobry dojazd do Krakowa 18km, Myślenic 3 km
- W pobliżu szkoła, przedszkola, żłobki, sklepy, kościół, przychodnia, plac zabaw, fryzjer - zlokalizowane zaledwie kilka minut samochodem
STANDARD WYKOŃCZENIA:
KONSTRUKCJA, ŚCIANY, ELEWACJE
• ława fundamentowa 30cm wylana na chudym betonie 10cm,
• ustrój nośny kondygnacji parteru - ściany murowane z Porotherm 25P+W, płyta stropowa nad kondygnacją parteru żelbetowa monolityczna zbrojona
• ustrój nośny kondygnacji nad parterem - ściany murowane z Porotherm 25P+W, trzpienie oraz wieńce żelbetowe,
• Dach dwuspadowy w postaci więźby dachowej , pokryty dachówką ceramiczną,
• ściany działowe z murowane z Porotherm 12,5 P+W,
• schody żelbetowe,
• tynki wewnętrzne - gipsowe, wzmacniane na ścianach, tynki gipsowe na sufitach, tynki cementowo wapienne w łazienkach,
• wylewki cementowe,
• elewacja - styropian 20 cm ( λ 0,031), tynk biały silikonowy
• parapety zewnętrzne - obróbka blacharska parapetów,

UDOGODNIENIA ZEWNĘTRZNE
• zjazd bezpośrednio z drogi wewnętrznej utwardzonej. Droga wewnętrzna z bezpośrednim dostępem do drogi miejskiej asfaltowej,
• podjazd oraz wejście do budynku z kostki brukowej, podbudowa z zagęszczonego kruszywa,
• zagospodarowany ogród - trawnik
• taras z kostki brukowej
• parkowanie na podjeździe - możliwość postawienia wiaty (we własnym zakresie).
• ogrodzenia działki - panelowe

UDOGODNIENIA WEWNĘTRZNE
• instalacja elektryczna - zgodnie z projektem, dodatkowo gniazdo siłowe w kuchni, przygotowanie pod kuchenkę indukcyjną,
• okna plastikowe (trzyszybowe), termika konstrukcji min. U=0,9W/m2K, w przypadku drzwi tarasowych min. U=1,0W/m2K
• drzwi wejściowe metalowe ocieplane ,
• instalacja wod-kan (woda - miejska i kanalizacja - sieć gminna),
• piec gazowy - 2 funkcyjny,
• wentylacja grawitacyjna,
• ogrzewanie podłogowe w całym lokalu plus ręcznikowce w łazienkach
• Panele solarne na dachu
Wizualizacje prezentowane są wyłącznie w celach poglądowych

ZAPRASZAMY NA PREZENTACJĘ!
::DODATKOWE INFORMACJE
Prąd: jest Gaz: jest Woda: tak - miejska Dojazd: asfalt Otoczenie: zabudowa jednorodzinna Ogrzewanie: C.O. GAZOWE Kanalizacja: tak Okna: PCV Instalacje: nowe Tarasy: taras duży Zagosp. działki: zagospodarowana Ukształtowanie działki: płaska Kształt działki: prostokąt Rodzaj domu: bliźniak Stan wybudowania: Stan deweloperski Typ elewacji: baranek Podst. materiał budowlany: porotherm Pokrycie dachu: dachówka ceramiczna Powierzchnia użytkowa [m2]: 97,8700 Stan budynku: do wykończenia Podpiwniczenie: nie Garaż: miejsce postojowe Ogrodzenie działki: ogrodzona Rok budowy: 2026 Liczba pokoi: 5 Liczba sypialni: 4 Typ kuchni: aneks kuchenny - połączony z salonem Rodzaj kuchni: otwarta na salon Liczba łazienek: 2
::KONTAKT DO AGENTA
Stanisław Godłowski Zobacz kontakt502 181 981 Zobacz kontaktstaszek@danax.pl
Pośrednik odpowiedzialny zawodowo za wykonanie umowy pośrednictwa: Bartłomiej Krosta (licencja nr: 6585)
--------------------------
Od 1993 r. pośredniczymy w transakcjach na krakowskim rynku nieruchomości.
Pomożemy Ci jak przyjacielowi.

Ogrzewanie: Gazowe
Materiał: POROTHERM

Kontakt do agenta:
Stanisław Godłowski
Zobacz kontaktstaszek@danax.pl
Zobacz kontakt502 181 981

Oceń ofertę


0


1635 wydruk błąd schowek

Ostatnio przeglądane

 

 

 

pobieranie

Pobierz wzór umowy

Umowa przedwstępna sprzedaży

wybierz plik do pobrania
doc pdf

 

 

Deweloperzy

);