Prosimy, odblokuj wyświetlanie reklam w naszym serwisie, są one związane z rynkiem nieruchomości.
To dzięki nim masz darmowy dostęp do naszych treści.

Z pozdrowieniami zespół KRN.pl :)


telefon

wiadomość

mapa

Dom, Zielonki

Dom na sprzedaż Zielonki (woj. Małopolskie)

Lokalizacja:

Zielonki, , ul.

Powierzchnia:

103.12 m2

Cena:

1 149 000 zł

Dane szczegółowe

lokalizacja:
Małopolskie, Zielonki
typ obiektu:
dom na sprzedaż
cena:
1 149 000 zł
powierzchnia:
103.12 m2
numer ogłoszenia:
PAC-DS-9532-1
data dodania:
24-04-2026
data modyfikacji:
24-04-2026
jakość wypełnienia oferty:
100%

Szczegóły oferty


!OFERTA BEZPOŚREDNIO OD DEWELOPERA - 0 % PROWIZJI - BRAK DODATKOWYCH KOSZTÓW!
!MOŻLIWOŚĆ ZAKUPU BEZ ZGODY MINISTERSTWA!

Do sprzedania
lokal mieszkalny w zabudowie dwulokalowej
nr 2
położony przy
ul. Rzyczyskiej w Zielonkach, nieopodal centrum.
Lokal o pow. użytkowej
97,73m2 , pow. podłóg
103,12m2.

Nieruchomość usytuowana
na bardzo kameralnym osiedlu
składającym się wyłącznie z dwóch budynków mieszkalnych (wolnostojący + dwulokalowy). Osiedle położone w I linii zabudowy od drogi gminnej asfaltowej.
Dogodna lokalizacja zapewniająca ciszę i spokój
przy jednocześnie świetnym dostępie do niezbędnej infrastruktury.
Dom z przynależnymi:
trzema miejscami postojowymi,
trzema sypialniami oraz dwiema łazienkami. Rozkład pomieszczeń:
Parter:
klatka schodowa (2,3m2), część dzienna z kuchnią (35,91m2), wiatrołap (2,98m2), kotłownia (3,16m2), łazienka (3,94m2)
- razem 48,29m2
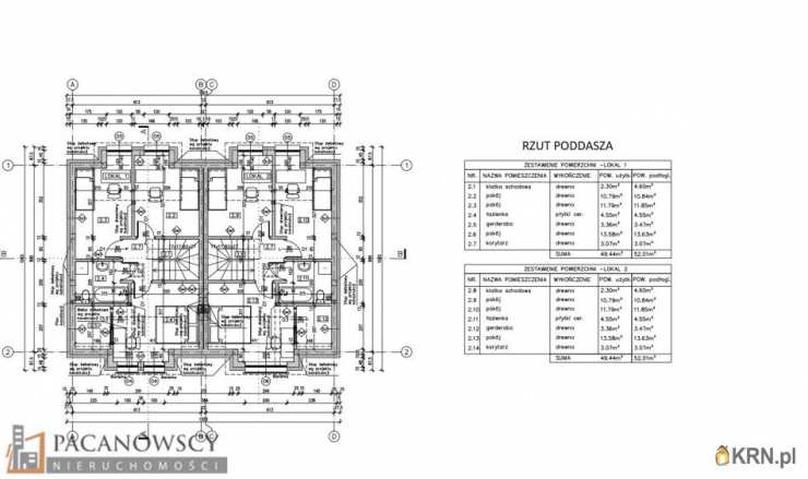
Poddasze:
klatka schodowa (2,3m2), pokój (10,79m2), pokój (11,79m2), łazienka (4,55m2), garderoba (3,36m2), pokój (13,58m2), korytarz (3,07m2)
- razem 49,44m2

Dom sprzedawany w stanie deweloperskim obejmującym:

okna PCV firmy Oknoplast 3 szybowe otwieralno-uchylne,
parapety zewnętrzne - blacha,
pokrycie dachu: dachówka ceramiczna,
drzwi wejściowe antywłamaniowe,
tynki wewnętrzne gipsowe oraz cementowo-wapienne w łazienkach,
ogrzewanie podłogowe: cały budynek
+ w łazienkach grzejniki drabinkowe,
instalacja: wod-kan, elektryczna, gazowa, C.O, alarmowa, TV-SAT,
balustrady balkonowe (balkony francuskie) - stalowe przeszklone,
ogrodzenie działki: panelowe,
podjazd, miejsca postojowe, podejścia
wybrukowane,
montaż puszek pod rolety antywłamaniowe zewnętrzne,

wykonana instalacja pod klimatyzację
(bez osprzętu).

Możliwość podniesienia standardu budynku za dodatkową opłatą o:

montaż pieca gazowego,
montaż stacji uzdatniania wody,
montaż
paneli fotowoltaicznych,
montażu rolet antywłamaniowych / rolet fasadowych.

Dom wybudowany w technologii tradycyjnej:
ławy fundamentowe, ściany zewnętrzne pustak ceramiczny 25 cm, ocieplenie zewnętrzne styropianem 20 cm + tynk, dach pokryty dachówką ceramiczną płaską (grafitową), ocieplenie stropu poddasza oraz ocieplenie dachu pianą PUR.
Media:
prąd, woda, gaz, kanalizacja.
LOKALIZACJA
Świetna lokalizacja
- nieruchomość usytuowana nieopodal ewidencyjnej
granicy miasta Krakowa (2km) . Dostęp do pełnej niezbędnej infrastruktury,
w najbliższej okolicy
m.in.: sklepy, restauracje, apteki, piekarnia, paczkomat, poczta, gabinety lekarskie, gabinety kosmetyczne, Urząd Gminy, salon fryzjerski, gabinet weterynaryjny, autoserwis, przedszkole, żłobek, szkoła podstawowa, pływalnia, kościół, centrum kultury.

Planowany termin odbioru: lipiec 2027 r.

Na życzenie klienta możliwe wykończenie domu pod klucz!

Cena: 1.149.000 zł brutto. Kupujący nie płaci 2% podatku PCC.
MOŻLIWOŚĆ ZAKUPU PRZEZ OBOKRAJOWCÓW!

Kontakt w sprawie sprzedaży domu: Zobacz kontakt503-604-108
Pośrednik odpowiedzialny zawodowo za wykonanie umowy pośrednictwa: Mieszko Pacanowski (licencja nr: 21215)
Oferta wysłana z systemu Galactica Virgo
Ogrzewanie: Gazowe
Materiał: Pustak

Kontakt do agenta:
Mieszko Pacanowski
Zobacz kontaktmieszko@pacanowscy.pl
Zobacz kontakt504-112-605
Zobacz kontakt503-604-108

Oceń ofertę


0


421 wydruk błąd schowek

Ostatnio przeglądane

 

 

 

pobieranie

Pobierz wzór umowy

Umowa przedwstępna sprzedaży

wybierz plik do pobrania
doc pdf

 

 

Deweloperzy

);