Prosimy, odblokuj wyświetlanie reklam w naszym serwisie, są one związane z rynkiem nieruchomości.
To dzięki nim masz darmowy dostęp do naszych treści.

Z pozdrowieniami zespół KRN.pl :)


telefon

wiadomość

mapa

Mieszkanie, Warszawa

Mieszkanie na sprzedaż Warszawa (woj. Mazowieckie)

Lokalizacja:

Warszawa, , ul.

Powierzchnia:

91.00 m2

Cena:

950 000 zł

Dane szczegółowe

lokalizacja:
Mazowieckie, Warszawa
typ obiektu:
mieszkanie na sprzedaż
cena:
950 000 zł
pokoi:
3
piętro:
parter
ilość pięter w budynku:
4
powierzchnia:
91.00 m2
media:
prąd, gaz, woda
numer ogłoszenia:
19923
data dodania:
22-08-2025
data modyfikacji:
13-11-2025
jakość wypełnienia oferty:
82%

Szczegóły oferty



Apartament w zabudowie szeregowej na Wawrze, idealny dla rodziny

WE SPEAK ENGLISH - PLEASE DO NOT HESITATE TO CONTACT US

Hamilton May ma przyjemność przedstawić Państwu ofertę sprzedaży apartamentu w zabudowie szeregowej zlokalizowanego na Wawrze, idealnego dla rodziny.

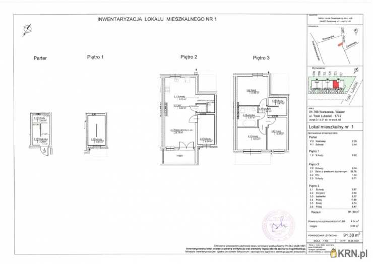
Szczegóły nieruchomości: Powierzchnia: 91 m˛Parter: Wiatrołap oraz klatka schodowaPierwsze piętro: Klatka schodowa.Drugie piętro: Salon z aneksem kuchennym i wyjściem na loggię, toaleta gościnna, schody na trzecie piętro.Trzecie piętro: Trzy pokoje sypialniane oraz przestronna łazienka.Stan: Mieszkanie jest świeżo wykończone i gotowe do własnej aranżacji.Ogrzewanie: Niezależny gazowy kocioł grzewczy pozwalający na indywidualne dostosowanie komfortu cieplnego i eliminujący problemy z rozliczaniem kosztów gazu.

Lokal wchodzi w skład nowego budynku w zabudowie szeregowej mieszczącej 12 lokali mieszkalnych. Budynek został oddany do użytku 2022 roku.

Nieruchomość usytuowana w zacisznej, kameralnej uliczce. Okolica domu świetnie się rozwija oferując
mieszkańcom coraz większe możliwości oraz komfort, w pobliżu również znajdziemy szkoły, restauracje, sklepy, apteki czy trasę szybkiego ruchu.

Cena 950 000 PLN zawiera
miejsce parkingowe zewnętrzne

Wszystkich zainteresowanych powyższą ofertą serdecznie zapraszamy do kontaktu z biurem Hamilton May

Numer oferty: 19923

Niniejsze ogłoszenie ma charakter wyłącznie informacyjny i nie stanowi oferty handlowej w rozumieniu art. 66 §1 Kodeksu cywilnego.

Ogrzewanie: Gazowe

Informacje dodatkowe:
KUCHNIA:
aneks kuchenny
Parking: Jest
Internet: Jest

Kontakt do agenta:
Hamilton May Warszawa
Zobacz kontakt22 243 77 21
Zobacz kontaktwarsaw@hamiltonmay.com

Oceń ofertę


3


220 wydruk błąd schowek

Ostatnio przeglądane

 

 

 

pobieranie

Pobierz wzór umowy

Umowa przedwstępna sprzedaży

wybierz plik do pobrania
doc pdf

 

 

Deweloperzy

);