Prosimy, odblokuj wyświetlanie reklam w naszym serwisie, są one związane z rynkiem nieruchomości.
To dzięki nim masz darmowy dostęp do naszych treści.

Z pozdrowieniami zespół KRN.pl :)


telefon

wiadomość

mapa

Mieszkanie, Kraków, Bieżanów-Prokocim/Prokocim

Mieszkanie na sprzedaż Kraków (woj. Małopolskie), Bieżanów-Prokocim/Prokocim

Lokalizacja:

Kraków, Bieżanów-Prokocim/Prokocim, ul.

Powierzchnia:

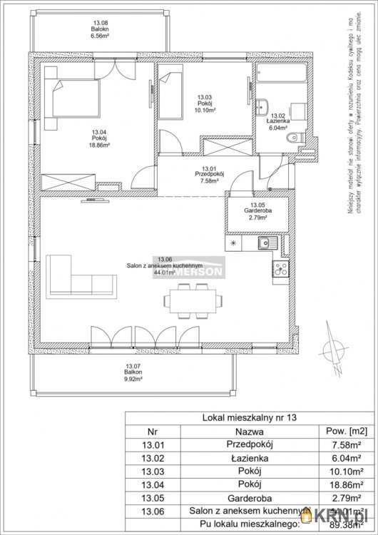
89.38 m2

Cena:

1 349 638 zł

Dane szczegółowe

lokalizacja:
Małopolskie, Kraków, Bieżanów-Prokocim/Prokocim
typ obiektu:
mieszkanie na sprzedaż
cena:
1 349 638 zł
pokoi:
3
piętro:
3
ilość pięter w budynku:
3
powierzchnia:
89.38 m2
powierzchnia dodatkowa:
balkon
numer ogłoszenia:
33935/6342/OMS
data dodania:
02-12-2025
data modyfikacji:
05-12-2025
jakość wypełnienia oferty:
82%

Szczegóły oferty

Nowa inwestycja mieszkaniowa w Prokocimiu.

Kameralny trzypiętrowy budynek z windą, zaledwie 13 mieszkań. Realizacja prac budowlanych w IV kw 2025, odbiór II kw 2026 roku.

Mieszkanie na ostatnim piętrze z dwoma balkonami. Dwie sypialni z możliwością wydzielenia dodatkowej, duża łazienka, garderoba. Przestronny 45-metrowy salon, część dzienna świetnie doświetlona od południa i zachodu. Wyjście na ogród ze wszystkich pokoi za wyjątkiem najmniejszego. Łazienka i dodatkowo oddzielne wc. Ekspozycja południe, zachód i północ.

Ogrzewanie i ciepła woda centralne z kotłowni gazowej. Mieszkanie w stanie deweloperskim rozszerzonym o klimatyzację wraz z urządzeniami w standardzie, w całym mieszkaniu ogrzewanie podłogowe. Obligatoryjny zakup miejsca postojowego w garażu podziemnym od 45.000 do 55.000.

Świetnie skomunikowana okolica, 200 metrów do przystanku autobusowego przy Bieżanowskiej, 600 metrów do tramwaju przy Wielickiej, 700 metrów do stacji kolei aglomeracyjnej Kraków-Prokocim. Kompletna infrastruktura handlowa i usługowa w zasięgu spaceru, również liczne tereny zielone. Park Jerzmanowskich 400 metrów, Park Lilli Wenedy 600 metrów, kąpielisko Bagry 1100 metrów.

Zapraszam na prezentację.

Zapraszam do zapoznania się z naszą ofertą kredytową oraz wykończenia wnętrz.

Opiekun oferty: Michał Malina
______________

Powyższa oferta ma charakter informacyjny i nie stanowi oferty handlowej w rozumieniu art. 66 par. 1 Kodeksu Cywilnego oraz innych właściwych przepisów prawnych.



Oferta wysłana z programu dla biur nieruchomości ASARI CRM (asaricrm.com)



Kontakt:
Numer telefonu: Zobacz kontakt516000907
Adres email: Zobacz kontaktmichal.malina@emmerson.pl
Numer licencji pośrednika:

Oceń ofertę


3


204 wydruk błąd schowek

Ostatnio przeglądane

 

 

 

pobieranie

Pobierz wzór umowy

Umowa przedwstępna sprzedaży

wybierz plik do pobrania
doc pdf

 

 

Deweloperzy

);