Prosimy, odblokuj wyświetlanie reklam w naszym serwisie, są one związane z rynkiem nieruchomości.
To dzięki nim masz darmowy dostęp do naszych treści.

Z pozdrowieniami zespół KRN.pl :)


telefon

wiadomość

mapa

Mieszkanie, Gdynia, Śródmieście, ul. A. Abrahama

Mieszkanie na sprzedaż Gdynia (woj. Pomorskie), Śródmieście, ul. A. Abrahama

Lokalizacja:

Gdynia, Śródmieście, ul. A. Abrahama

Powierzchnia:

85.10 m2

Cena:

1 350 000 zł

Dane szczegółowe

lokalizacja:
Pomorskie, Gdynia, Śródmieście, ul. A. Abrahama
typ obiektu:
mieszkanie na sprzedaż
cena:
1 350 000 zł
pokoi:
4
piętro:
1
ilość pięter w budynku:
4
powierzchnia:
85.10 m2
powierzchnia dodatkowa:
balkon, piwnica
numer ogłoszenia:
FO012536
data dodania:
20-09-2025
data modyfikacji:
20-09-2025
jakość wypełnienia oferty:
88%

Szczegóły oferty

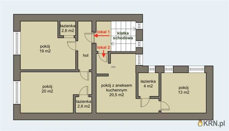
Polecamy do sprzedaży prosperujący biznes w sercu Gdyni - dwa apartamenty inwestycyjne przy ul. Abrahama Na sprzedaż wyjątkowa nieruchomość inwestycyjna położona w samym centrum Gdyni, tuż przy Skwerze Kościuszki - jednej z najbardziej pożądanych lokalizacji Trójmiasta. Oferta obejmuje dwa niezależne, w pełni wyposażone apartamenty, przygotowane zarówno do najmu krótko-, jak i długoterminowego. Nieruchomość znajduje się na pierwszym piętrze zadbanej, przedwojennej kamienicy w bardzo dobrym stanie technicznym. Budynek zachwyca charakterem i klimatem, a jednocześnie oferuje wygodę miejskiego życia - w zasięgu kilku minut spacerem znajdują się plaża miejska, skwer, bulwar nadmorski, liczne restauracje, kawiarnie, sklepy, usługi oraz komunikacja miejska. Układ nieruchomości: Apartament 1 - o powierzchni 40 m2, składający się z przytulnej sypialni, nowoczesnej łazienki oraz salonu z aneksem kuchennym, w pełni wyposażonym w sprzęt AGD. Idealny na wynajem dla pary lub jednej osoby. Apartament 2 - o powierzchni 45 m2, oferuje dwie niezależne sypialnie, każda z własną łazienką. Dodatkowo w korytarzu znajduje się przestronna szafa. Doskonała opcja dla grupy znajomych, rodziny lub najmu korporacyjnego. Oba apartamenty są w bardzo dobrym stanie technicznym i wizualnym, gotowe do natychmiastowego wynajmu. Nieruchomość sprzedawana jest z pełnym wyposażeniem, co czyni tę ofertę idealną propozycją dla inwestora szukającego gotowego produktu inwestycyjnego, generującego dochód od pierwszego dnia. Mieszkania zaprojektowano z dbałością o każdy szczegół, w stylistyce morskiej podkreślającej położenie nieruchomości. Do wykończenia użyto wysokiej jakości materiałów. Blaty podumywalkowe w łazienkach wykonano z marmuru, nowa stolarka okienna, drzwiowa, całkowicie wymieniona instalacja elektryczna i wodno-kanalizacyjna. Ogrzewanie miejskie, do nieruchomości przynależy piwnica, wydanie do uzgodnienia. Atuty nieruchomości: Topowa lokalizacja w centrum Gdyni, W pełni wyposażone i umeblowane apartamenty, Doskonała baza pod inwestycję w najem krótkoterminowy (booking, airbnb) lub długoterminowy kamienica z klimatem Gotowy biznes - brak nakładów inwestycyjnych Zapraszamy do kontaktu - ta nieruchomość to rzadko spotykana okazja w sercu Gdyni!

Kontakt do agenta:
Imię: Danka
Nazwisko: Hanuszewska
Numer telefonu: Zobacz kontakt503 140 480; Zobacz kontakt58 660 07 07 Kom: Zobacz kontakt503 140 480
Adres email: Zobacz kontaktdanka.hanuszewska@forumgdynia.pl
Numer licencji pośrednika: 5253

Oceń ofertę


3


290 wydruk błąd schowek

Ostatnio przeglądane

 

 

 

pobieranie

Pobierz wzór umowy

Umowa przedwstępna sprzedaży

wybierz plik do pobrania
doc pdf

 

 

Deweloperzy

);