Prosimy, odblokuj wyświetlanie reklam w naszym serwisie, są one związane z rynkiem nieruchomości.
To dzięki nim masz darmowy dostęp do naszych treści.

Z pozdrowieniami zespół KRN.pl :)


telefon

wiadomość

mapa

Mieszkanie, Kielce

Mieszkanie na sprzedaż Kielce (woj. Świętokrzyskie)

Lokalizacja:

Kielce, , ul.

Powierzchnia:

83.81 m2

Cena:

737 528 zł

Dane szczegółowe

lokalizacja:
Świętokrzyskie, Kielce
typ obiektu:
mieszkanie na sprzedaż
cena:
737 528 zł
pokoi:
4
piętro:
parter
powierzchnia:
83.81 m2
numer ogłoszenia:
PRP-MS-73792
data dodania:
26-09-2024
data modyfikacji:
20-09-2025
jakość wypełnienia oferty:
70%

Szczegóły oferty


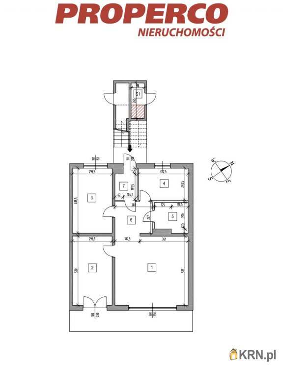
Nowoczesny apartament o powierzchni użytkowej
83,81 m2,
wraz z ogródkiem i tarasem , zlokalizowany w Kielcach-Maciejówce.
Mieszkanie znajduje się
na parterze nowego budynku, usytuowanego na kameralnym osiedlu domów w zabudowie szeregowej, w pobliżu terenów zielonych. W trosce o komfort i bezpieczeństwo mieszkańców teren będzie ogrodzony, monitorowany całodobowo przy pomocy systemu kamer.

W skład mieszkania wchodzą:
- salon z aneksem kuchennym 28,47 m²,
- sypialnia/pokój 14,59 m2,
- sypialnia/pokój 15,51 m2,
- sypialnia/pokój 8,95 m2
- łazienka 5,43 m2,
- hol 7,12 m2,
- wiatrołap 3,74 m2.

Do każdego lokalu przynależy naziemne miejsce parkingowe w cenie mieszkania. Każdy lokal będzie wyposażony w kocioł gazowy kondensacyjny do podgrzania wody użytkowej i na potrzeby centralnego ogrzewania.
Termin zakończenia inwestycji:
II kwartał 2024 r.

Osiedle składa się z trzydziestu apartamentów w zabudowie szeregowej, z funkcjonalnymi rozkładami pomieszczeń. Budynki zaprojektowane zostały w sposób ułatwiający dostęp do nich osobom niepełnosprawnym.
Duże tarasy przynależne do mieszkań na kondygnacji pierwszej oraz przestronne ogródki znajdujące się na parterze tworzą urokliwe, prywatne miejsca do odpoczynku i relaksu. Ciepły wizerunek osiedla jest zasługą odpowiedniego doboru materiałów elewacyjnych i ich kolorów. Na elewacjach dominują biele i brązy tynków. Zapraszamy do kontaktu z naszym agentem.
Adres strony internetowej, o którym mowa w art. 19a ust. 3 ustawy z dnia 20 maja 2021 r. o ochronie praw nabywcy lokalu mieszkalnego lub domu jednorodzinnego oraz Deweloperskim Funduszu Gwarancyjnym to pbumroz(kropka)pl
Adres strony został ujęty fonetycznie.

>>Kupujący zwolniony z kosztów obsługi biura i podatku PCC<<

Dane kontaktowe do agenta: Jacek Kotlarz, tel: Zobacz kontakt888 889 441, e-mail:
Zobacz kontaktjacek.kotlarz@properco.pl
For more information in English please call: Zobacz kontakt888 889 441, e-mail:
Zobacz kontaktjacek.kotlarz@properco.pl
--------------------------
Biuro Nieruchomości PROPERCO sp. z o.o. sp.k. współpracuje z doświadczonymi specjalistami finansowymi, oferującymi sprawdzenie zdolności kredytowej oraz przedstawienie oferty finansowania nieruchomości / Informacje dotyczące opisu nieruchomości podane są przez właściciela, mają charakter wyłącznie informacyjny i mogą podlegać aktualizacji. Oferta dotycząca nieruchomości nie stanowi oferty określonej w art. 66 i następnych KC. Nasze usługi świadczymy w oparciu o umowę pośrednictwa, która gwarantuje Państwu opiekę naszego doradcy przez cały okres trwania współpracy. Za wykonaną usługę pobieramy wynagrodzenie zgodnie z warunkami uzgodnionymi w zawartej umowie /// The real estate agency PROPERCO sp. z o.o. sp.k. collaborates with experienced financial specialists, offering creditworthiness assessment and presenting property financing offers. Information regarding property descriptions is provided by the owner, is purely informational, and may be subject to updates. The property offer does not constitute a specific offer as defined in Art. 66 and subsequent articles of the Civil Code. Our services are provided based on a brokerage agreement, ensuring you the care of our advisor throughout the entire collaboration period. We charge a fee for the services rendered according to the terms agreed upon in the concluded agreement.
Zapraszamy do siedziby naszego biura w Kielcach przy ul. Koziej 3a/1. /// We invite you to visit our office located in Kielce at 3a/1 Kozia Street.
Dane adresowe /// Address details:
PROPERCO sp. z o.o. sp.k ul. Kozia 3a/1 25-514 Kielce tel. kom: + Zobacz kontakt48 692-024-827 https://www.properco.pl/

Ogrzewanie: Gazowe

Kontakt do agenta:
Jacek Kotlarz
Zobacz kontaktjacek.kotlarz@properco.pl
+ Zobacz kontakt48 41 310 90 71
+ Zobacz kontakt48 888 889 441

Oceń ofertę


3


650 wydruk błąd schowek

Ostatnio przeglądane

 

 

 

pobieranie

Pobierz wzór umowy

Umowa przedwstępna sprzedaży

wybierz plik do pobrania
doc pdf

 

 

Deweloperzy

);