Prosimy, odblokuj wyświetlanie reklam w naszym serwisie, są one związane z rynkiem nieruchomości.
To dzięki nim masz darmowy dostęp do naszych treści.

Z pozdrowieniami zespół KRN.pl :)


telefon

wiadomość

mapa

Mieszkanie, pow. Poznański

Mieszkanie na sprzedaż pow. Poznański (woj. Wielkopolskie)

Lokalizacja:

pow. Poznański, , ul.

Powierzchnia:

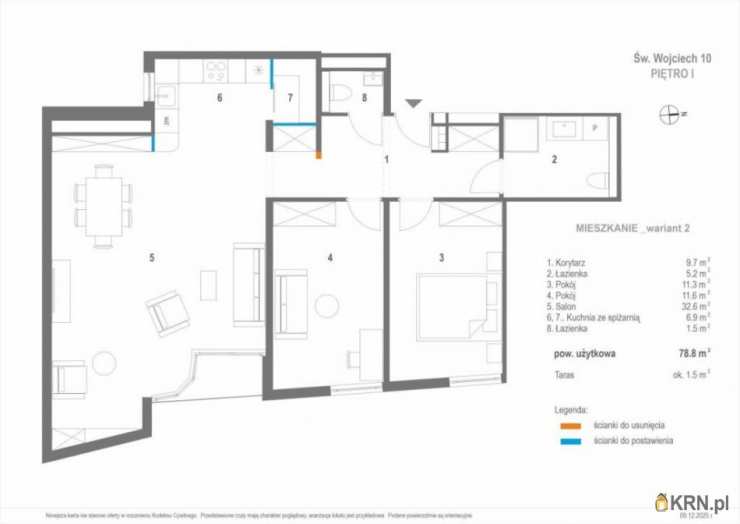
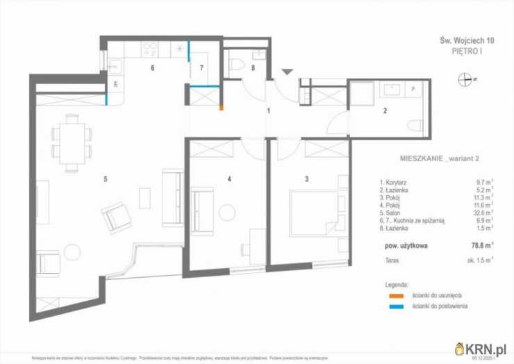
78.80 m2

Cena:

899 000 zł

Dane szczegółowe

lokalizacja:
Wielkopolskie, pow. Poznański
typ obiektu:
mieszkanie na sprzedaż
cena:
899 000 zł
pokoi:
3
piętro:
1
ilość pięter w budynku:
4
powierzchnia:
78.80 m2
powierzchnia dodatkowa:
balkon
media:
prąd, gaz, woda
numer ogłoszenia:
55560868
data dodania:
14-12-2025
data modyfikacji:
15-12-2025
jakość wypełnienia oferty:
70%

Szczegóły oferty

Przedstawione wizualizacje nie stanowią oferty w rozumieniu Kodeksu cywilnego. ~~Przedstawiamy wyjątkową ofertę sprzedaży eleganckiego mieszkania położonego w prestiżowej i spokojnej dzielnicy na Wzgórzu Św. Wojciecha w Poznaniu. Ta nieruchomość znajduje się w samym sercu miasta, zaledwie kilka minut spaceru od urokliwego Starego Rynku, co czyni ją idealnym wyborem dla osób ceniących komfort, wysoką jakość życia oraz doskonałą lokalizację. ~~ Wnętrza tego apartamentu zostały starannie zaprojektowane i wizualizowane przez doświadczonego architekta wnętrz, na podstawie dokładnych pomiarów. Efektem jest elegancka i harmonijna aranżacja, którą można w pełni przejąć i zrealizować według przedstawionych wizji, zapewniając sobie stylowy i funkcjonalny wystrój od razu po zakupie. ~~Lokalizacja to prawdziwy atut tej nieruchomości. Zaledwie kilka minut spaceru dzieli mieszkanie od Starego Rynku, muzeów, restauracji, sklepów, punktów usługowych oraz Parku Cytadela. Doskonała komunikacja miejska zapewnia szybki dostęp do kluczowych instytucji, takich jak sądy, prokuratura, Urząd Miasta czy Uniwersytet SWPS, co czyni tę ofertę jeszcze bardziej atrakcyjną. ~~Mieszkanie o powierzchni 78,80 m znajduje się na pierwszym piętrze kameralnego budynku z windą oraz podziemną halą garażową. W budynku dominują biura i kancelarie prawne, co dodatkowo podkreśla prestiż i ekskluzywność okolicy. W skład nieruchomości wchodzi: ~~ - przestronny salon z aneksem kuchennym,~~ - dwa niezależne, komfortowe pokoje,~~ - funkcjonalna łazienka i osobne WC,~~ - praktyczny korytarz.~~Cena tej wyjątkowej nieruchomości to 899.000,00 zł. Dla zainteresowanych dostępne jest również wykupienie miejsca parkingowego w hali garażowej, posiadającego odrębną księgę wieczystą, co zapewnia wygodę i bezpieczeństwo. ~~Mieszkanie jest dostępne od zaraz, gotowe do wprowadzenia lub adaptacji według własnych potrzeb, co czyni tę ofertę jeszcze bardziej atrakcyjną. ~~Nie zwlekaj! Skontaktuj się z nami już dziś: ~~Szymon Hełpa, tel. Zobacz kontakt608 295 703 ~~E-mail: Zobacz kontaktszymon.helpa@nieruchomosciwielkopolski.pl ~~To nieruchomość, która spełni oczekiwania nawet najbardziej wymagających! ~~~

Oceń ofertę


9.99


576 wydruk błąd schowek

Ostatnio przeglądane

 

 

 

pobieranie

Pobierz wzór umowy

Umowa przedwstępna sprzedaży

wybierz plik do pobrania
doc pdf

 

 

Deweloperzy

);