Prosimy, odblokuj wyświetlanie reklam w naszym serwisie, są one związane z rynkiem nieruchomości.
To dzięki nim masz darmowy dostęp do naszych treści.

Z pozdrowieniami zespół KRN.pl :)


telefon

wiadomość

mapa

Mieszkanie, Kraków, Bronowice/Bronowice Małe, ul. Armii Krajowej

Mieszkanie na sprzedaż Kraków (woj. Małopolskie), Bronowice/Bronowice Małe, ul. Armii Krajowej

Lokalizacja:

Kraków, Bronowice/Bronowice Małe, ul. Armii Krajowej

Powierzchnia:

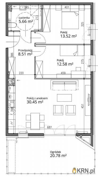
70.69 m2

Cena:

1 131 040 zł

Dane szczegółowe

lokalizacja:
Małopolskie, Kraków, Bronowice/Bronowice Małe, ul. Armii Krajowej
typ obiektu:
mieszkanie na sprzedaż
cena:
1 131 040 zł
pokoi:
3
piętro:
parter
ilość pięter w budynku:
3
powierzchnia:
70.69 m2
media:
woda
numer ogłoszenia:
BS2-MS-309639-48
data dodania:
13-02-2026
data modyfikacji:
13-02-2026
jakość wypełnienia oferty:
88%

Szczegóły oferty



Apartamenty zlokalizowane będą w bliskim sąsiedztwie terenów zielonych i rekreacyjnych oraz w niedalekiej odległości od centrum miasta. Nowoczesna zabudowa, z dobrym dostępem do infrastruktury, wpisze się w okoliczny krajobraz i sprawi, że osiedle stanie się przyjemnym miejscem dla ceniących prywatność mieszkańców.
Wysoki standard. Wysoka jakość wykończenia i materiałów, estetyczne części wspólne, przestrzeń. Prywatna siłownia ze strefą do jogi, własna tężnia solankowa, portiernia.
Kameralne sąsiedztwo ukryte na uboczu osiedle, optymalna ilość mieszkań w budynku i na piętrze dają kameralną, domową atmosferę i poczucie intymności.
Mieszkania od 42 do 113 m2; 2, 3 lub 4 pokoje;
Tarasy do 55m2, ogródki do 116 m2.
Widok, otoczenie i zieleń: Park Jordana - Ponad 20 ha zabytkowego parku w odległości 2 km. Boiska, place zabaw, miasteczko rowerowe i punkty gastronomiczne.
Błonia Krakowskie - 1 km do Błoń. Wybierz spacer, rolki, piknik, klub tenisowy, ulubioną restauracje. A co najlepsze - dotrzesz tu w 15 minut pieszo.
Las Wolski - 12 minut do ZOO, Młynówka Królewska, Rudawa i jej ścieżki spacerowe oraz widok na Kopiec Kościuszki.
Termin realizacji: IV kwartał 2023 r.
::DODATKOWE INFORMACJE
Rodzaj budynku: budynek wielorodzinny Dozór budynku: monitoring Głośność: średnio głośne Widok: na osiedle Gaz: brak Woda: tak - miejska Dojazd: asfalt Otoczenie: działki zabudowane Ogrzewanie: miejskie Linie telefoniczne: TAK Komunikacja publ.: autobus Winda: TAK Liczba wind: 1 Rozkład: rozkładowe Usytuowanie: dwustronne Drzwi antywłamaniowe: TAK Opłaty w czynszu: - Rodzaj mieszkania: jednopoziomowe Garaż: możliwość kupna Stan lokalu: deweloperski Okna: PCV Instalacje: nowe Rok budowy: 2022 Liczba pokoi: 3 Liczba sypialni: 1 Podłogi pokoi: wylewka Ściany pokoi: zwykłe Typ kuchni: aneks kuchenny - połączony z salonem Rodzaj kuchni: otwarta na salon Podłoga kuchni: wylewka Typ łazienki: razem z wc Liczba łazienek: 1 Glazura łazienki: bez glazury Podłoga łazienki: wylewka Ściany łazienki: zwykłe Liczba przedpokoi: 1 Podłoga przedpokoi: wylewka Ściany przedpokoi: zwykłe
::LINK DO STRONY
https://sadurscy.pl/offer/BS2-MS-309639
::KONTAKT DO AGENTA
Marek Popiela + Zobacz kontakt48 518-967-677 Zobacz kontaktmarek@sadurscy.pl
::DANE BIURA
Oddział BS2, Rynek Pierwotny Przewóz
47 30-081 Kraków Zobacz kontakt12 630-90-45
--------------------------
::GRATIS | Nasza prowizja zawiera: koszt przedwstępnej notarialnej umowy sprzedaży nieruchomości z rynku wtórnego. ::GWARANCJA | Gwarancja zwrotu zadatku. Więcej informacji na sadurscy.pl/zwrot-zadatku/

Ogrzewanie: Miejskie

Kontakt do agenta:
Marek Popiela
Zobacz kontaktmarek@sadurscy.pl
+ Zobacz kontakt48 518-967-677

Oceń ofertę


0


2 wydruk błąd schowek

Ostatnio przeglądane

 

 

 

pobieranie

Pobierz wzór umowy

Umowa przedwstępna sprzedaży

wybierz plik do pobrania
doc pdf

 

 

Deweloperzy

);