Prosimy, odblokuj wyświetlanie reklam w naszym serwisie, są one związane z rynkiem nieruchomości.
To dzięki nim masz darmowy dostęp do naszych treści.

Z pozdrowieniami zespół KRN.pl :)


telefon

wiadomość

mapa

Mieszkanie, Kraków, Czyżyny, ul. Dywizjonu 303

Mieszkanie na sprzedaż Kraków (woj. Małopolskie), Czyżyny, ul. Dywizjonu 303

Lokalizacja:

Kraków, Czyżyny, ul. Dywizjonu 303

Powierzchnia:

63.30 m2

Cena:

790 000 zł

Dane szczegółowe

lokalizacja:
Małopolskie, Kraków, Czyżyny, ul. Dywizjonu 303
typ obiektu:
mieszkanie na sprzedaż
cena:
790 000 zł
pokoi:
3
piętro:
5
ilość pięter w budynku:
10
powierzchnia:
63.30 m2
powierzchnia dodatkowa:
balkon, piwnica
numer ogłoszenia:
BS4-MS-312791-8
data dodania:
07-02-2026
data modyfikacji:
07-02-2026
jakość wypełnienia oferty:
94%

Szczegóły oferty

|
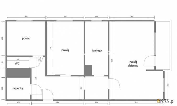
Czyżyny - 3 pokoje | 63,3 m² | balkon | piwnica Biuro Nieruchomości Bracia Sadurscy ma przyjemność zaprezentować przestronne i funkcjonalne mieszkanie o powierzchni
63,3 m² , położone na osiedlu
Dywizjonu 303 , tuż przy parku im. gen. Stanisława Skalskiego.

Atuty nieruchomości: 3 ustawne, jasne pokoje

oddzielna, widna kuchnia

łazienka oraz osobna toaleta

przestronny przedpokój z miejscem do przechowywania

duży balkon z widokiem na zieleń

dodatkowo piwnica o pow. 2,3 m² Mieszkanie znajduje się na
5. piętrze zadbanego bloku z lat 80.
(technologia wielkopłytowa). Budynek jest w dobrym stanie technicznym, otoczony zielenią i alejkami spacerowymi. Ogrzewanie oraz ciepła woda pochodzą z sieci miejskiej - brak piecyków gazowych.

Lokalizacja:

Nieruchomość położona w doskonale skomunikowanej części Czyżyn: w pobliżu
CH Czyżyny
i
CH Serenada , liczne sklepy i punkty usługowe

w odległości kilkuset metrów szkoła podstawowa, przedszkole oraz zespół szkół ogólnokształcących

w sąsiedztwie kampusy
Politechniki Krakowskiej
i
AWF
oraz centrum technologiczne
Comarch tereny rekreacyjne:
Park Skalskiego
i
Park Lotników
- idealne miejsce na spacery i aktywny wypoczynek Komunikacja:

Zaledwie
400 m do przystanków autobusowych os. Na Lotnisku , skąd szybki i wygodny dojazd do centrum miasta oraz innych dzielnic Krakowa.

To mieszkanie to idealna propozycja zarówno dla rodzin, jak i inwestorów szukających atrakcyjnej nieruchomości w świetnej lokalizacji. RZUT W OFERCIE MA CHARAKTER POGLĄDOWY Kontakt:

Anna Antczak

Telefon: + Zobacz kontakt48 518-967-863
E-mail:
Zobacz kontaktania@sadurscy.pl

Serdecznie zapraszamy do kontaktu i umówienia się na prezentację nieruchomości. Prezentacja jest bezpłatna po podpisaniu umowy pośrednictwa.

Zapraszamy na prezentację!
::DODATKOWE INFORMACJE |
Rodzaj budynku: blok |
Dozór budynku: tak - jest |
Głośność: ciche |
Widok: na osiedle |
Gaz: jest |
Woda: ciepła - miejska |
Dojazd: asfalt |
Otoczenie: osiedle |
Ogrzewanie: C.O. miejskie |
Komunikacja publ.: miejska, bus, tramwaj, autobus |
Winda: TAK |
Liczba wind: 2 |
Rozkład: jednostronne rozkładowe |
Usytuowanie: jednostronne |
Opłaty w czynszu: wywóz śmieci, wywóz nieczystości, woda ciepła, Winda, sprzątanie, fundusz remontowy, Części wspólne, CO, administracja |
Opłaty wg liczników: prąd |
Garaż: brak |
Piwnica: TAK |
Stan lokalu: do remontu |
Okna: PCV |
Instalacje: dobre |
Balkon: duży |
Liczba balkonów: 1 |
Powierzchnia użytkowa [m2]: 63,3000 |
Rok budowy: 1985 |
Liczba pokoi: 3 |
Wysokość pomieszczeń [m]: 2,5000 |
Liczba sypialni: 3 |
Powierzchnia pokoi [m2]: 21,
11,5,
7,7 |
Podłogi pokoi: parkiet |
Ściany pokoi: zwykłe |
Typ kuchni: oddzielna |
Rodzaj kuchni: kuchnia jasna, osobno |
Powierzchnia kuchni [m2]: 7 |
Podłoga kuchni: płytki PCV |
Typ łazienki: osobno z wc |
Liczba łazienek: 1 |
Powierzchnia łazienki [m2]: 3 |
Glazura łazienki: glazura |
Podłoga łazienki: płytki PCV |
Wyposażenie łazienki: wanna, umywalka, pralka, lustro |
Ściany łazienki: glazura |
Liczba WC: 1 |
Powierzchnia WC: 1.4 |
Glazura WC: glazura |
Podłoga WC: płytki PCV |
Ściany WC: glazura, boazeria |
Liczba przedpokoi: 1 |
Powierzchnia przedpokoi [m2]: 9,7 |
Podłoga przedpokoi: parkiet |
Ściany przedpokoi: boazeria |
::LINK DO STRONY |
sadurscy.pl/offer/BS4-MS-312791
Zobacz Wirtualny Spacer: https://my.matterport.com/show/?m=1C5Y7D94t9s
::KONTAKT DO AGENTA |
Anna Antczak |
+ Zobacz kontakt48 518-967-863 |
Zobacz kontaktania@sadurscy.pl
::DANE BIURA |
Oddział BS4, Krowodrza |
Kołowa 5/3 |
30-134 Kraków |
Zobacz kontakt12 633-90-20
Pośrednik odpowiedzialny zawodowo za wykonanie umowy pośrednictwa: Dariusz Sadurski (licencja nr: 803)
|
Oferta wysłana z systemu Galactica Virgo
Ogrzewanie: Miejskie

Kontakt do agenta:
Anna Antczak
Zobacz kontaktania@sadurscy.pl
+ Zobacz kontakt48 518-967-863

Oceń ofertę


0


11 wydruk błąd schowek

Ostatnio przeglądane

 

 

 

pobieranie

Pobierz wzór umowy

Umowa przedwstępna sprzedaży

wybierz plik do pobrania
doc pdf

 

 

Deweloperzy

);