Prosimy, odblokuj wyświetlanie reklam w naszym serwisie, są one związane z rynkiem nieruchomości.
To dzięki nim masz darmowy dostęp do naszych treści.

Z pozdrowieniami zespół KRN.pl :)


telefon

wiadomość

mapa

Mieszkanie, Siechnice

Mieszkanie na sprzedaż Siechnice (woj. Dolnośląskie)

Lokalizacja:

Siechnice, , ul.

Powierzchnia:

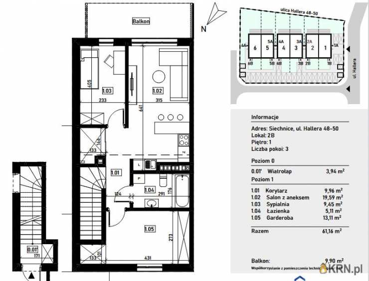
61.16 m2

Cena:

610 575 zł

Dane szczegółowe

lokalizacja:
Dolnośląskie, Siechnice
typ obiektu:
mieszkanie na sprzedaż
cena:
610 575 zł
pokoi:
3
piętro:
1
ilość pięter w budynku:
1
powierzchnia:
61.16 m2
powierzchnia dodatkowa:
balkon, taras, piwnica
numer ogłoszenia:
1860-15
data dodania:
26-04-2026
data modyfikacji:
26-04-2026
jakość wypełnienia oferty:
76%

Szczegóły oferty


REZERWACJA OFERTY

Chcielibyśmy poinformować o promocji na naszej inwestycji Przystań Siechnice.

Obowiązuje od dnia 23-03-2026 do 30-04-2026r.

Każdy klient, który podpisze umowę w tym czasie ( może być rezerwacyjna), otrzyma od Nas wyposażenie balkonu w cenie. Wartość wyposażenia ok 10 000 zł

Wyjątkowa inwestycja, która oferuje swoim mieszkańcom nie tylko komfortowe mieszkanie, ale także wysoki standard życia. Położona w spokojnych Siechnicach, z dala od miejskiego zgiełku, zapewnia jednocześnie łatwy dostęp do wszelkich udogodnień. Dzięki przemyślanej architekturze i zastosowaniu wysokiej jakości materiałów mieszkania są nie tylko piękne, ale również funkcjonalne. W otoczeniu znajduje się niska zabudowa głównie domów jednorodzinnych, a tereny otaczające inwestycję sprzyjają spacerowiczom, uprawianiu sportu oraz wszelkiej rekreacji na łonie natury, wzdłuż rzeki i tuż przy zbiorniku wodnym – znanej w okolicy Błękitnej Lagunie.

Prezentowane mieszkanie ma powierzchnię 61,16m2 i znajduje się na pierwszym piętrze w dwukondygnacyjnym budynku a jego główne cechy to- salon z aneksem kuchennym o powierzchni 19,59m2 z wyjściem na duży balkon o powierzchni 9,90m2, 2 sypialni o powierzchniach 13,11m2 i 9,45m2 , korytarz o powierzchni 9,96m2, wiatrołap o powierzchni 3,94m2 oraz łazienka o powierzchni 5,11m2.

• Ogrzewanie podłogowe na każdej kondygnacji

• Elektryczne rolety zewnętrzne

• Mieszkanie rozkładowe i dwustronne

• Dwa miejsca postojowe

• Sprawny dojazd do Wschodniej Obwodnicy Wrocławia, DK94 i autostrady A4.

• Sprawny dojazd do Wschodniej Obwodnicy Wrocławia, DK94 i autostrady A4.

• Doprowadzenie światłowodu do inwestycji

Termin realizacji inwestycji – 2026-02-28

Do każdego mieszkania przynależą dwa miejsca postojowe w cenie 5.000 zł (miejsce zależne) lub 10.000 zł (miejsce niezależne). Zakup miejsc postojowych jest obligatoryjny.

Zapraszam do kontaktu w celu przygotowania oferty / umówienia się na prezentacje – Kupujący nie płaci prowizji.

Zapewniam

- profesjonalną obsługę, gwarantowaną wieloletnim doświadczeniem w branży nieruchomości-możliwość bezpłatnej rezerwacji apartamentu

- kompleksowe wsparcie na każdym etapie transakcji

- gwarancję bezpiecznego zakupu

- oszczędność czasu

-pomoc w uzyskaniu kredytu na najlepszych warunkach

- kompleksowe doradztwo

Ania Kamuda- Doradca klienta

tel. Zobacz kontakt535 422 188

Zobacz kontaktanna.kamuda@elitare.pl

Nr oferty HG/PS/2B/AK

Zamieszczone na naszych stronach informacje nie stanowią oferty w rozumieniu Kodeksu Cywilnego, a dane w nich zawarte mają jedynie charakter informacyjny.

OFERTA CENOWA AKTUALNA NA DZIEŃ 25.04.2026 I OBOWIĄZUJE DO DNIA 25.04.2026

Oceń ofertę


0


25 wydruk błąd schowek

Ostatnio przeglądane

 

 

 

pobieranie

Pobierz wzór umowy

Umowa przedwstępna sprzedaży

wybierz plik do pobrania
doc pdf

 

 

Deweloperzy

);