Prosimy, odblokuj wyświetlanie reklam w naszym serwisie, są one związane z rynkiem nieruchomości.
To dzięki nim masz darmowy dostęp do naszych treści.

Z pozdrowieniami zespół KRN.pl :)


telefon

wiadomość

mapa

Mieszkanie, Gdańsk, Wrzeszcz Górny, ul. H. Sienkiewicza

Mieszkanie na sprzedaż Gdańsk (woj. Pomorskie), Wrzeszcz Górny, ul. H. Sienkiewicza

Lokalizacja:

Gdańsk, Wrzeszcz Górny, ul. H. Sienkiewicza

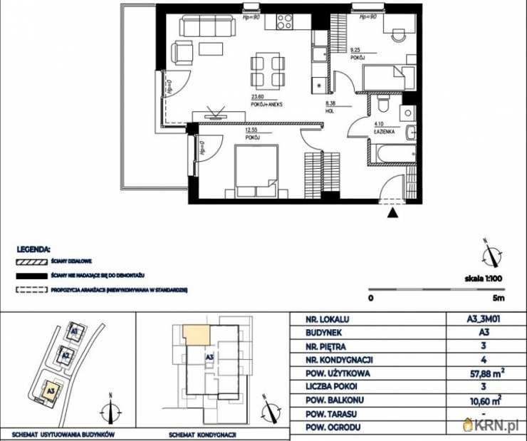
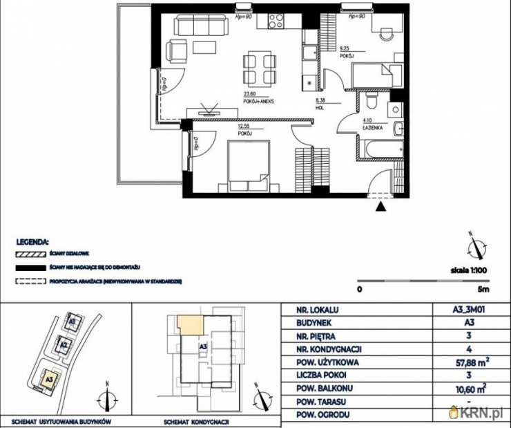
Powierzchnia:

57.88 m2

Cena:

590 318 zł

Dane szczegółowe

lokalizacja:
Pomorskie, Gdańsk, Wrzeszcz Górny, ul. H. Sienkiewicza
typ obiektu:
mieszkanie na sprzedaż
cena:
590 318 zł
pokoi:
3
piętro:
3
ilość pięter w budynku:
4
powierzchnia:
57.88 m2
numer ogłoszenia:
BS2-MS-291504-50
data dodania:
25-05-2024
data modyfikacji:
15-06-2024
jakość wypełnienia oferty:
82%

Szczegóły oferty


NOWA INWESTYCJA NA MAPIE GDAŃSKA
Mamy przyjemność przedstawić nową inwestycję, składającą się z
6 bloków wielorodzinnych . Zaledwie
4 kondygnacje
oraz
bliskość do zieleni
sprawia, że osiedle jest kameralne i wpłynie pozytywnie na komfort codziennego życia. Metraże zaczynają się od
30 m2 aż do 77 m2 . Dla Państwa wygody na terenie inwestycji przewidziany jest plac zabaw, hala garażowa i miejsca naziemne oraz komórki lokatorskie czy też wózkownie i rowerownia. Każdy lokal wyposażony jest w ogródek, taras lub balkon.
Niezwykle nowatorskim pomysłem są zaprojektowane
ogrody deszczowe , które wizualnie cieszą oko, a w letnie dni przynoszą ochłodzenie. O poczucie bezpieczeństwa zadbają
drzwi antywłamaniowe
oraz
videodomofony . Do budowy inwestycji zostały wykorzystane najlepszej jakości materiały. Istnieje możliwość dokupienia miejsca garażowego lub miejsca postojowego czy też komórki lokatorskiej.
W niedalekiej odległości lokali znajdziemy pełną infrastrukturę handlowo-usługową taką jak sklepy spożywcze, galerię handlową, siłownię czy sklep zoologiczny. Dla wygody rodzin z dziećmi w pobliżu znajdują się żłobki, przedszkola oraz szkoły. Bliskość do przystanków autobusowych na pewno przypadnie do gustu osobom niezmotoryzowanym i nie tylko.
Planowane zakończenie inwestycji: I KWARTAŁ 2024
Zapraszam na prezentację!
Opiekun Oferty: Arkadiusz Zemła
tel: Zobacz kontakt518-706-552
email: Zobacz kontaktarek@sadurscy.pl
::DODATKOWE INFORMACJE
Kategoria oferty: Mieszkania dla rodzin z dziećmi Rodzaj budynku: budynek wielorodzinny Dozór budynku: monitoring Głośność: ciche Plac zabaw: TAK Widok: na osiedle Gaz: brak Woda: jest Dojazd: asfalt Otoczenie: zabudowa wielorodzinna Ogrzewanie: miejskie Alarm: TAK Komunikacja publ.: tramwaj, autobus Odległość do komunikacji publicznej [m]: 850 Odl. do sklepu [m]: 1500 Odl. do szkoły [m]: 2200 Odl. do przedszkola [m]: 1500 Winda: TAK Rozkład: jednostronne Usytuowanie: jednostronne Drzwi antywłamaniowe: TAK Rodzaj mieszkania: jednopoziomowe Stan lokalu: deweloperski Okna: PCV Instalacje: ELEKTRYCZNA Balkon: jest Rok budowy: 2022 Liczba pokoi: 3 Liczba sypialni: 2 Podłogi pokoi: wylewka Ściany pokoi: zwykłe Rodzaj kuchni: otwarta na salon Podłoga kuchni: wylewka Typ łazienki: razem z wc Liczba łazienek: 1 Podłoga łazienki: wylewka Ściany łazienki: zwykłe Liczba WC: 1 Podłoga WC: wylewka Ściany WC: zwykłe Podłoga przedpokoi: wylewka Ściany przedpokoi: zwykłe
::LINK DO STRONY
https://sadurscy.pl/offer/BS2-MS-291504
::KONTAKT DO AGENTA
Michał Bańdo + Zobacz kontakt48 518-714-002 Zobacz kontaktmichal2@sadurscy.pl
::DANE BIURA
Oddział BS2, Rynek Pierwotny Królewska 67 30-081 Kraków Zobacz kontakt12 630-90-45
Pośrednik odpowiedzialny zawodowo za wykonanie umowy pośrednictwa: Michał Bańdo (licencja nr: 27635)
--------------------------
::GRATIS | Nasza prowizja zawiera: koszt przedwstępnej notarialnej umowy sprzedaży nieruchomości z rynku wtórnego. ::GWARANCJA | Gwarancja zwrotu zadatku. Więcej informacji na sadurscy.pl/zwrot-zadatku/

Ogrzewanie: Miejskie

Kontakt do agenta:
Michał Bańdo
Zobacz kontaktmichal2@sadurscy.pl
+ Zobacz kontakt48 518-714-002

Oceń ofertę


3


579 wydruk błąd schowek

Ostatnio przeglądane

 

 

 

pobieranie

Pobierz wzór umowy

Umowa przedwstępna sprzedaży

wybierz plik do pobrania
doc pdf

 

 

Deweloperzy

);