Prosimy, odblokuj wyświetlanie reklam w naszym serwisie, są one związane z rynkiem nieruchomości.
To dzięki nim masz darmowy dostęp do naszych treści.

Z pozdrowieniami zespół KRN.pl :)


telefon

wiadomość

mapa

Mieszkanie, Warszawa, Wilanów, ul. Sarmacka

Mieszkanie na sprzedaż Warszawa (woj. Mazowieckie), Wilanów, ul. Sarmacka

Lokalizacja:

Warszawa, Wilanów, ul. Sarmacka

Powierzchnia:

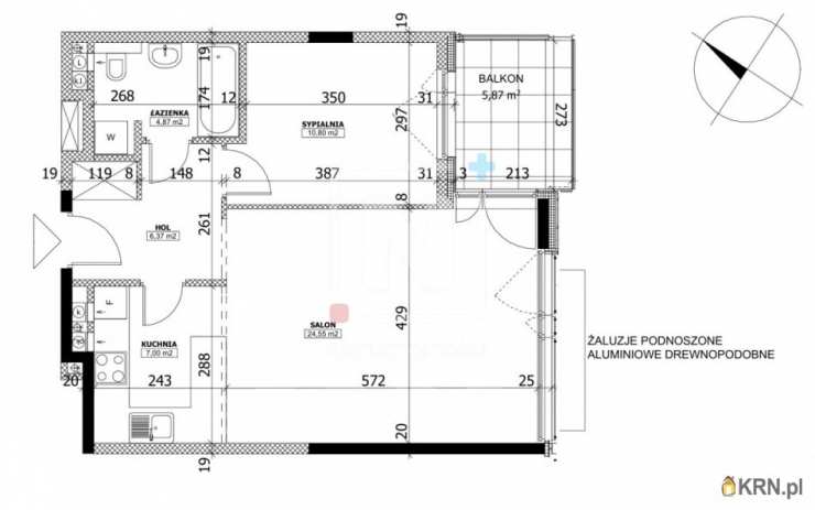
53.87 m2

Cena:

969 000 zł

Dane szczegółowe

lokalizacja:
Mazowieckie, Warszawa, Wilanów, ul. Sarmacka
typ obiektu:
mieszkanie na sprzedaż
cena:
969 000 zł
pokoi:
2
piętro:
3
ilość pięter w budynku:
4
powierzchnia:
53.87 m2
powierzchnia dodatkowa:
balkon
numer ogłoszenia:
N+830015
data dodania:
10-12-2025
data modyfikacji:
10-12-2025
jakość wypełnienia oferty:
82%

Szczegóły oferty

Powrót do sprzedaży2 pokoje | garaż | gotowe do wprowadzenia | Aura Park | Wilanów | Sarmacka 22Oferuję na sprzedaż przestronne, jasne 2-pokojowe mieszkanie (53,77 mÂ2) na ul. Sarmackiej 22 w inwestycji Aura Park (Miasteczko Wilanów).Dostępne od zaraz - mieszkanie wolne, niezamieszkałe.CO WYRÓŻNIA MIESZKANIE? Gotowe do wprowadzenia - bez nakładów finansowych; Słonecznez panoramicznymi oknami na całą szerokość salonu; Doskonały układ - salon z aneksem kuchennym ma aż 31 mÂ2; Kuchnia w pełni wyposażona - zmywarka, piekarnik, lodówko-zamrażarka; Sypialnia z dużą, przesuwną szafą; Funkcjonalny hall z pojemną szafą; Drewniane okna z nawiewnikami i z automatycznymi roletami zewnętrznymi; Duży balkon; Antywłamaniowe drzwi, wideodomofon; Mieszkanie dostępne "od ręki" - wolne, aktualnie niezamieszkałe. Możliwość wynajęcia lub dokupienia miejsca w garażu podziemnym. O OSIEDLU:To osiedle, które żyje i pięknie się starzeje - dzięki wysokiej jakości wykończeniu (piaskowiec na elewacjach) wygląda jak nowe. Zielone, zadbane patia z bujną roślinnością; Bezpiecznie - monitoring, ochrona 24/7; Spokojna okolica - ciche uliczki osiedlowe; Wszystko pod ręką - sklepy, apteki, restauracje, usługi (aż 29 punktów); Plac zabaw w dobrze zaprojektowanej części osiedla; Świetna komunikacja - łatwy dojazd do centrum i szybki wyjazd z Wilanowa. INFORMACJE FORMALNE: Mieszkanie z księgą wieczystą - pełna własność; Możliwy zakup na kredyt; Idealne zarówno do zamieszkania, jak i pod wynajem. KONTAKT:Zadzwoń lub skontaktuj się przez formularz zgłoszeniowy i umów się na prezentację.Telefon: + Zobacz kontakt48 22 102 46 29

Oceń ofertę


0


32 wydruk błąd schowek

Ostatnio przeglądane

 

 

 

pobieranie

Pobierz wzór umowy

Umowa przedwstępna sprzedaży

wybierz plik do pobrania
doc pdf

 

 

Deweloperzy

);