Prosimy, odblokuj wyświetlanie reklam w naszym serwisie, są one związane z rynkiem nieruchomości.
To dzięki nim masz darmowy dostęp do naszych treści.

Z pozdrowieniami zespół KRN.pl :)


telefon

wiadomość

mapa

Mieszkanie, Gdynia, Redłowo, ul. Powstania Śląskiego

Mieszkanie na wynajem Gdynia (woj. Pomorskie), Redłowo, ul. Powstania Śląskiego

Lokalizacja:

Gdynia, Redłowo, ul. Powstania Śląskiego

Powierzchnia:

52.30 m2

Cena:

2 700 zł

Dane szczegółowe

lokalizacja:
Pomorskie, Gdynia, Redłowo, ul. Powstania Śląskiego
typ obiektu:
mieszkanie na wynajem
cena:
2 700 zł
pokoi:
3
piętro:
parter
ilość pięter w budynku:
4
powierzchnia:
52.30 m2
powierzchnia dodatkowa:
balkon, piwnica
numer ogłoszenia:
FO012566
data dodania:
17-12-2025
data modyfikacji:
27-01-2026
jakość wypełnienia oferty:
82%

Szczegóły oferty

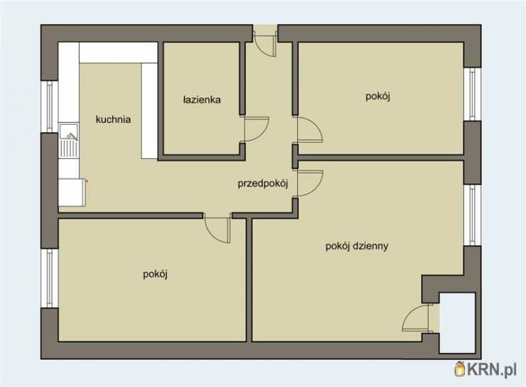
Polecamy do wynajęcia ustawne, zadbane 3-pokojowe mieszkanie, położone na parterze w budynku 4 piętrowym. W doskonałej lokalizacji - Gdyni Redłowie, w pobliżu terenów spacerowych, lasu i morza. Mieszkanie składa się z pokoju dziennego z aneksem jadalnym z wyjściem na niewielki balkon, dwóch sypialni, osobnej kuchni, łazienki oraz przedpokoju. Pokój dzienny oraz jedna sypialnia mają ekspozycję zachodnią, salon wyposażony jest w sofę z funkcją spania, fotel, stolik kawowy. Z okien widok na drzewa i zieleń. Sypialnie są nieumeblowane. W salonie mieści się skórzana sofa oraz fotel a także szafa typu komandor z rozsuwanymi drzwiami i stolik kawowy. Kuchnia całkowicie urządzona i wyposażona w nową zabudową meblową oraz sprzęt AGD: zmywarkę, okap, lodówkę, piekarnik, płytę gazową. Okna od kuchni oraz jednej sypialni wychodzą na stronę wschodnią. Łazienka jest wykończona w białych kafelkach, wyposażona w wannę ze szklanym panelem prysznicowym oraz pralkę. W łazience mieści się toaleta, szafka z umywalką oraz podświetlane lustro. Ciepła woda jest ogrzewana za pomocą nowego pieca gazowego. W przedpokoju znajduje się szafka na buty oraz wieszaki. Wnętrze wykończone z wysokiej jakości materiałów. Mieszkanie jest świeżo odmalowane, wyposażone w nowe drzwi wewnętrzne oraz nowe drzwi wejściowe - antywłamaniowe, ściany we wszystkich pomieszczeniach są białe, wszystkie urządzenia i sprzęty są nowe - na gwarancji. Na podłodze w pokojach mieszczą się panele, w przedpokoju, kuchni oraz łazience płyty gresowe. Całość dopełniają gustowne lampy. Okna w całym mieszkaniu są nowe - PCV, wyposażone w rolety wewnętrzne typu plisa, firanki oraz zewnętrzne kraty wykonane z metaloplastyki. Mieszkanie posiada bardzo funkcjonalny rozkład pomieszczeń. Ogrzewanie centralne - z sieci miejskiej. Budynek w dobrym stanie technicznym, ocieplony, klatka schodowa zadbana. Wokół budynku jest ładnie zagospodarowany teren, dużo zieleni, miejsca postojowe są ogólnodostępne i mieszczą się przed budynkiem. Do mieszkanie przynależy piwnica. Opłaty w sezonie poza grzewczym miesięcznie wynoszą ok. 650 zł. (Opłaty zawierają m.in.: zaliczkę na wodę, ogrzewanie, wywóz śmieci, opłaty administracyjne). Dodatkowo opłata za gaz i prąd wg. stanu zużycia. Kaucja w wysokości 4000 złotych. Wymagany najem okazjonalny. Mieszkanie jest ciepłe, słoneczne. Atutem nieruchomości jest jej lokalizacja: w pobliżu lasu, morza, terenów spacerowych oraz komunikacji miejskiej (nieopodal budynku znajdują się przystanki autobusowe, liczne sklepy i punkty usługowe, apteka, kościół, szkoła). Mieszkanie jest dostępne od zaraz POLECAMY

Kontakt do agenta:
Imię: Danka
Nazwisko: Hanuszewska
Numer telefonu: Zobacz kontakt503 140 480; Zobacz kontakt58 660 07 07 Kom: Zobacz kontakt503 140 480
Adres email: Zobacz kontaktdanka.hanuszewska@forumgdynia.pl
Numer licencji pośrednika: 5253

Oceń ofertę


9.99


528 wydruk błąd schowek

Ostatnio przeglądane

 

 

 

pobieranie

Pobierz wzór umowy

Umowa przedwstępna najmu

wybierz plik do pobrania
doc pdf

 

 

Deweloperzy

);