Prosimy, odblokuj wyświetlanie reklam w naszym serwisie, są one związane z rynkiem nieruchomości.
To dzięki nim masz darmowy dostęp do naszych treści.

Z pozdrowieniami zespół KRN.pl :)


telefon

wiadomość

mapa

Mieszkanie, Kraków, Mistrzejowice, ul. Piasta Kołodzieja

Mieszkanie na sprzedaż Kraków (woj. Małopolskie), Mistrzejowice, ul. Piasta Kołodzieja

Lokalizacja:

Kraków, Mistrzejowice, ul. Piasta Kołodzieja

Powierzchnia:

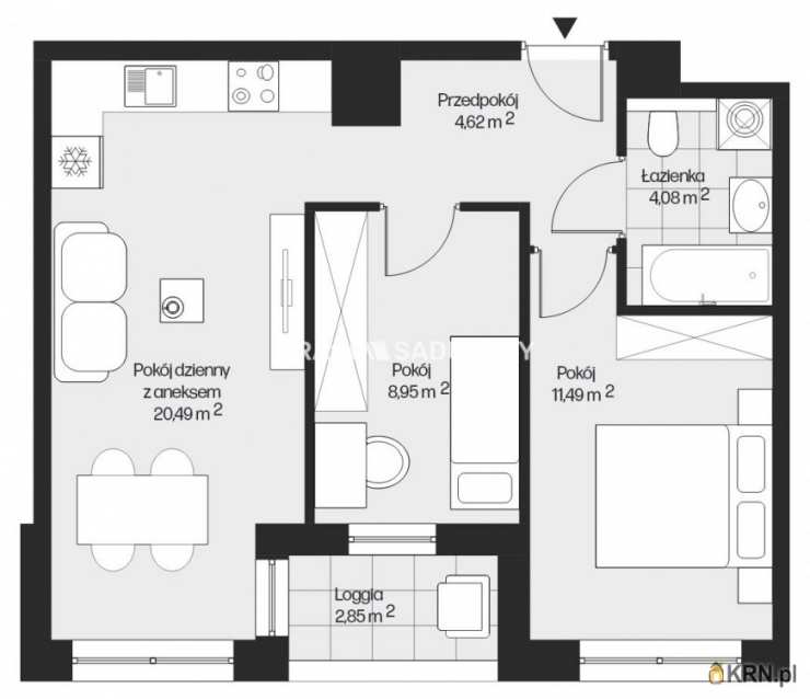
49.63 m2

Cena:

704 746 zł

Dane szczegółowe

lokalizacja:
Małopolskie, Kraków, Mistrzejowice, ul. Piasta Kołodzieja
typ obiektu:
mieszkanie na sprzedaż
cena:
704 746 zł
pokoi:
3
piętro:
3
ilość pięter w budynku:
10
powierzchnia:
49.63 m2
powierzchnia dodatkowa:
loggia, balkon
numer ogłoszenia:
BS2-MS-301566-12
data dodania:
30-11-2024
data modyfikacji:
30-11-2024
jakość wypełnienia oferty:
88%

Szczegóły oferty


MIESZKANIA Z WIDOKIEM NA PARK
KRAKÓW / MISTRZEJOWICE
Bracia Sadurscy to oficjalny przedstawiciel handlowy dewelopera - kupując z nami nie płacisz prowizji i ukrytych kosztów. Inwestycji obejmuje dziewięciopiętrowy budynek mieszkalny, w którym zaplanowano 118 mieszkań o metrażach od 30 do 78 m2 . Lokale zostały zaprojektowane w praktyczny sposób, który ułatwia aranżację według własnego pomysłu.
Mieszkania na parterze posiadać będą indywidualne ogródki,
natomiast lokale na wyższych kondygnacjach będą miały
balkony i przestronne tarasy,
które
pozwolą cieszyć się widokiem na zielone tereny wokół inwestycji.
DODATKOWE INFORMACJE : - miejsca postojowe w garażu podziemnym/naziemnym

- rowerowania i wózkownia

- woda ciepła oraz ogrzewanie z sieci miejskiej MPEC

- termin realizacji : IV kw.2026.
Lokalizacja

2 min. pieszo do Parku
3 min. pieszo żłobek
5 min. pieszo Biedronka, Lidl
8 min. pieszo szkoła podstawowa
6 min. pieszo na przystanek -pętla tramwajowa/autobusowa
8 min. autem Galeria handlowa

Atuty inwestycji

nowoczesna architektura
szeroki wybór mieszkań
zróżnicowane metraże
bliskie sąsiedztwo terenów zielonych
dobra komunikacja z centrum miasta
rozwinięta infrastruktura osiedla
PO WIĘCEJ INFORMACJI ZAPRASZAM DO KONTAKTU:
Marzena Mokrzycka
Tel: + Zobacz kontakt48 790-804-186
Zobacz kontaktmarzena@sadurscy.pl

::DODATKOWE INFORMACJE
Kategoria oferty: Mieszkania dla rodzin z dziećmi Rodzaj budynku: apartamentowiec Głośność: umiarkowanie ciche Woda: ciepła - miejska Dojazd: ASFALTOWA Otoczenie: park Ogrzewanie: C.O. miejskie Komunikacja publ.: MPK, autobus miejski, tramwaj Odl. do sklepu [m]: 500 Winda: TAK Rozkład: dwustronne Usytuowanie: dwustronne Drzwi antywłamaniowe: TAK Rodzaj mieszkania: jednopoziomowe Stan lokalu: deweloperski Instalacje: nowe Balkon: loggia Liczba balkonów: 1 Powierzchnia balkonów/tarasów [m2]: 3,8100 Rok budowy: 2024 Liczba pokoi: 3 Liczba sypialni: 2
::LINK DO STRONY
https://sadurscy.pl/offer/BS2-MS-301566
::KONTAKT DO AGENTA
Marzena Mokrzycka + Zobacz kontakt48 790-804-186 Zobacz kontaktmarzena@sadurscy.pl
::DANE BIURA
Oddział BS2, Rynek Pierwotny Przewóz
47 30-081 Kraków Zobacz kontakt12 630-90-45
--------------------------
::GRATIS | Nasza prowizja zawiera: koszt przedwstępnej notarialnej umowy sprzedaży nieruchomości z rynku wtórnego. ::GWARANCJA | Gwarancja zwrotu zadatku. Więcej informacji na sadurscy.pl/zwrot-zadatku/

Ogrzewanie: Miejskie

Kontakt do agenta:
Marzena Mokrzycka
Zobacz kontaktmarzena@sadurscy.pl
+ Zobacz kontakt48 790-804-186

Oceń ofertę


3


348 wydruk błąd schowek

Ostatnio przeglądane

 

 

 

pobieranie

Pobierz wzór umowy

Umowa przedwstępna sprzedaży

wybierz plik do pobrania
doc pdf

 

 

Deweloperzy

);