Prosimy, odblokuj wyświetlanie reklam w naszym serwisie, są one związane z rynkiem nieruchomości.
To dzięki nim masz darmowy dostęp do naszych treści.

Z pozdrowieniami zespół KRN.pl :)


telefon

wiadomość

mapa

Mieszkanie, Warszawa, Wawer, ul. Gorajska

Mieszkanie na sprzedaż Warszawa (woj. Mazowieckie), Wawer, ul. Gorajska

Lokalizacja:

Warszawa, Wawer, ul. Gorajska

Powierzchnia:

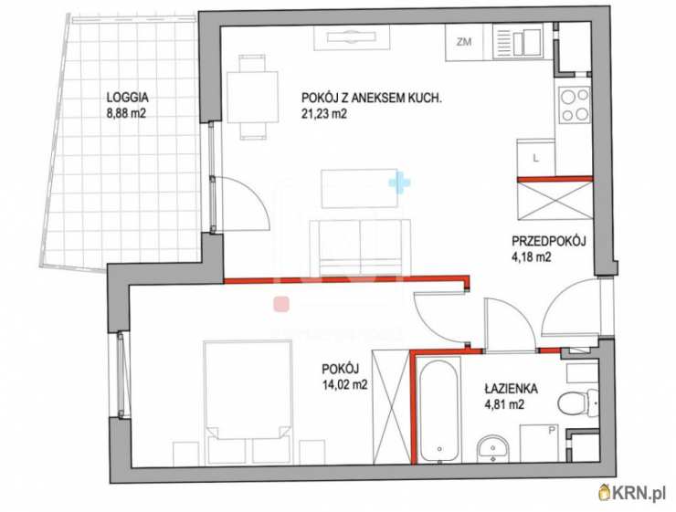
44.25 m2

Cena:

818 000 zł

Dane szczegółowe

lokalizacja:
Mazowieckie, Warszawa, Wawer, ul. Gorajska
typ obiektu:
mieszkanie na sprzedaż
cena:
818 000 zł
pokoi:
2
piętro:
4
ilość pięter w budynku:
5
powierzchnia:
44.25 m2
powierzchnia dodatkowa:
balkon
numer ogłoszenia:
N+608474
data dodania:
13-02-2026
data modyfikacji:
14-02-2026
jakość wypełnienia oferty:
82%

Szczegóły oferty

Klimatyzacja Balkon prawie 9mÂ2 Wysokość mieszkania 295 cm! Miejsce w garażu podziemnym Wyposażenie mieszkania w cenie Nowoczesne osiedle, które oferuje mieszkańcom pełen zakres udogodnień Cena ofertowa:818 000 złCechy nieruchomości:- Zachodnia ekspozycja- Klimatyzacja- Dwa ustawne pokoje- Duża ilość miejsca do przechowywania- Inwestycja topowego dewelopera- Wysokość mieszkania prawie 3 metry- Mieszkanie zachowane w bardzo dobrym stanie- Drewniane blaty- Bardzo zadbane części wspólne- Wysoki standard patio oraz klatek schodowych- Mieszkanie nie wymaga żadnych dodatkowych nakładów finansowychTuż przy budynku:- Przystanek autobusowy Jurajska 02 - 400 metrów- Żabka | Prosto z pieca- Paczkomat Inpost- Xtreme Fitness- Niepubliczny żłobek i przedszkole► Miejsce w garażu podziemnym płatne 50 000 złâ–ş Komórka lokatorskaponad 6mÂ2 płatna 20 000 zł ✔ Gwarantuję bezpieczeństwo sprzedaży i opiekę Eksperta Finansowego★ Oferta na wyłączność dostępna tylko w naszym biurze⮊ Mieszkanie własnościowe z KW co daje możliwość zakupu na kredytJeśli zakup tej nieruchomości wiąże się ze sprzedażą innej - daj mi znać! Chętnie pomogę Ci przejść przez ten procesWspółpracując z Nieruchomości Plus, otrzymasz rabat na usługi notarialne***Jeśli chcesz sprawdzić czy jest to nieruchomość dla Ciebie - Zadzwoń lub wyślij zgłoszenie na portalu i umów się na bezpłatną prezentację ***

Oceń ofertę


0


25 wydruk błąd schowek

Ostatnio przeglądane

 

 

 

pobieranie

Pobierz wzór umowy

Umowa przedwstępna sprzedaży

wybierz plik do pobrania
doc pdf

 

 

Deweloperzy

);