Prosimy, odblokuj wyświetlanie reklam w naszym serwisie, są one związane z rynkiem nieruchomości.
To dzięki nim masz darmowy dostęp do naszych treści.

Z pozdrowieniami zespół KRN.pl :)


telefon

wiadomość

mapa

Mieszkanie, Kraków, Podgórze/Stare Podgórze

Mieszkanie na sprzedaż Kraków (woj. Małopolskie), Podgórze/Stare Podgórze

Lokalizacja:

Kraków, Podgórze/Stare Podgórze, ul.

Powierzchnia:

43.43 m2

Cena:

769 000 zł

Dane szczegółowe

lokalizacja:
Małopolskie, Kraków, Podgórze/Stare Podgórze
typ obiektu:
mieszkanie na sprzedaż
cena:
769 000 zł
pokoi:
2
piętro:
2
ilość pięter w budynku:
3
powierzchnia:
43.43 m2
powierzchnia dodatkowa:
balkon
media:
woda
numer ogłoszenia:
SBK-MS-19170
data dodania:
24-10-2025
data modyfikacji:
24-04-2026
jakość wypełnienia oferty:
88%

Szczegóły oferty

|
OFERUJEMY PAŃSTWU DO SPRZEDANIA
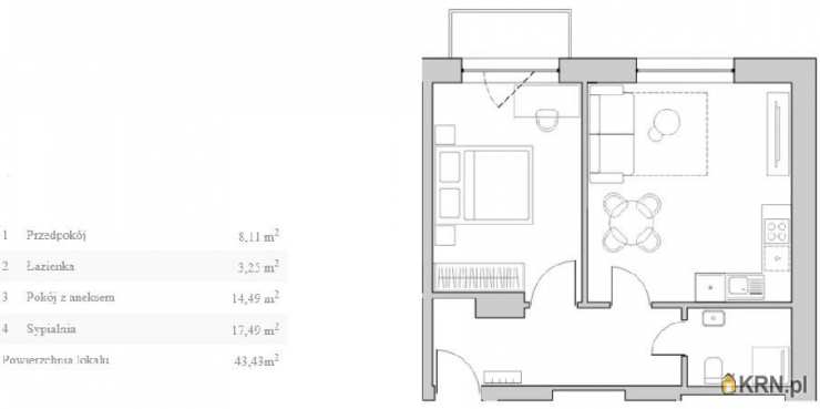
Klimatyczne mieszkania na Starym Podgórzu w nowo wyremontowanej kamienicy z ładną klatką schodową. Mieszkanie w stanie deweloperskim do własnej aranżacji i wykończenia (możliwość wykończenia pod klucz) Ogrzewanie II funkcyjnymi piecami gazowymi. Proponowane mieszkanie dwupokojowe o powierzchni 43,43 m2, składa się salonu z aneksem kuchennym, sypialni, przedpokoju, łazienki i balkonu.
W OFERCIE INNE MIESZKANIA O RÓŻNYM METRAŻU
od 30m do 50m2, na parterze i II piętrze. Dzielnica Stare Podgórze jest bardzo dobrze skomunikowana z pozostałymi dzielnicami Krakowa. Położone na Wiśle kładki i mosty umożliwiają niemal natychmiastowe przemieszczenie się do Starego Miasta czy Grzegórzek. Doskonała lokalizacja i dojazd w każdym kierunku miasta.
Zapraszam na prezentację.
Kontakt w sprawie oferty tel; Urszula Bugajska Zobacz kontakt530 260 261
Biuro Nieruchomości SZEMBEK EWA
GRODZKA 41
Numer licencji pośrednika odpowiedzialnego zawodowo 2240. Powyższa oferta ma charakter informacyjny i nie stanowi oferty handlowej w rozumieniu Kodeksu Cywilnego oraz innych właściwych przepisów prawnych.
::DODATKOWE INFORMACJE |
Rodzaj budynku: kamienica |
Parking strzeżony (odległość w metrach) [m]: 100 |
Głośność: umiarkowanie ciche |
Widok: na inne budynki |
Gaz: jest |
Woda: tak - miejska |
Dojazd: asfalt |
Otoczenie: działki zabudowane |
Ogrzewanie: piec dwufunkcyjny |
Komunikacja publ.: MPK, bus, autobus podmiejski, autobus miejski, miejska, tramwaj, autobus |
Winda: NIE |
Rozkład: jednostronne rozkładowe |
Usytuowanie: jednostronne |
Drzwi antywłamaniowe: TAK |
Opłaty wg liczników: prąd, gaz |
Rodzaj mieszkania: jednopoziomowe |
Stan lokalu: deweloperski |
Okna: PCV |
Instalacje: nowe |
Balkon: jest |
Liczba balkonów: 1 |
Powierzchnia użytkowa [m2]: 43,4300 |
Rok budowy: 1920 |
Liczba pokoi: 2 |
Wysokość pomieszczeń [m]: 2,8000 |
Liczba sypialni: 1 |
Typ kuchni: aneks kuchenny - połączony z salonem |
Typ łazienki: razem z wc |
Glazura łazienki: bez glazury |
Liczba przedpokoi: 1 |
::DANE BIURA |
Biuro Nieruchomości Szembek Ewa |
Grodzka 41 |
31-001 Kraków |
Zobacz kontakt12/432 43 90 |
www.ewaszembek.pl
|
Oferta wysłana z systemu Galactica Virgo
Ogrzewanie: PIEC DWUFUNKCYJNY

Kontakt do agenta:
Urszula Bugajska
Zobacz kontakturszula.bugajska@ewaszembek.pl
Zobacz kontakt12/432 43 90
Zobacz kontakt530 260 261

Oceń ofertę


9.99


395 wydruk błąd schowek

Ostatnio przeglądane

 

 

 

pobieranie

Pobierz wzór umowy

Umowa przedwstępna sprzedaży

wybierz plik do pobrania
doc pdf

 

 

Deweloperzy

);