Prosimy, odblokuj wyświetlanie reklam w naszym serwisie, są one związane z rynkiem nieruchomości.
To dzięki nim masz darmowy dostęp do naszych treści.

Z pozdrowieniami zespół KRN.pl :)


telefon

wiadomość

mapa

Mieszkanie, Mirów

Mieszkanie na sprzedaż Mirów (woj. Małopolskie)

Lokalizacja:

Mirów, , ul.

Powierzchnia:

42.93 m2

Cena:

1 356 600 zł

Dane szczegółowe

lokalizacja:
Małopolskie, Mirów
typ obiektu:
mieszkanie na sprzedaż
cena:
1 356 600 zł
piętro:
10
ilość pięter w budynku:
16
powierzchnia:
42.93 m2
media:
prąd, woda
numer ogłoszenia:
23029
data dodania:
04-04-2026
data modyfikacji:
04-04-2026
jakość wypełnienia oferty:
76%

Szczegóły oferty



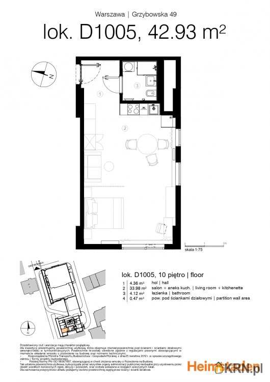
Studio | 42.93 m2 | 10 piętro | Unique Tower
[NA WYŁĄCZNOŚĆ]

WE SPEAK ENGLISH - PLEASE DO NOT HESITATE TO CONTACT US

Rabat 2% na start - oferta ważna do 10.04.2026.Mamy przyjemność przedstawić Państwu ofertę sprzedaży wyjątkowego mieszkania typu studio z wydzieloną częścią sypialnianą, położonego na dziesiątym piętrze budynku. Nowocześnie wykończone, w pobliżu ścisłego centrum Warszawy. W naszej ofercie znajdują się różne mieszkania w tej inwestycji.

Na sprzedaż przestonne, jasne mieszkanie studio, o powierzchni 42.93 m˛ urządzone z dużą dbałością o detale oraz komfort codziennego użytkowania. Lokal idealnie sprawdzi się zarówno dla singla, pary, jak i jako inwestycja pod wynajem.

Układ mieszkania:     przestronny salon z balkonem oraz aneksem kuchennym, w pełni wyposażonym w wysokiej klasy sprzęt AGD (lodówka, piekarnik, płyta indukcyjna, zmywarka), oddzielona część sypialniana z łóżkiem,      funkcjonalna łazienka z kabiną prysznicową. Wykończenie wnętrza utrzymane jest w jasnej kolorystyce, z eleganckimi, naturalnymi akcentami drewnianymi na podłodze oraz czarnymi elementami, które nadają przestrzeni charakteru i stylu. Mieszkanie wyposażone zostało w zabudowane szafy, dzięki czemu zapewnia dużo miejsca do przechowywania i jednocześnie zachowuje poczucie przestronności.

Unique Tower to nowoczesna inwestycja mieszkaniowa zlokalizowana w sercu warszawskiej Woli - jednej z najszybciej rozwijających się dzielnic stolicy. W 16-piętrowym budynku znajdują się komfortowe mieszkania jedno, dwu i trzypokojowe, wszystkie klimatyzowane i w pełni umeblowane. Część lokali posiada przestronne balkony z widokiem na panoramę miasta. Przestrzenie wspólne zaprojektowano z myślą o wygodzie i stylu życia mieszkańców - eleganckie lobby z recepcją-Żoraz całodobowe bezpieczeństwo podnoszą komfort codziennego funkcjonowania.Właścicielem nieruchomości jest Heimstaden - wiodąca europejska
firma działająca w sektorze nieruchomości mieszkaniowych. Grupa
jest obecna w Norwegii, Szwecji, Danii, Finlandii, Wielkiej Brytanii,
Niemczech, Holandii, Czechach i Polsce. Heimstaden dysponuje
około 161 tys. mieszkań o łącznej wartości około 30 mld euro. Firma
koncentruje się na nabywaniu, budowie, sprzedaży i zarządzaniu
budynkami w oparciu o najwyższej jakości standardy współpracy z
partnerami i klientami. Hamilton May jest oficjalnym partnerem Heimstaden w zakresie sprzedaży nieruchomości.

Inwestycja znajduje się w dynamicznie rozwijającej się dzielnicy Wola, która stanowi wizytówkę stolicy i cieszy się rosnącym zainteresowaniem zarówno mieszkańców, jak i inwestorów. To miejsce tętniące życiem, oferujące szeroką gamę możliwości mieszkaniowych, biznesowych i rozrywkowych.
W najbliższym otoczeniu znajdują się liczne kawiarnie, restauracje oraz punkty usługowe, które zaspokoją potrzeby każdego mieszkańca i gościa. Wola to również centrum nowoczesnej architektury i kultury - w pobliżu zlokalizowane są prestiżowe kompleksy biurowe oraz kulturalne, takie jak Browary Warszawskie i Fabryka Norblina, które przyciągają zarówno pracowników, jak i turystów.
Doskonała komunikacja to kolejny atut tej lokalizacji - w zasięgu krótkiego spaceru znajdują się przystanki tramwajowe i autobusowe, a także stacje metra Rondo ONZ oraz Rondo Daszyńskiego, zapewniające szybki i wygodny dostęp do innych dzielnic Warszawy.

Cena 1 356 600 PLN + opcjonalnie
miejsce w parkingu podziemnym (150 000 PLN )

W celu uzyskania dalszych informacji na temat powyższej oferty, zapraszamy do kontaktu z biurem Hamilton May.
Szczegóły oferty dostępne na heimstaden_com (ze względów technicznych adres zapisano z podkreślnikiem; w pasku adresu przeglądarki należy podkreślnik zastąpić kropką).

Numer oferty: 23029

Niniejsze ogłoszenie ma charakter wyłącznie informacyjny i nie stanowi oferty handlowej w rozumieniu art. 66 §1 Kodeksu cywilnego.

Ogrzewanie: Miejskie

Informacje dodatkowe:
KUCHNIA:
aneks kuchenny
Parking: Jest
Internet: Jest

Kontakt do agenta:
Hamilton May Warszawa
Zobacz kontakt22 243 77 21
Zobacz kontaktwarsaw@hamiltonmay.com

Oceń ofertę


0


28 wydruk błąd schowek

Ostatnio przeglądane

 

 

 

pobieranie

Pobierz wzór umowy

Umowa przedwstępna sprzedaży

wybierz plik do pobrania
doc pdf

 

 

Deweloperzy

);