Prosimy, odblokuj wyświetlanie reklam w naszym serwisie, są one związane z rynkiem nieruchomości.
To dzięki nim masz darmowy dostęp do naszych treści.

Z pozdrowieniami zespół KRN.pl :)


telefon

wiadomość

mapa

Mieszkanie, Warszawa, Żoliborz

Mieszkanie na sprzedaż Warszawa (woj. Mazowieckie), Żoliborz

Lokalizacja:

Warszawa, Żoliborz, ul.

Powierzchnia:

34.40 m2

Cena:

599 000 zł

Dane szczegółowe

lokalizacja:
Mazowieckie, Warszawa, Żoliborz
typ obiektu:
mieszkanie na sprzedaż
cena:
599 000 zł
pokoi:
2
piętro:
3
ilość pięter w budynku:
19
powierzchnia:
34.40 m2
powierzchnia dodatkowa:
piwnica
numer ogłoszenia:
497/3992/OMS
data dodania:
09-03-2026
data modyfikacji:
09-03-2026
jakość wypełnienia oferty:
82%

Szczegóły oferty

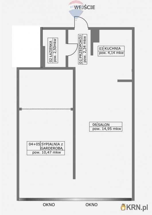
Na sprzedaż funkcjonalne mieszkanie 2 pokojowe o powierzchni 34,4 mÂ2, położone w jednej z najbardziej cenionych części Warszawy, Stary Żoliborz, ul. Koźmiana 2.

Lokal znajduje się na 3 piętrze w 19 piętrowym budynku z windami z 1967 roku. Okna wychodzą na podwórko i garaże, dzięki czemu w mieszkaniu jest spokojnie.

Uwaga - Kupujący nie płaci prowizji !

Układ mieszkania:

• salon z aneksem kuchennym i częścią wypoczynkową

• oddzielna sypialnia z garderobą

• łazienka w pełni wyposażona

• przedpokój

Mieszkanie ma czytelny, wygodny rozkład. Część dzienna daje przestrzeń do życia i pracy. Sypialnia z garderobą zapewnia prywatność i miejsce do przechowywania. To dobry wybór zarówno do zamieszkania, jak i pod wynajem.

Lokalizacja to duży atut tej nieruchomości.
Do stacji metra Plac Wilsona dojdziesz w kilka minut - to tylko 600 m.
W okolicy znajdziesz sklepy, kawiarnie, szkoły, tereny zielone i pełną infrastrukturę miejską.
Żoliborz od lat cieszy się stabilnym popytem i dobrą opinią wśród kupujących.

Najważniejsze informacje:

• 34,4 mÂ2

• 2 pokoje

• 3 piętro z 19

• budynek z 3 windami

• piwnica - przynależy do mieszkania

• świetna komunikacja

• czynsz wynosi ok 510 zł

Prezentacje możliwe już od zaraz.

Zadzwoń i umów się na spotkanie. Na żywo poczujesz klimat tej lokalizacji i zobaczysz, czy to miejsce jest dla Ciebie.



W przypadku tej oferty wynagrodzenie naszego biura pokrywa właściciel nieruchomości.
Opis oferty zawarty na stronie internetowej sporządzany jest na podstawie oględzin nieruchomości oraz informacji uzyskanych od właściciela, może podlegać aktualizacji i nie stanowi oferty określonej w art. 66 i następnych K.C.

Oferta wysłana z programu dla biur nieruchomości ASARI CRM (asaricrm.com)



Kontakt:
Numer telefonu: Zobacz kontakt784 497 410
Adres email: Zobacz kontaktmichal.dabrowski@remax-polska.pl
Numer licencji pośrednika: 13104

Oceń ofertę


0


40 wydruk błąd schowek

Ostatnio przeglądane

 

 

 

pobieranie

Pobierz wzór umowy

Umowa przedwstępna sprzedaży

wybierz plik do pobrania
doc pdf

 

 

Deweloperzy

);