Prosimy, odblokuj wyświetlanie reklam w naszym serwisie, są one związane z rynkiem nieruchomości.
To dzięki nim masz darmowy dostęp do naszych treści.

Z pozdrowieniami zespół KRN.pl :)


telefon

wiadomość

mapa

Mieszkanie, Mirów

Mieszkanie na sprzedaż Mirów (woj. Małopolskie)

Lokalizacja:

Mirów, , ul.

Powierzchnia:

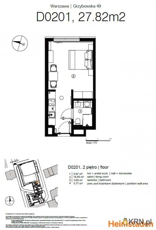
27.82 m2

Cena:

768 000 zł

Dane szczegółowe

lokalizacja:
Małopolskie, Mirów
typ obiektu:
mieszkanie na sprzedaż
cena:
768 000 zł
piętro:
2
ilość pięter w budynku:
16
powierzchnia:
27.82 m2
media:
prąd, woda
numer ogłoszenia:
22598
data dodania:
03-01-2026
data modyfikacji:
03-01-2026
jakość wypełnienia oferty:
76%

Szczegóły oferty



Studio | 27.82 m2 | Blisko Centrum | Unique Tower
[NA WYŁĄCZNOŚĆ]

WE SPEAK ENGLISH - PLEASE DO NOT HESITATE TO CONTACT US

Mamy przyjemność przedstawić Państwu ofertę sprzedaży nowoczesnego studia w pobliżu ścisłego centrum Warszawy.
ďťż
W naszej ofercie znajdują się różne mieszkania w tej inwestycji.

Atrakcyjne mieszkanie o powierzchni użytkowej 27.82 m˛, położone w nowoczesnym budynku. Lokal został urządzony z dużą dbałością o detale i funkcjonalność. Idealnie sprawdzi się zarówno dla singla, pary, jak i jako inwestycja pod wynajem. 

Prezentowany apartament składa się z:  kuchni wyposażonej w sprzęt AGD (lodówkę, piekarnik, indukcję, zmywarkę),komfortowej sypialni, wyposażonej w łóżko dwuosobowe oraz pojemną szafę, z miejscem na część jadalnianą,łazienki z prysznicem,przedpokoju.Mieszkanie zostało wykończone w jasnej, przyjemnej kolorystyce, z naturalnymi, drewnianymi akcentami na podłodze oraz eleganckimi, czarnymi detalami, które dodają mu charakteru i szyku. Duże okna zapewniają doskonałe doświetlenie wnętrza, a przemyślany układ zabudowy gwarantuje komfort i funkcjonalność.

Unique Tower to nowoczesna inwestycja mieszkaniowa zlokalizowana w sercu warszawskiej Woli - jednej z najszybciej rozwijających się dzielnic stolicy. W 16-piętrowym budynku znajdują się komfortowe mieszkania jedno, dwu i trzypokojowe, wszystkie klimatyzowane i w pełni umeblowane. Część lokali posiada przestronne balkony z widokiem na panoramę miasta. Przestrzenie wspólne zaprojektowano z myślą o wygodzie i stylu życia mieszkańców - eleganckie lobby z recepcją-Żoraz całodobowe bezpieczeństwo podnoszą komfort codziennego funkcjonowania.
Właścicielem nieruchomości jest Heimstaden - wiodąca europejska
firma działająca w sektorze nieruchomości mieszkaniowych. Grupa
jest obecna w Norwegii, Szwecji, Danii, Finlandii, Wielkiej Brytanii,
Niemczech, Holandii, Czechach i Polsce. Heimstaden dysponuje
około 161 tys. mieszkań o łącznej wartości około 30 mld euro. Firma
koncentruje się na nabywaniu, budowie, sprzedaży i zarządzaniu
budynkami w oparciu o najwyższej jakości standardy współpracy z
partnerami i klientami. 
Hamilton May jest oficjalnym partnerem Heimstaden w zakresie sprzedaży nieruchomości.

Inwestycja znajduje się w dynamicznie rozwijającej się dzielnicy Wola, która stanowi wizytówkę stolicy i cieszy się rosnącym zainteresowaniem zarówno mieszkańców, jak i inwestorów. To miejsce tętniące życiem, oferujące szeroką gamę możliwości mieszkaniowych, biznesowych i rozrywkowych.
W najbliższym otoczeniu znajdują się liczne kawiarnie, restauracje oraz punkty usługowe, które zaspokoją potrzeby każdego mieszkańca i gościa. Wola to również centrum nowoczesnej architektury i kultury - w pobliżu zlokalizowane są prestiżowe kompleksy biurowe oraz kulturalne, takie jak Browary Warszawskie i Fabryka Norblina, które przyciągają zarówno pracowników, jak i turystów.
Doskonała komunikacja to kolejny atut tej lokalizacji - w zasięgu krótkiego spaceru znajdują się przystanki tramwajowe i autobusowe, a także stacje metra Rondo ONZ oraz Rondo Daszyńskiego, zapewniające szybki i wygodny dostęp do innych dzielnic Warszawy.

Cena 768 000 PLN + opcjonalnie
miejsce w parkingu podziemnym (150 000 PLN )

Zapraszamy do kontaktu z biurem Hamilton May, aby umówić się na prezentację i poznać wszystkie atuty tego wyjątkowego apartamentu.
Szczegóły oferty dostępne na heimstaden_com (ze względów technicznych adres zapisano z podkreślnikiem; w pasku adresu przeglądarki należy podkreślnik zastąpić kropką).

Numer oferty: 22598

Niniejsze ogłoszenie ma charakter wyłącznie informacyjny i nie stanowi oferty handlowej w rozumieniu art. 66 §1 Kodeksu cywilnego.

Ogrzewanie: Miejskie

Informacje dodatkowe:
KUCHNIA:
aneks kuchenny
Parking: Jest
Internet: Jest

Kontakt do agenta:
Hamilton May Warszawa
Zobacz kontakt22 243 77 21
Zobacz kontaktwarsaw@hamiltonmay.com

Oceń ofertę


9.99


445 wydruk błąd schowek

Ostatnio przeglądane

 

 

 

pobieranie

Pobierz wzór umowy

Umowa przedwstępna sprzedaży

wybierz plik do pobrania
doc pdf

 

 

Deweloperzy

);