Prosimy, odblokuj wyświetlanie reklam w naszym serwisie, są one związane z rynkiem nieruchomości.
To dzięki nim masz darmowy dostęp do naszych treści.

Z pozdrowieniami zespół KRN.pl :)


telefon

wiadomość

mapa

Lokal użytkowy, Wrocław, Śródmieście

Lokal użytkowy na sprzedaż Wrocław (woj. Dolnośląskie), Śródmieście

Lokalizacja:

Wrocław, Śródmieście, ul.

Powierzchnia:

369.00 m2

Cena:

6 127 245 zł

Dane szczegółowe

lokalizacja:
Dolnośląskie, Wrocław, Śródmieście
typ obiektu:
lokal użytkowy na sprzedaż
cena:
6 127 245 zł
pokoi:
12
piętro:
parter
ilość pięter w budynku:
2
powierzchnia:
369.00 m2
media:
siła
numer ogłoszenia:
2219
data dodania:
21-04-2026
data modyfikacji:
21-04-2026
jakość wypełnienia oferty:
70%

Szczegóły oferty


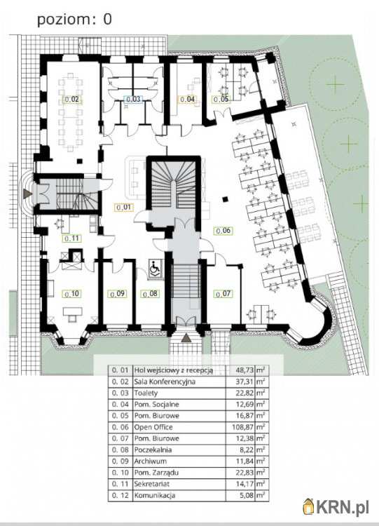
Zapraszam do zakupu wyjątkowego lokalu usługowego znajdującego się w Starym Browarze Wrocławskim. Budynek przechodzi kompleksowy remont i unowocześnienie oczywiście za zgodą i pod okiem konserwatora, pomimo wielu nowoczesnych rozwiązań zabytkowa część zachowa swój wyjątkowy , historyczny i niepowtarzalny charakter, zarówno od strony zewnętrznej jak i od strony wnętrz, które posiadają oryginalne detale, które po renowacji mogą stanowić wyjątkową perełkę Państwa przyszłego biura.

Piękny lokal usługowy o pow. 369m2 m2 znajduje na parterze w 2 piętrowym budynku. Jest to klasyczna, część przedwojennych Browarów Wrocławskich i co warto podkreślić ponownie budynek jest w trakcie całkowitej i bardzo szczegółowej rewitalizacji. W lokalu można prowadzić działalność biurową.

To wyjątkowa inwestycja łącząca w jednym kompleksie styl loftowy i nowoczesny. Okolica oferuje szeroki wybór udogodnień. W pobliżu znajdują się sklepy spożywcze, restauracje, kawiarnie i lokale usługowe. Dzięki temu mieszkańcy będą mieli wszystko, czego potrzebują w zasięgu ręki. Ważnym aspektem jest również bliskość komunikacji publicznej. Przystanki autobusowe i tramwajowe znajdują się w pobliżu inwestycji, umożliwiając łatwe przemieszczanie się po mieście, bez konieczności korzystania z samochodu. Ogromnym atutem są tutaj przede wszystkim tereny rekreacyjne. W pobliskim parku można spacerować, biegać czy jeździć na rowerze, co stanowi doskonałą okazję do relaksu i aktywnego spędzania czasu na świeżym powietrzu. Inwestycja jest gotowa, oddana do użytkowania- zakup z rynku pierwotnego bezpośrednio od dewelopera - bez PCC i bez prowizji. Zapraszam na prezentacje na inwestycji.

Ania Kamuda- Doradca klienta

tel. Zobacz kontakt535 422 188

Zobacz kontaktanna.kamuda@elitare.pl

Nr oferty BR/LU/PARTER/AK

Zamieszczone na naszych stronach informacje nie stanowią oferty w rozumieniu Kodeksu Cywilnego, a dane w nich zawarte mają jedynie charakter informacyjny.

OFERTA CENOWA AKTUALNA NA DZIEŃ 20-04-2026 I OBOWIĄZUJE DO DNIA 20-04-2026

Ogrzewanie: miejskie

Oceń ofertę


0


31 wydruk błąd schowek

Ostatnio przeglądane

 

 

 

pobieranie

Pobierz wzór umowy

Umowa przedwstępna sprzedaży

wybierz plik do pobrania
doc pdf

 

 

Deweloperzy

);