Prosimy, odblokuj wyświetlanie reklam w naszym serwisie, są one związane z rynkiem nieruchomości.
To dzięki nim masz darmowy dostęp do naszych treści.

Z pozdrowieniami zespół KRN.pl :)


telefon

wiadomość

mapa

Lokal użytkowy, Skawina, ul. Babetty

Lokal użytkowy na wynajem Skawina (woj. Małopolskie), ul. Babetty

Lokalizacja:

Skawina, , ul. Babetty

Powierzchnia:

170.00 m2

Cena:

10 200 zł

Dane szczegółowe

lokalizacja:
Małopolskie, Skawina, ul. Babetty
typ obiektu:
lokal użytkowy na wynajem
cena:
10 200 zł
piętro:
parter
ilość pięter w budynku:
2
powierzchnia:
170.00 m2
numer ogłoszenia:
BS1-LW-286074-142
data dodania:
17-04-2026
data modyfikacji:
17-04-2026
jakość wypełnienia oferty:
64%

Szczegóły oferty



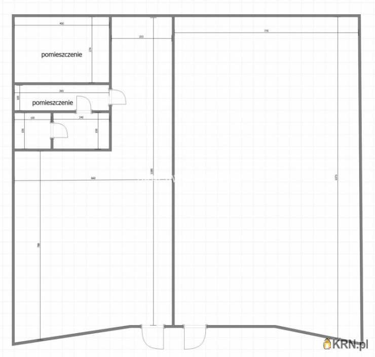
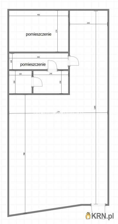
Skawina nowy lokal 170 m2(do własnej aranżacji!!)

blisko centrum rejon ul. Babetty Lokal biurowy -
handlowy -
usługowy
o powierzchni 17
0
m2, położony na parterze w now
ym
budynku
(kamienica)

Lokal przestronny
170m2
,
lokal
pod cele
gastronomiczne,
biurowe,
handlowe , usługowe itp. (zależne od przyszłych potrzeb i pomysłu najemcy do ustalenia z właścicielem- rozważy różne propozycje)
.
Lokal obecnie typu open space
+
łazienka (
istnieje możliwość własnej adaptacji układu lokalu po ustaleniu z właścicielem-
bardzo duży potencjał i szerokie możliwości aranżacji
)
Wysokość lokalu ok. 3 m2. Duża witryna (nowoczesne przeszklenie -front)
Ogólnodostępne miejsca dla klientów przed budynkiem lub duży
Parking
za
budynkiem.

Ogrzewanie
:
gazowe lokalne budynku.
W lokalu jest instalacja alarmowa.

Prąd wg. licznika, woda wg. licznika.
Czynsz
: 60 zł
netto/
m2
cena za całość 10 200 netto zł + Vat

ZAPRASZAM NA PREZENTACJE Piotr Dziadzio

+ Zobacz kontakt48 515 234 864
::DODATKOWE INFORMACJE
Rodzaj budynku: kamienica Dojazd: asfalt Ogrzewanie: C.O. lokalne Komunikacja publ.: bus, autobus Winda: NIE Sąsiedztwo: działki zabudowane Usytuowanie: jednostronne Wysokość kondygnacji [m]: 3,05 Położenie lokalu: spokojna ulica Witryna wystawowa: duża Podłogi: gres Opłaty wg liczników: woda, prąd, gaz, CO Stan lokalu: bardzo dobry Instalacje: nowe Powierzchnia użytkowa [m2]: 170 Rok budowy: 2020 Rodzaj lokalu: jednopoziomowy Przeznaczenie lokalu: usługowy, inny, handlowy, handlowo-usługowy, gastronomia, biurowy, biurowo - magazynowy Czynsz najmu netto /m2: 10200 Typ kaucji: do uzgodnienia
::LINK DO STRONY
https://sadurscy.pl/offer/BS1-LW-286074
::KONTAKT DO AGENTA
Piotr Dziadzio + Zobacz kontakt48 515-234-864 Zobacz kontaktpiotr@sadurscy.pl
::DANE BIURA
Oddział BS1, Kapelanka Kapelanka 1A/1 30-347 Kraków Zobacz kontakt12 429-25-12
Pośrednik odpowiedzialny zawodowo za wykonanie umowy pośrednictwa: Dariusz Sadurski (licencja nr: 803)

Ogrzewanie: C.O. LOKALNE

Kontakt do agenta:
Piotr Dziadzio
Zobacz kontaktpiotr@sadurscy.pl
+ Zobacz kontakt48 515-234-864

Oceń ofertę


0


48 wydruk błąd schowek

Ostatnio przeglądane

 

 

 

pobieranie

Pobierz wzór umowy

Umowa przedwstępna najmu

wybierz plik do pobrania
doc pdf

 

 

Deweloperzy

);