Prosimy, odblokuj wyświetlanie reklam w naszym serwisie, są one związane z rynkiem nieruchomości.
To dzięki nim masz darmowy dostęp do naszych treści.

Z pozdrowieniami zespół KRN.pl :)


telefon

wiadomość

mapa

Lokal użytkowy, Gdańsk, Przymorze Małe, ul. gen. Bora-Komorowskiego

Lokal użytkowy na wynajem Gdańsk (woj. Pomorskie), Przymorze Małe, ul. gen. Bora-Komorowskiego

Lokalizacja:

Gdańsk, Przymorze Małe, ul. gen. Bora-Komorowskiego

Powierzchnia:

150.00 m2

Cena:

7 000 zł

Dane szczegółowe

lokalizacja:
Pomorskie, Gdańsk, Przymorze Małe, ul. gen. Bora-Komorowskiego
typ obiektu:
lokal użytkowy na wynajem
cena:
7 000 zł
piętro:
parter
ilość pięter w budynku:
2
powierzchnia:
150.00 m2
media:
prąd, gaz, woda
numer ogłoszenia:
IF04357
data dodania:
17-01-2026
data modyfikacji:
17-01-2026
jakość wypełnienia oferty:
76%

Szczegóły oferty

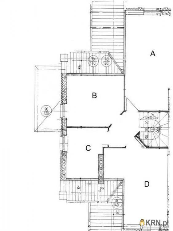
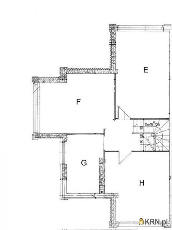
OD ZARAZ. LOKAL BIUROWY O POWIERZCHNI 150 M2 W BARDZO DOBRYM STANDARDZIE W DOSKONAŁEJ LOKALIZACJI - W CENTRUM DZIELNICY PRZYMORZE - MAŁE. Biura mieszczą się na parterze oraz na 1. i 2. piętrze domu wolnostojącego typu bliźniak z niezależnym wejściem. Na poziomie 0 są to 2 niezależne pokoje biurowe, oddzielna kuchnia wraz z jadalnią, łazienka z toaletą. Na poziomie 1.: 3 niezależne pokoje biurowe /z jednego wyjście na balkon/ łazienka z toaletą, na poziomie 2. /poddasze/ - 2 mniejsze pokoje, łazienka oraz duża oddzielna kuchnia wraz z jadalnią. Całość w bardzo dobrym stanie technicznym - po odświeżeniu /na podłogach panele, ściany malowane, w łazience oraz w kuchni - glazura/terakota, kuchnia - wyposażona w sprzęt AGD, gotowa sieć teleinformatyczna, instalacja alarmowa, szyby oraz drzwi antywłamaniowe, budynek z całodobową ochroną/. Okolica świetnie skomunikowana, z dogodnym dojazdem do wszystkich centralnych dzielnic Trójmiasta. Do lokalu przynależą 3 - 4 miejsca parkingowe na terenie posesji /brama zamykana na pilota/, wokół parkingi ogólnodostępne. Preferowany najem długoterminowy, idealnie na Siedzibę/Biuro Firmy, Kancelarie, usługi z dużym ruchem klientów wykluczone. CZYNSZ NAJMU DO NEGOCJACJI. KOSZTY EKSPLOATACYJNE - LOKAL BEZCZYNSZOWY, wyłącznie za zużycie mediów (woda, gaz, prąd wg liczników). Kaucja zwrotna. OFERTA GODNA UWAGI - ZAPRASZAM NA PREZENTACJĘ.

Kontakt do agenta:
Imię: Anna
Nazwisko: Piotrowska
Numer telefonu: Zobacz kontakt58 558 44 55 Kom: Zobacz kontakt510128510
Adres email: Zobacz kontaktap@investfal.pl
Numer licencji pośrednika: 3872

Oceń ofertę


0


43 wydruk błąd schowek

Ostatnio przeglądane

 

 

 

pobieranie

Pobierz wzór umowy

Umowa przedwstępna najmu

wybierz plik do pobrania
doc pdf

 

 

Deweloperzy

);