Prosimy, odblokuj wyświetlanie reklam w naszym serwisie, są one związane z rynkiem nieruchomości.
To dzięki nim masz darmowy dostęp do naszych treści.

Z pozdrowieniami zespół KRN.pl :)


telefon

wiadomość

mapa

Lokal użytkowy, Wrocław, Stare Miasto, ul. Łaciarska

Lokal użytkowy na wynajem Wrocław (woj. Dolnośląskie), Stare Miasto, ul. Łaciarska

Lokalizacja:

Wrocław, Stare Miasto, ul. Łaciarska

Powierzchnia:

140.00 m2

Cena:

14 029 zł

Dane szczegółowe

lokalizacja:
Dolnośląskie, Wrocław, Stare Miasto, ul. Łaciarska
typ obiektu:
lokal użytkowy na wynajem
cena:
14 029 zł
piętro:
1
ilość pięter w budynku:
6
powierzchnia:
140.00 m2
media:
prąd, woda
numer ogłoszenia:
21947
data dodania:
25-06-2025
data modyfikacji:
19-08-2025
jakość wypełnienia oferty:
76%

Szczegóły oferty



Lokal usługowy w prestiżowej lokalizacji w samym centrum miasta 

WE SPEAK ENGLISH - PLEASE DO NOT HESITATE TO CONTACT US

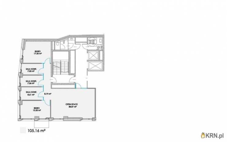
Lokal usługowy, idealny pod działalność prawniczą, notarialną, lub inną biurową o powierzchni około 105,16 m˛ znajdujący się na 1. piętrze prestiżowego, nowego budynku, zaledwie 150 metrów od wrocławskiego Rynku.

Lokal idealnie nadaje się pod usługi biurowe, takie jak: duże biuro architektoniczne,usługi księgowe,usługi finansowe,usługi prawnicze,kancelarię notarialną zapewniając przestrzeń o wysokim standardzie wykończenia.  Atuty lokalu:
Nowoczesny budynek w prestiżowej lokalizacji, tylko 150 metrów od Rynku, co gwarantuje świetną widoczność i łatwy dostęp dla klientów, 356m˛ przestrzeni biurowej, z możliwością aranżacji wnętrza zgodnie z potrzebami firmy, Lokal na 1. piętrze co zapewnia jednocześnie wyposażenie w windy, powoduje, że nie ma problemu z dostępem dla osób niepełnosprawnych.Doskonała lokalizacja z łatwym dostępem do komunikacji miejskiej, restauracji i usług.Lokal jest idealny dla firm, które szukają komfortowej i nowoczesnej przestrzeni biurowej w samym sercu Wrocławia.

Budynek to nieruchomość nowa położona w samym sercu miasta. Jest to doskonała lokalizacja  dla działalności komercyjnej ze względu na bliskość do najważniejszych punktów wrocławskiego Starego Miasta.

Lokalizacja to ścisłe centrum miasta, co wiąże się z szeregiem atutów: prestiżem adresu, doskonałą komunikacją oraz łatwym dostępem do wszelkich udogodnień.

Cena 14 029 PLN netto (+ 23 % VAT) miesięcznie
+ czynsz administracyjny
(5000 PLN)
+ media
(100 PLN)
+ opcjonalnie
Internet (100 PLN)

W naszej ofercie dostępne są również inne metraże w tym budynku, w tym także mniejsze lokale. Zapraszamy do kontaktu w celu umówienia prezentacji - chętnie zaprezentujemy dostępne przestrzenie i pomożemy w wyborze najlepszego rozwiązania.

Numer oferty: 21947

Niniejsze ogłoszenie ma charakter wyłącznie informacyjny i nie stanowi oferty handlowej w rozumieniu art. 66 §1 Kodeksu cywilnego.

Ogrzewanie: Miejskie

Kontakt do agenta:
Hamilton May Wrocław
Zobacz kontakt71 727 19 76
Zobacz kontaktwroclaw@hamiltonmay.com

Oceń ofertę


3


454 wydruk błąd schowek

Ostatnio przeglądane

 

 

 

pobieranie

Pobierz wzór umowy

Umowa przedwstępna najmu

wybierz plik do pobrania
doc pdf

 

 

Deweloperzy

);