Prosimy, odblokuj wyświetlanie reklam w naszym serwisie, są one związane z rynkiem nieruchomości.
To dzięki nim masz darmowy dostęp do naszych treści.

Z pozdrowieniami zespół KRN.pl :)


telefon

wiadomość

mapa

Kamienice, Inowrocław

Kamienice na sprzedaż Inowrocław (woj. Kujawsko-Pomorskie)

Lokalizacja:

Inowrocław, , ul.

Powierzchnia:

732.38 m2

Cena:

1 980 000 zł

Dane szczegółowe

lokalizacja:
Kujawsko-Pomorskie, Inowrocław
typ obiektu:
kamienica na sprzedaż
cena:
1 980 000 zł
pokoi:
21
ilość pięter w budynku:
3
powierzchnia:
732.38 m2
media:
gaz
numer ogłoszenia:
676418838
data dodania:
30-09-2025
data modyfikacji:
30-09-2025
jakość wypełnienia oferty:
70%

Szczegóły oferty

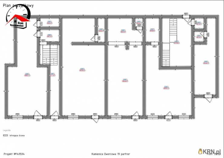
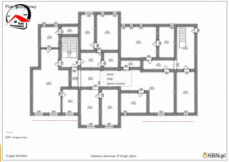
Zaproponuj swoją cenę....Kamienica na sprzedaż idealna dla osoby czy firmy poszukującej gotowego biznesu. Przedmiotem sprzedaży jest duża kamienica, w dobrym stanie, położona przy ul. Dworcowej w Inowrocławiu. Warto nadmienić że kamienica jest na bardzo dużej działce o powierzchni 1876m2, na której można wybudować drugi, nawet kilkunastu, a na pewno przynajmniej kilku-mieszkaniowy budynek wielorodzinny.Nieruchomość do niedawna była w 100% wynajęta, więc z ponownym wynajęciem lub sprzedaniem pojedynczych mieszkań nie będzie żadnego problemu.Trzy-kondygnacyjna kamienica ma powierzchnię całkowitą 732,38 m2, znajduje się w niej 9 mieszkań oraz 5 lokali handlowo-usługowych.W ostatnich kilku latach budynek na bieżąco remontowano, wymieniono instalację wodno-kanalizacyjną, elektryczną i centralnego ogrzewania. W chwili obecnej cały budynek ogrzewa piec gazowy, kondensacyjny firmy junkers. We wszystkich pomieszczeniach są okna PCV, a dodatkowo w lokalach na parterze oraz w mieszkaniach od strony ogrodu, na oknach zamontowano rolety zewnętrzne. Klatki schodowe w bardzo dobrym stanie.Atutem tej nieruchomości jest jak wspomniano duża działka. Takie oferty to rzadkość na inowrocławski rynku. Przed budynkiem jest parking na ok. 10 samochodów, natomiast za budynkiem jest ok. 1000 m2 działki na której można wybudować budynek 2 piętrowy z 12 mieszkaniami lub garaże. Całość ogrodzona płotem.Lokalizacja jest wielkim plusem tej nieruchomości. Parcela znajduje się przy jednej z głównych ulic w mieście, w pobliżu McDonald, markety spożywcze, stacja benzynowa, sklepy, przychodnia, rynek.Obecnie, na parterze budynku, jest 5 lokali handlowo-usługowych, każdy z osobnym wejściem od strony ulicy,o metrażu: 48,32m2; 73,2m2; 43,67m2; 51,72m2; 22,73m2.Natomiast mieszkania (obecnie 9, ale można z nich wydzielić więcej) są jedno-, dwu- i trzypokojowe o powierzchni od 19,53m2 do 62,08m2. Większość lokali nie wymaga remontu.Na działce obowiązuje plan zagospodarowania przestrzennego z przeznaczeniem na mieszkalnictwo i usługi. Kamienica nie znajduje się w rejestrze zabytków.Zapraszam do kontaktu i na prezentację, dla zdecydowanego klienta cena do negocjacji.każda oferta zostanie rozpatrzona. Piotr Stręk Zobacz kontakt517 367 304Przed prezentacją nieruchomości wymagane jest uzyskanie w Naszym biurze statusu klienta poszukującego co odbywa się poprzez podpisanie niezobowiązującej do niczego (w przypadku nie podejmowania decyzji o zakupie czy najmie tej nieruchomości) karty klienta lub umowy pośrednictwa na nabycie nieruchomości.Razem z właścicielami zwracamy się z prośbą o uszanowanie prywatności i nie przybywanie na miejsce bez zapowiedzi i opiekuna z biura nieruchomości, nie chodzenie po domach, szukanie, czy nietaktowne wypytanie sąsiadów gdzie jest dokładnie ta nieruchomość na sprzedaż, tylko umawianie się z upoważnionym biurem nieruchomości.Kontaktując się poza informacjami związanymi z nieruchomością koniecznie zapytaj o współpracę z biurem nieruchomości, co w ramach współpracy zapewniamy, o umowę pośrednictwa i kwestie związane z prowizją (m.in. kto płaci ? Sprzedający, Kupujący czy obydwie ze stron po części).

Oceń ofertę


0


642 wydruk błąd schowek

Ostatnio przeglądane

 

 

 

pobieranie

Pobierz wzór umowy

Umowa przedwstępna sprzedaży

wybierz plik do pobrania
doc pdf

 

 

Deweloperzy

);