Prosimy, odblokuj wyświetlanie reklam w naszym serwisie, są one związane z rynkiem nieruchomości.
To dzięki nim masz darmowy dostęp do naszych treści.

Z pozdrowieniami zespół KRN.pl :)


telefon

wiadomość

mapa

Działki, Szczecin

Działki na sprzedaż Szczecin (woj. Zachodniopomorskie)

Lokalizacja:

Szczecin, , ul.

Powierzchnia:

4006 m2

Cena:

900 000 zł

Dane szczegółowe

lokalizacja:
Zachodniopomorskie, Szczecin
typ obiektu:
działka na sprzedaż
cena:
900 000 zł
powierzchnia:
4006 m2
numer ogłoszenia:
43606/3186/OGS
data dodania:
13-12-2025
data modyfikacji:
13-12-2025
jakość wypełnienia oferty:
86%

Szczegóły oferty

Ogłoszenie

Prezydenta Miasta Szczecin

z dnia 12 grudnia 2025 r.

o piątym przetargu ustnym nieograniczonym na sprzedaż nieruchomości położonej w Szczecinie

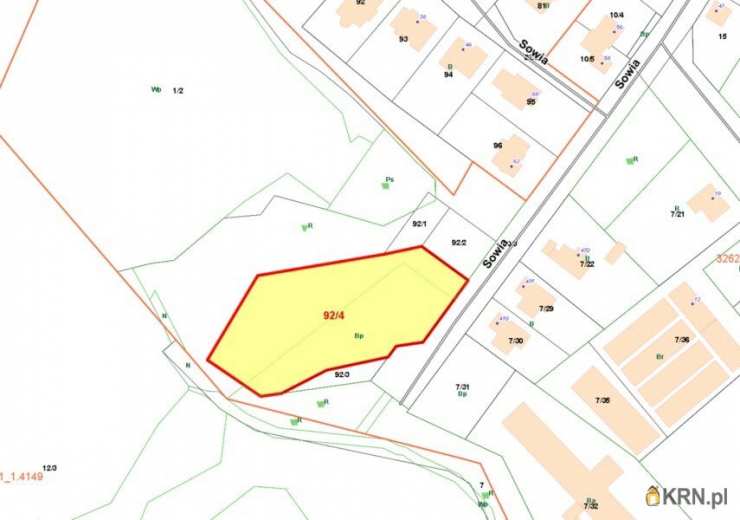
w rejonie ulicy Sowiej, działka 92/4, obręb 4150


będącej własnością Gminy Miasto Szczecin.


Adres
Szczecin,
rejon ulicy Sowiej

Numer obrębu
4150

Numer działki
92/4

Numer księgi wieczystej
SZ1S/ Zobacz kontakt00201406/7

Powierzchnia w m2
4006

Opis nieruchomości
Nieruchomość gruntowa niezabudowana

Przeznaczenie nieruchomości i sposób jej zagospodarowania
Zabudowa usług sportu i rekreacji
Sposób zagospodarowania – zgodny z przeznaczeniem

Cena wywoławcza nieruchomości netto w zł
900 000,00
(dziewięćset tysięcy złotych, 00/100)

Wadium w zł
90 000,00
(dziewięćdziesiąt tysięcy złotych, 00/100)



1. Pierwszy przetarg odbył się w dniu 18 października 2024 r.

2. Drugi przetarg odbył się w dniu 27 stycznia 2025 r.

3. Trzeci przetarg odbył się w dniu 07 lipca 2025 r.

4. Czwarty przetarg odbył się w dniu 10 listopada 2025 r.

5. PRZETARG ODBĘDZIE SIĘ W DNIU 20 LUTEGO 2026 r. O GODZ. 10.00 w siedzibie Urzędu Miasta Szczecin, pl. Armii Krajowej 1, sala obrad Rady Miasta Szczecin (lewe skrzydło, sala numer

6. Cena wywoławcza nieruchomości gruntowej jest ceną netto oraz uwzględnia prawa i ograniczenia w obrębie zbywanej nieruchomości.

7. Do ceny sprzedaży (netto) nieruchomości gruntowej osiągniętej w przetargu zostanie doliczony podatek VAT w stawce 23%, zgodnie z obowiązującymi przepisami ustawy z dnia 11 marca 2004 r. o podatku od towarów i usług.

8. Cena sprzedaży brutto uzyskana w wyniku przetargu płatna jest w całości najpóźniej na 1 (jeden) dzień przed wyznaczonym terminem podpisania umowy w formie aktu notarialnego. Za datę dokonania wpłaty uważa się datę uznania rachunku bankowego Gminy Miasto Szczecin.

9. Warunkiem udziału w przetargu jest wniesienie wadium przez uczestnika przetargu oraz przedłożenie Komisji Przetargowej przed otwarciem przetargu:

1) w przypadku osób fizycznych (w tym prowadzących działalność gospodarczą) – dokumentu tożsamości (dowód osobisty lub paszport), a pozostających w związku małżeńskim nieposiadających rozdzielności majątkowej, do dokonywania czynności przetargowych konieczna jest obecność obojga małżonków lub jednego z nich z pełnomocnictwem małżonka uprawniającym do udziału w przetargu;

2) w przypadku osób prawnych oraz innych jednostek organizacyjnych nieposiadających osobowości prawnej, a podlegających rejestracji - aktualnego odpisu z rejestru (potwierdzonego przez reprezentanta podmiotu w dniu przetargu) albo pobranego samodzielnie wydruku komputerowego (w formie papierowej) aktualnych informacji o podmiocie wpisanym do KRS, względnie wraz z uchwałami odpowiednich organów osoby prawnej podjętymi w trybie określonym przepisami kodeksu spółek handlowych, właściwych pełnomocnictw, dokumentów tożsamości (dowód osobisty lub paszport) osób reprezentujących podmiot.

10. Uczestnicy biorą udział w przetargu osobiście lub przez pełnomocnika. Pełnomocnictwo wymaga formy pisemnej.

11. Wadium należy wnieść w pieniądzu (PLN), na rachunek Gminy Miasto Szczecin: Bank PKO BP S.A. Zobacz kontakt47 1020 479 Zobacz kontakt5 0000 9802 0277 8504.

1) Termin wniesienia wadium upływa dnia 13 lutego 2026 r.

2) Datą wniesienia wadium jest data uznania rachunku bankowego Gminy Miasto Szczecin.

3) W celu ułatwienia identyfikacji wpłaty w tytule należy podać: adres nieruchomości będącej przedmiotem przetargu (ulica, numer działki, numer obrębu), imię i nazwisko lub nazwa oferenta, numer PESEL lub numer NIP.

4) Wadium osoby wygrywającej przetarg zalicza się na poczet ceny sprzedaży nieruchomości. Wadium pozostałych uczestników przetargu zostanie zwrócone po zakończeniu przetargu, zgodnie z obowiązującymi przepisami.

5) W przypadku uchylenia się osoby wygrywającej przetarg od zawarcia umowy sprzedaży nieruchomości, wadium nie podlega zwrotowi.

12. Opłaty notarialne i sądowe w całości ponosi nabywca nieruchomości.

13. Opis nieruchomości oraz warunki realizacji inwestycji:

1) Nieruchomość położona jest na terenie, dla którego obowiązuje Miejscowy plan zagospodarowania przestrzennego „Majowe-Kijewo” w Szczecinie uchwalony Uchwałą Nr XIII/346/07 Rady Miasta Szczecin z dnia 17 września 2007 r. (Dz. Urz. Woj. Zachodniopomorskiego Nr 110 z dnia 09 listopada 2007 r., poz. 1922). Ww. nieruchomość znajduje się w granicach terenu elementarnego oznaczonego na załączniku graficznym planu symbolem D.O.2141.US, dla którego plan ustala przeznaczenie: pod usługi sportu i rekreacji, z dopuszczalnym zakresem usług: wypożyczalnia sprzętu sportowego i turystycznego, zespołu socjalno-sanitarnego, gastronomii, np.: bar, lodziarnia. Przy realizacji inwestycji obowiązują wszystkie ustalenia ww. planu.

2) Część gruntów działki numer 92/4 w obrębie numer 4150 o powierzchni 2173 m2 stanowi użytek rolny sklasyfikowany jako RV, który jest pochodzenia mineralnego. W związku, z czym nie podlega ochronie. Na jego wyłączenie z produkcji rolniczej nie jest wymagana decyzja administracyjna i jego wyłączenie z produkcji rolniczej nie jest związane z naliczeniem należności i opłat rocznych.

3) Ulica Sowia jest drogą publiczną zaliczoną do kategorii dróg gminnych. W celu obsługi komunikacyjnej od strony ulicy Sowiej należy wybudować zjazd. Przed wybudowaniem zjazdu należy uzyskać zezwolenie zarządcy drogi w drodze decyzji administracyjnej.

4) Na wysokości działki numer 92/4 znajdują się sieci wod-kan będące w eksploatacji Zakładu Wodociągów i Kanalizacji Sp. z o. o.: sieć wodociągowa o średnicy 160 mm i sieć kanalizacji sanitarnej o średnicy 200 mm.

5) Wody opadowe oraz roztopowe należy zretencjonować na działce inwestycyjnej.

6) Najbliższa sieć gazowa ułożona jest w ulicy Sowiej – gazociąg niskiego ciśnienia dn 90 PE wybudowany w 2011 r.

7) Indywidualne warunki przyłączenia do sieci uzbrojenia technicznego nabywca ustali z właścicielami sieci.

8) Gmina Miasto Szczecin nie bierze odpowiedzialności za warunki gruntowo – wodne, występowanie ewentualnych zanieczyszczeń gruntu w obrębie zbywanej nieruchomości oraz za ewentualne istnienie przykrytych warstwą gleby elementów będących pozostałością po konstrukcjach budowlanych oraz skutki z tym związane. Rękojmia oraz odpowiedzialność Gminy Miasto Szczecin w tym zakresie zostaną wyłączone. Gmina Miasto Szczecin umożliwi dokonanie niezbędnych badań gruntu. W przypadku gdyby zbycie nieruchomości zakwalifikowane zostało jako działalność gospodarcza Gminy Miasto Szczecin, wówczas niniejsze wyłączenie rękojmi nie odniesie skutku wobec podmiotów nabywających nieruchomość jako konsumenci.

9) W przypadku wznowienia granic na wniosek nabywcy, Gmina Miasto Szczecin nie ponosi odpowiedzialności za ewentualne różnice w powierzchni nieruchomości.

10) Nabywca nieruchomości gruntowej:

a) zapewni właścicielom sieci ewentualnie przebiegających przez działkę oraz służbom specjalistycznym swobodny dostęp do tych sieci w celu ich modernizacji, wymiany, konserwacji, remontów, usuwania awarii oraz usuwania z gruntu;

b) w przypadku kolizji z planowaną inwestycją – przełoży sieci na własny koszt w uzgodnieniu z właścicielami tych sieci;

c) infrastrukturę niezbędną dla realizowanej inwestycji wykona we własnym zakresie i na własny koszt;

d) przejmie obowiązek usunięcia z terenu ewentualnych bezumownych użytkowników oraz uporządkuje teren we własnym zakresie i na własny koszt;

e) w przypadku wystąpienia w granicach nieruchomości drzewostanu kolidującego z inwestycją, dokona jego wycinki we własnym zakresie i na własny koszt, zgodnie z obowiązującymi przepisami ustawy z dnia 16 kwietnia 2004 r. o ochronie przyrody.

11) Nieruchomość wolna jest od obciążeń oraz nie jest przedmiotem zobowiązań, poza opisanymi powyżej.

14. Przed przystąpieniem do przetargu należy zapoznać się z dokumentacją dotyczącą nieruchomości, miejscowym planem zagospodarowania przestrzennego oraz Regulaminem Przetargów, dostępnym na stronie internetowej bip.um.szczecin.pl

Dodatkowych informacji udziela Wydział Zasobu i Obrotu Nieruchomościami -

Referat ds. Prywatyzacji Nieruchomości Gruntowych

Urząd Miasta Szczecin,

pl. Armii Krajowej 1, pok. 241, tel. Zobacz kontakt91 42 45 775, e-mail: Zobacz kontaktwlisew@um.szczecin.pl

bip.um.szczecin.pl, szczecin.eu, miastooferuje.szczecin.eu

Zastrzega się prawo odwołania przetargu lub jego unieważnienia w przypadku zaistnienia ważnych powodów.

15. Udział w postępowaniu przetargowym wiąże się z przetwarzaniem danych osobowych oferentów na zasadach określonych w Rozporządzeniu Parlamentu Europejskiego i Rady (UE) 2016/679 z dnia 27 kwietnia 2016 r. w sprawie ochrony osób fizycznych w związku z przetwarzaniem danych osobowych i w sprawie swobodnego przepływu takich danych oraz uchylenia dyrektywy 95/46/WE (ogólne rozporządzenie o ochronie danych) oraz w zakresie wynikającym z ustawy z dnia 21 sierpnia 1997 r. o gospodarce nieruchomościami i rozporządzenia Rady Ministrów z dnia 14 września 2004 r. w sprawie sposobu i trybu przeprowadzania przetargów oraz rokowań na zbycie nieruchomości. Więcej informacji o przetwarzaniu danych osobowych przez Gminę Miasto Szczecin - Urząd Miasta Szczecin można uzyskać na stronie www.bip.um.szczecin.pl w zakładce „Ochrona danych osobowych/RODO”.



z up. Prezydenta Miasta Szczecin

Dyrektor Wydziału Zasobu i Obrotu Nieruchomościami

Przemysław Taraciński



Kontakt:
Urząd Miasta Szczecin - Lisewska Wanda
tel: Zobacz kontakt91 424 57 75
Zobacz kontaktwlisew@um.szczecin.pl


Oferta wysłana z programu dla biur nieruchomości ASARI CRM (asaricrm.com)



Kontakt:
Numer telefonu: Zobacz kontakt91 424 57 75
Adres email: Zobacz kontaktwlisew@um.szczecin.pl

Oceń ofertę


0


21 wydruk błąd schowek

Ostatnio przeglądane

 

 

 

pobieranie

Pobierz wzór umowy

Umowa przedwstępna sprzedaży

wybierz plik do pobrania
doc pdf

 

 

Deweloperzy

);